KE-2070-2080保守(Maintenance Guide) - 第157页
R ev1.00c 维修调整要领书 13-4-2. HDD 的更换方法 13-4-2-1. 需要部件 HDD (货号 :40053303 ) ① KE-2070/2080 系统程序安装盘 是 KE-2070/2080 的软件。保存有 KE-2070/2080 所有的系统程序,安装时要指定机型(仅在新安 装时)。 ② Flexline DB 安装盘:是元件库数据库。 13-4-2-2. HDD 的更换方法 1) 卸下 ② 螺丝,从 ③HD…

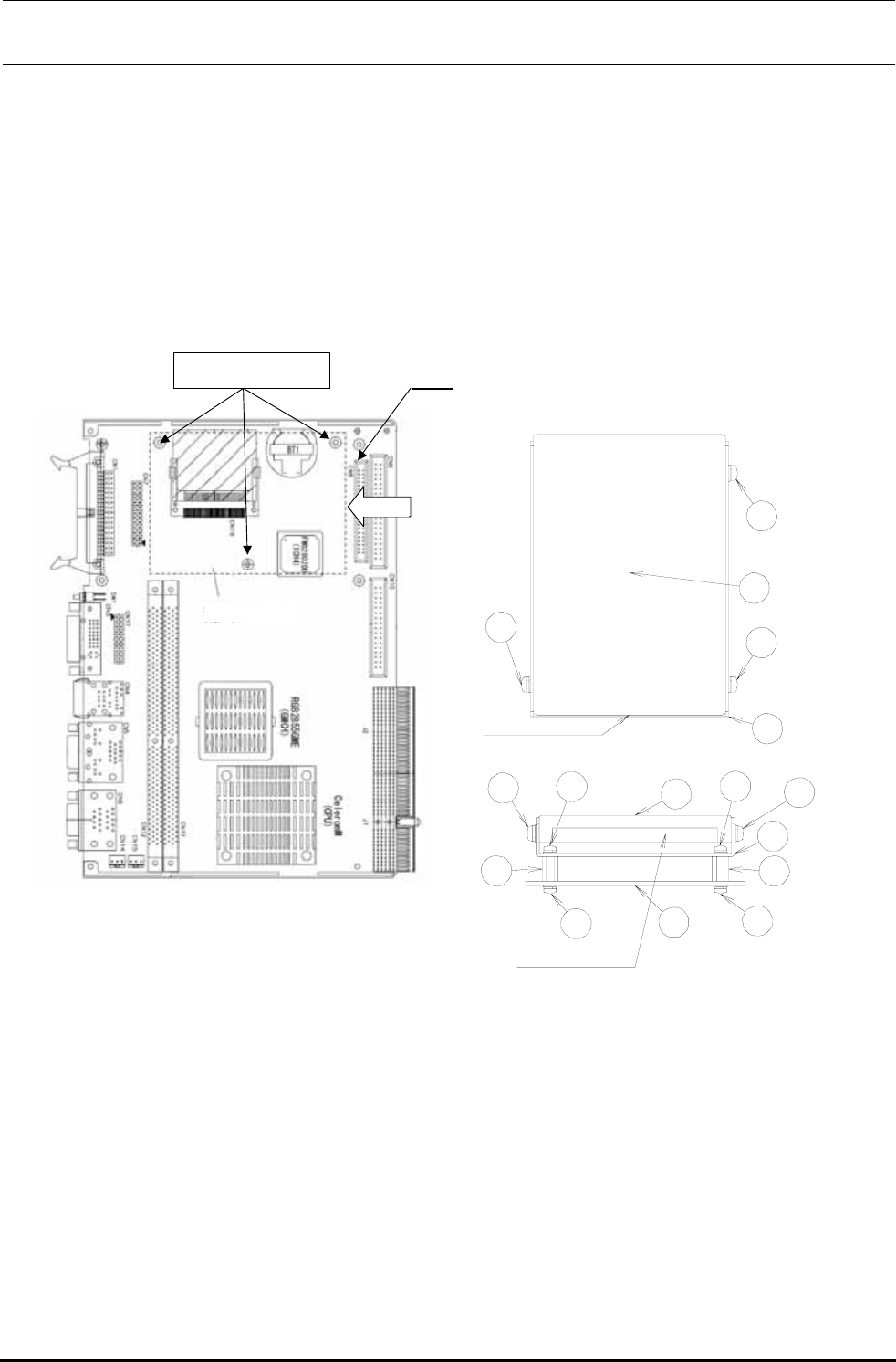
Rev1.00c
维修调整要领书
13-4-1-2. 更换方法
1) 请从控制装置中拆下①CPU BOARD。
2) 请从③SSD 的插接器上拆下⑦SSD I/F CABLE ASM 的连接器。
3) 取下⑥螺钉(3 处),从②SSD BRACKET 上拆下 SSD。
4) 安装时,请按照相反的程序进行安装。
CPU BOARD
A矢視図
CN8
A矢視
6
1
4
2
4
5
5
6 ×2
×2
×2
×2
コネクタ接続部
5
5
3
6
6
3
6
コネクタ接続部
記号④取付穴
记号④安装孔
A向视
A 向视图
插接器连接处
插接器连接处
HDD(硅盘)安装区
2
①CPU BOARD 1个
②SSD BRACKET 1个
③SSD 1个
④电路板双头螺栓 3个
⑤有头螺钉 M2.5×5 6 个
⑥有头螺钉 M3×6 3 个
⑦SSD I/F CABLE ASM 1个
13-11

Rev1.00c
维修调整要领书
13-4-2. HDD 的更换方法
13-4-2-1. 需要部件 HDD(货号:40053303)
① KE-2070/2080 系统程序安装盘
是 KE-2070/2080 的软件。保存有 KE-2070/2080 所有的系统程序,安装时要指定机型(仅在新安
装时)。
② Flexline DB 安装盘:是元件库数据库。
13-4-2-2. HDD 的更换方法
1)卸下②螺丝,从③HDD支架卸下①HDD护罩。
2)卸下⑦⑧⑨⑩⑪的螺丝,从⑫HDD柱栓卸下③HDD支架。
3)卸下⑥的螺丝,从③HDD支架卸下④HDD。
4)把⑤止动橡胶从④HDD卸下。
5)安装时,请按照相反的程序进行安装。
①HDD护罩 1个
②螺丝 4个
③HDD 支架 1个
④HDD 1 个
⑤止动橡胶 4个
⑥螺丝Cap(M3×8) 3 个
⑦螺丝Cap(M5×12) 1 个
⑧圆头螺丝(M5×30) 1 個
⑨弹簧垫 1个
⑩垫片
(M5) 1 个
⑪环 1个
⑫HDD柱栓 2个
⑬弹簧垫(M10) 2 个
⑭垫片(M10) 2 个
⑮螺母 2个
13-12

Rev1.00c
维修调整要领书
13-4-3. BIOS 的设定
SSD 更换后,请确认 BIOS。参照<设定方法>的设定,不同时请变更设定。并且,更换 CPU 电路板后
一定要进行 BIOS 变更操作。
注:BIOS(Basic Input Output System)
这是控制电子计算机(这里是KE2000)的数据输出输入力的重要的程序,
操作时,请充分注意。附带说
明一下,CPU电路板上的闪存内保存有程序,电池支持的SRAM内保存有设置数据。
13-4-3-1. SSD 的识别确认
请确认 BIOS 是否正确第识别 SSD。
检查存储器后,如果找不到可以起动的 SSD、HDD、FDD 时,如下的通知显示出来。
No bootable device available
R ‒ REBOOT
S ‒ SETUP
按<S>键,可以移动到BIOS设定画面。(按<R>键之后进行复位)
<设定方法>
1) 显示 BIOS 画面。
打开电源之后,检查存储器时,立即按<DEL>键。
移动到BIOS设定之后,下列的画面被显示出来。把游标移动到想变更的项目上(文字被翻转的部分),
按<Enter>键,实行选择的项目。
System Bios Setup
–
Utility v5.2
(C) 2003 General Software, Inc. All right reserved
>Basic CMOS Configuration
Features Configuration
Custom Configuration
PnP Configuration
Shadow Configuration
Reset CMOS to last known values
Reset CMOS to factory defaults
Write to CMOS and Exit
Exit without changing CMOS
↑/↓<Tab> to select. <Esc> to continue (no save)
www.gensw.com
13-13