KE-2070-2080保守(Maintenance Guide) - 第52页
Rev1.00c 维修调整要领书 2-2. 马达的更换 2-2-1. Z 马达( LNC 贴装头) 更换了Z马达之后, 需要进行Z轴原点的位置调整, 以及 Z 轴高度有关、 激光有关的MS参数。(输入 项目请参照2-8项。) 1) 从伺服放大器电路板上拆下马达线束。 图2-2-1 ① ② 2) 实施到到 2-1-1 的第 1)~第 5)步,拆下喷 射器托架。 3) 先松开 Z 马达皮带轮的止动螺钉①。 4) 拆下马达的安装螺钉②(3 颗…

Rev1.00c
维修调整要领书
2-1-2.IC贴装头
1) 从伺服放大器电路板上拆下 Z、θ 马达线束。
2) 从贴装头主电路板上拆下 Z 传感器线束。
3) 从触点传感器中拔出 2 根光缆,将托架从放大器
主体上拆下。
4) 卸下 φ4、φ6 气管。
5) 卸下释放闩。(参照 2-5 项)
6) 请用手压住以免 IC 贴装头落下,同时取下
M5×M16 有头螺钉(6 颗)。
7) 请拔出 2 根平行销,将 IC 贴装头抬起,不要碰到
其他元件。
8) 装配请按相反的步骤进行。
※ 给 IC 贴装头安装螺钉(6 颗)涂敷粘结剂
LOCTITE242 后,请以安装扭矩 7.0Nm 进行固定。
9) 更换贴装头后,需要重新输入 MS 参数。
输入项目请参照 2-8 项。
图2-1-5
φ6 气管
触点传感器
图2-1-6
φ4 气管
2−3

Rev1.00c
维修调整要领书
2-2.马达的更换
2-2-1.Z马达(LNC贴装头)
更换了Z马达之后,需要进行Z轴原点的位置调整,以及 Z 轴高度有关、激光有关的MS参数。(输入
项目请参照2-8项。)
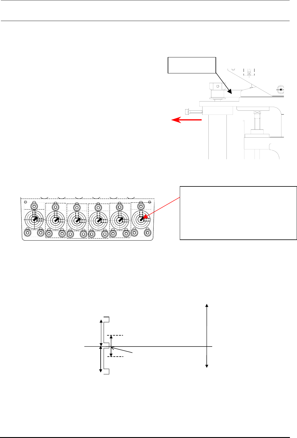
1) 从伺服放大器电路板上拆下马达线束。
图2-2-1
①
②
2) 实施到到 2-1-1 的第 1)~第 5)步,拆下喷
射器托架。
3) 先松开 Z 马达皮带轮的止动螺钉①。
4) 拆下马达的安装螺钉②(3 颗),拔出皮带轮
同时卸下马达。
5) 装配请按相反的步骤进行。
6) 请按以下步骤调整皮带张力。
2−4

Rev1.00c
维修调整要领书
<皮带张力调整步骤>
① 把螺丝插到Z马达的螺丝孔,朝箭头方向用杆张
力 21.6 N(2.2kgf)的拉力,用安装螺丝固定。
拉
同步皮带 Z
张力计设置值(用于确认)
Weight:0.9g/m Width:8.0mm Span:45mm
合适张力 10.5±1N
※ 在 Z 马达安装螺丝(3 个)上涂上锁定漆242
后,拧紧固定,转矩为 2.3Nm。
※ 固定 Z 马达皮带轮的固定螺丝时,应注意 Z 马达
轴的平部和皮带轮固定螺丝的方向。固定螺丝的紧固转矩为 0.5Nm。
在将 Z 轴抬到最上面的状态下,如果按
左图所示,在轴标记为 2 点钟方向的位
置或者轴的 D 形切面为图示的位置时将
Z 马达皮带轮固定,即达到 2)项的条件。
② 组装后,请获取 MS 参数的基板上面高度。
如果这一值不在-2~+2mm 之间,请重新调整 Z 电动机轴与滚珠螺杆的位置关系,再次取得 MS
参数,并确认基板上面高度在-2~+2mm 之间。
(Z 轴球螺丝转动
1 圈的行程):6mm
Z 传感器 OFF 区域
-2∼+2mm 稳定区域
Z 传感器 ON 区域
2−5