JM-100使用说明书 - 第794页
第 2 部 功能详解篇 第 11 章 选项组件 11 - 10

第 2 部 功能详解篇 第 11 章 选项组件
11-9
11-3 矩阵、托盘服务器(MTS)的设置方法
有关使用方法、设置方法的详情,请参见 MTS 附带的『使用说明书』。
注意
为了防止意外启动引起事故,请切断电源后再进行操作。
11-3-1 设置方法
注意
・请切断电源,在确认完全停止之后再执行操作。
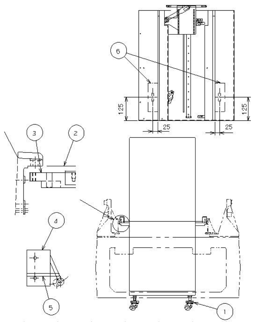
提升脚轮调节器①的 4 处,调整使主机的台架支撑基准面②与本装置的接块③处于相同高度。
用捆束线⑤使主机的构造阀④关闭,会使操作更为容易。
(请充分小心不要将手指夹在台架起重装置内)
调整高度后,请调节水平。
请在 Y 单元上放置水平器⑥进行调整。(±4 刻度以内)
(使用的水平器为 1Div=0.05mm/M)

第 2 部 功能详解篇 第 11 章 选项组件
11-10

第 2 部 功能详解篇 第 11 章 选项组件
11-11
调整水平后,请将脚轮调节器①(2 处)旋回 1 圈,使装置前部下降。
松开主机构造阀的捆束线,将起重装置的罩安装在主机上,使主机的选择 SW②为 ON,进行夹紧。
请多次反复安装拆下,以确认是否确实可以夹紧。
(不能夹紧时,可能是构造阀不能完全关闭,请调整起重装置罩的位置)
请在夹紧状态下再次调整水平(微调整)。
调整后,请将调节器③降至接触地面的位置,最后用锁紧螺母④进行固定。
请将缆线、压缩空气管道盘绕在框架的下部。
缆线、空气管