JM-100使用说明书 - 第841页
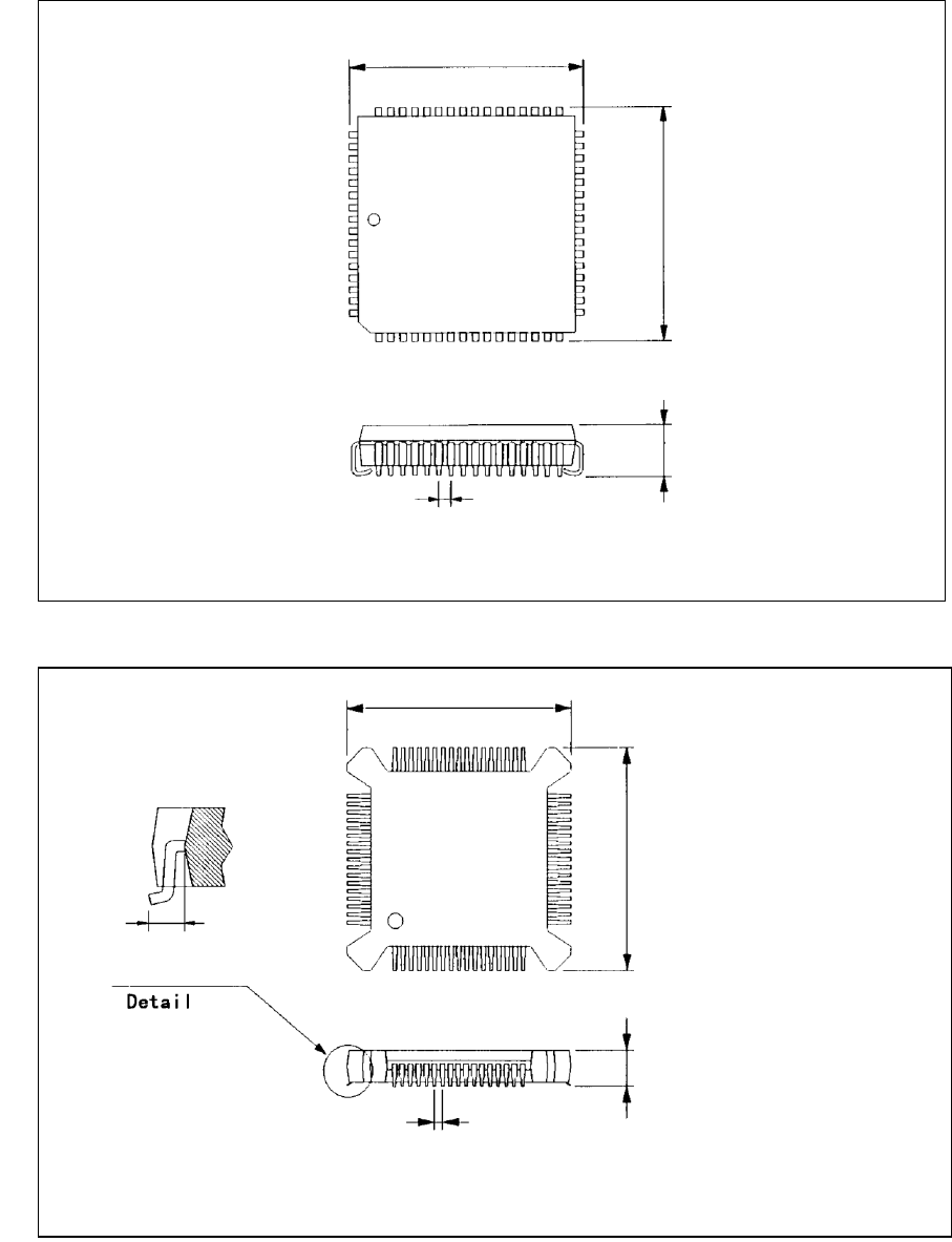
第 2 部 功能详解篇 第 12 章 程序补充 12 -4 QFJ( PL CC) BQFP( PQF P) 外形尺寸 横 外形尺寸 纵 元件高度 引脚间距 外形尺寸 横 外形尺寸 纵 元件高度 引脚长度 引脚间距 引脚长度

第 2 部 功能详解篇 第 12 章 程序补充
12-3
SOJ
部品高さ
外形寸法 縦
外形寸法 横
リードピッチ
+
QFP
部品高さ
外形寸法 縦
外形寸法 横
リードピッチ
リード長
+
QFN
外形寸法 縦
外形寸法 横
部品高さ
リードピッチ
外形尺寸
横
外形尺寸
横
引脚间距
引脚间距
引脚长度
元件高度
元件高度
外形尺寸 纵
外形尺寸
纵
外形尺寸
横
外形尺寸 纵
元件高度
外形尺寸
横
放大图
引脚间距

第 2 部 功能详解篇 第 12 章 程序补充
12-4
QFJ(PLCC)
BQFP(PQFP)
外形尺寸 横
外形尺寸 纵
元件高度
引脚间距
外形尺寸 横
外形尺寸 纵
元件高度
引脚长度
引脚间距
引脚长度

第 2 部 功能详解篇 第 12 章 程序补充
12-5
TSOP-1
引脚长度
外型尺寸 纵
外型尺寸 横
引脚间距
元件高度
+
TSOP-2
引脚长度
外型尺寸 纵
外型尺寸 横
引脚间距
元件高度
+
BGA (
仰视图)
一般配置型 交错配置型
球直径
球
间距
外形尺寸
外
形
尺
寸
A1
或第
1
针
球直径
球
间距
外形尺寸
外
形
尺
寸
A1
或第
1
针