P-0220-002.pdf - 第39页

Key No. P AR T No. P AR T NAME Q’ty REMARKS NOTE MODEL TPM-1 10F/R-C 021 1-001 37 601 630 089 2864 UNIT ,I/O 1 N005, SAB10-TM16J43A 748E--310-601 602 630 068 9723 RELA Y 2 K05A,K05B 748E--310-602 603 630 049 2064 SOCKET …

100%1 / 172
MODEL TPM-110F/R-C
0211-001
36
チャック部
CHUCK SECTION
Fig. E-7
電装部
Electrical Parts
605
663
662
661
604
606
601
607
608
603
611
610
612
609
669
668
667
602
603
663
662
664
See Fig.K-4
Key No.303
602
Key No. PART No. PART NAME Q’ty REMARKS
NOTE
MODEL TPM-110F/R-C
0211-001
37
601 630 089 2864 UNIT,I/O 1 N005, SAB10-TM16J43A
748E--310-601
602 630 068 9723 RELAY 2 K05A,K05B 748E--310-602
603 630 049 2064 SOCKET 2 748E--310-603
604 630 091 1732 COMP,CR 1 748E--310-604
605 630 091 1688 ACCESSORY,WIRING 1 748E--310-605
606 630 091 1749 BRACKET,WIRING 1 748E--310-606
607 630 088 6061 CORD 1 XNC237,2170,3170- 748E--310-607
608 630 088 7242 CORD 1 XNC05A,05B- 748E--310-608
609 630 092 7863 SOLENOID VALVE 1 YSV058,059 748E--310-609
610 630 003 6534 AIR LINE EQPT 2 748E--310-610
611 630 092 8174 PIPE FITTINGS 1 748E--310-611
612 630 088 4449 PIPE FITTINGS 2 748E--310-612
661 411 113 1400 SCR PAN 4X6 2 748E--310-661
662 411 008 1706 WASHER SPR 4 3 748E--310-662
663 411 119 2104 WASHER V 4X9X0.8 3 748E--310-663
664 411 043 5004 SCR PAN 4X8 1 748E--310-664
667 630 000 7503 BOLT,HEX-SCT 2 748E--310-667
668 411 141 2806 WASHER SPR 3 2 748E--310-668
669 411 141 3902 WASHER V 3X7X0.5 2 748E--310-669
E-7
MODEL TPM-110F/R-C
0211-001
38
62
4
62
63
64
20
18
69
61
14
14
65
70
71
24
1
65
67
66
72
74
75
16
7
63
64
64
5
76
68
77
25
74
75
72
7
65
11
17
3
19
73
68
65
70
19
73
71
21
3
22
13
23
68
12
9
10
67
66
69
1
7
63
62
6
78
74
75
29
27
26
28
28
28
8
8
8
See Fig.K-
1
Key No.
4
See Fig.R-3
Key No.216
28
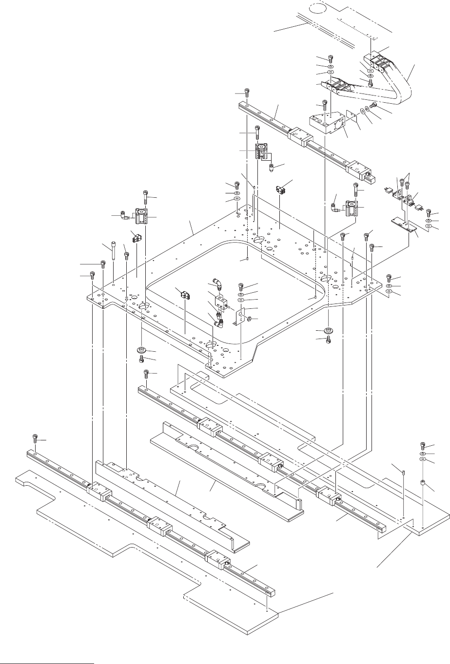
スクリーンホルダ部
SCREEN HOLDER SECTION
Fig. F-1
スクリーンホルダ
Screen Holder