P-0220-002.pdf - 第87页
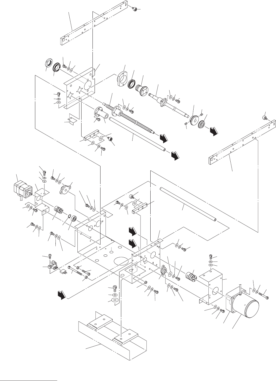
Key No. P AR T No. P AR T NAME Q’ty REMARKS NOTE MODEL TPM-1 10F/R-C 0509-002 85 301 630 1 17 7656 FEED SCREW 1 748H--310-301 303 630 089 0518 GUIDE,LINEAR 1 748H--310-303 304 630 089 0495 SHAFT ,LINEAR 1 748H--310-304 3…

MODEL TPM-110F/R-C
0211-001
84
コンベア部
CONVEYOR SECTION
Fig. H-4 R
コンベアフレ-ム
R Conveyor Frame
( 手前基準)
(Front Reference)
314
See Fig.H-3
Key No.215
361
375
366
374
323
324
311
326
374
303
375
365
374
301
375
365
367
325
328
361
370
369
361
369
330
370
362
319
377
378
368
362
317
307
306
370
369
361
370
369
379
310
C
A
B
384
371
369
370
361
374
375
387
370
369
362
321
320
372
370
369
329
362
373
363
376
309
375
387
369
322
331
370
361
318
385
386
370
369
308
305
304
327
382
313
382
A
314
B
C
370
369
See Fig.H-3
Key No.215
See Fig.K-1
Key No.4
315
371
371
380
314
325
376
364
375
374
314
374
375
364
376
312
311

Key No. PART No. PART NAME Q’ty REMARKS
NOTE
MODEL TPM-110F/R-C
0509-002
85
301 630 117 7656 FEED SCREW 1 748H--310-301
303 630 089 0518 GUIDE,LINEAR 1 748H--310-303
304 630 089 0495 SHAFT,LINEAR 1 748H--310-304
305 630 088 3947 BUSH,BALL 1 SMT12GWUU-E 748H--310-305
306 630 088 4043 BEARING,RADIAL 1 628ZZ 748H--310-306
307 630 096 6602 RING 1 748H--310-307
308 630 008 5303 BEARING,UNIT 1 UFL000 748H--310-308
309 630 088 2988 BEARING,UNIT 1 UFL08 748H--310-309
310 630 000 0252 SENSOR,PHOTO 1 BPH391, EE-SX671 748H--310-310
311 630 088 4050 BEARING,RADIAL 2 6805ZZNR 748H--310-311
312 630 001 2057 BEARING,PARTS 2 AN05 748H--310-112
313 630 001 1548 BEARING,RADIAL 1 6200ZZNR 748H--310-313
314 630 106 8978 PULLEY,FLAT 6 748H--310-314
315 630 084 8533 BOLT,HEX 1 748H--310-315
317 630 088 3985 COUPLING 1 MOL-20C-5X8 748H--310-317
318 630 088 3992 COUPLING 1 MOL-25C-10X10 748H--310-318
319 630 091 2470 MOTOR,STEPPING 1 MPM039, B2086-D01ASM
748H--310-319
320 630 088 4128 MOTOR,REVERSIBLE 1 M003, 4RK25GN-AWJ
748H--310-320
321 630 088 4111 GEAR,REDUCTION 1 4GN5K 748H--310-321
322 630 088 0502 COVER 1 748H--310-322
323 630 088 0519 BRACKET 1 748H--310-323
324 630 090 7704 BOSS 1 748H--310-324
325 630 116 5158 PLATE 2 748H--310-325
326 630 088 0588 PULLEY 1 748H--310-326
327 630 088 0601 PULLEY 1 748H--310-327
328 630 088 0618 BRACKET 1 748H--310-328
329 630 088 0625 BRACKET 1 748H--310-329
330 630 088 0632 BRACKET 1 748H--310-330
331 630 088 0656 SHAFT 1 748H--310-331
361 630 000 7886 BOLT,HEX-SCT 8 748H--310-361
362 630 000 7862 BOLT,HEX-SCT 6 748H--310-362
363 630 000 7824 BOLT,HEX-SCT 4 748H--310-363
364 630 000 7657 BOLT,HEX-SCT 4 748H--310-364
365 630 000 7633 BOLT,HEX-SCT 8 748H--310-365
366 630 000 7619 BOLT,HEX-SCT 2 748H--310-366
367 630 000 7602 BOLT,HEX-SCT 4 748H--310-367
368 630 000 7527 BOLT,HEX-SCT 4 748H--310-368
369 411 141 4305 WASHER V 6X12.5X1.6 14 748H--310-369
370 411 141 3001 WASHER SPR 6 14 748H--310-370
371 411 004 5104 NUT HEX 6 2 748H--310-371
372 411 141 4107 WASHER V 5X10X1 4 748H--310-372
373 411 141 6705 WASHER SPR 5 4 748H--310-373
374 411 141 4008 WASHER V 4X9X0.8 14 748H--310-374
375 411 141 2905 WASHER SPR 4 17 748H--310-375
376 630 001 0213 WASHER 3 748H--310-376
377 411 141 3902 WASHER V 3X7X0.5 4 748H--310-377
378 411 141 2806 WASHER SPR 3 4 748H--310-378
379 411 040 6202 SCR PAN 3X10 2 748H--310-379
H-4

Key No. PART No. PART NAME Q’ty REMARKS
NOTE
MODEL TPM-110F/R-C
0509-002
86
380 630 000 8692 BOLT,HEX 1 748H--310-380
382 630 000 8951 SET SCREW 2 748H--310-382
384 630 000 8012 BOLT,HEX-SCT 4 748H--310-384
385 411 141 3100 WASHER SPR 8 4 748H--310-385
386 630 001 0244 WASHER 4 748H--310-386
387 630 000 7626 BOLT,HEX-SCT 3 748H--310-387
H-4