3732445-5F_VT-S500_MaintenanceManual(C)PDFA.pdf - 第19页
1.1 本装 置概要 1-3 1.1.2 系统框图 ブレーカー / サーキットプロテクタ モニタ (タッチパネル) 操作スイッチ タワー灯 ステッピングモータドライ バ 画像処理ボード Gig E PLC Y 軸 X 軸 W 軸 ( 搬送幅 ) サーボモータドライバ DC 電源 (48 V 24 V 、 12 V ) 照明ユニット 基板搬送( V 軸) セーフティコントローラ ドアロック カメラ メインコンピュータ 基板搬送コンベア セ…

第 1 章 概要
1-2
1.1 本装置概要
本装置用于对基板的焊锡及元件贴装状态进行自动检查。
运用独特的彩光高亮度图像处理技术进行检查、并将检查结果输出到显示器(触摸屏)上。
并且,将良品基板与不良品基板的区分信号输出至下游装置。
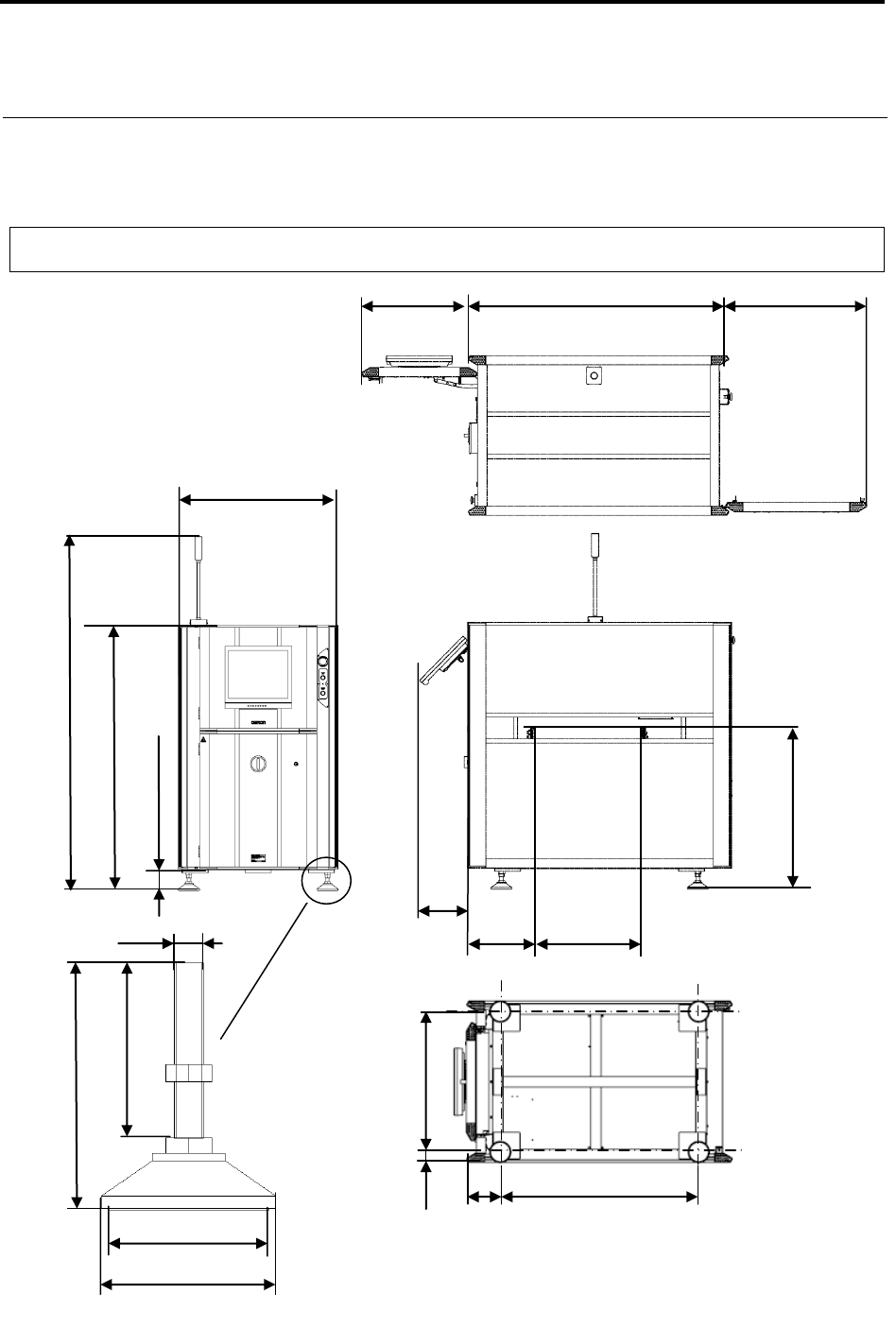
1.1.1 外观尺寸图
(単位 mm 公差 IT16)
调节螺栓详细尺寸
φ110
φ120
120
170
M20
792
59
1122
194
1510
(最大 620)
(最大 800)
(最大 275)
900±20
※1
※2
910
1500±20
2000±20
100±20
※1 默认值 380mm(单轨/双轨型通用)
※2 默认值 610mm(单轨型)、680mm(双轨型)

1.1 本装置概要
1-3
1.1.2 系统框图
ブレーカー/
サーキットプロテクタ
モニタ
(タッチパネル)
操作スイッチ
タワー灯
ステッピングモータドライバ
画像処理ボード
GigE
PLC
Y軸
X軸
W軸(搬送幅)
サーボモータドライバ
DC電源
(48V 24V、12V)
照明ユニット
基板搬送(V軸)
セーフティコントローラ
ドアロック
カメラ
メインコンピュータ
基板搬送コンベア
セーフティセンサ
各ユニットへ
AC200~240V 1Φ
赤矢印:電源
青矢印:信号
照相机链接
相机
步进马达驱动器
操作开关
信号灯
触摸屏
给每个单元
DC 电源
(48V,24V, 12V,)
断路器/
电路保护装置
安全控制器
伺服马达驱动器
门锁
主电脑
电路板传送输送带
基本搬运(V 轴)
V 轴
(运输宽度)
安全传感器

第 1 章 概要
1-4
1.2 各部分名称
本章节就装置的外观及各部分名称进行说明。
1.2.1 装置外观名称
めい
紧急停止开关
后盖
显示器
(触摸屏)
信号灯
操作板
正面门
总开关
机柜门
紧急停止开关
机柜锁