NPM-W2S 20161226 - 第209页
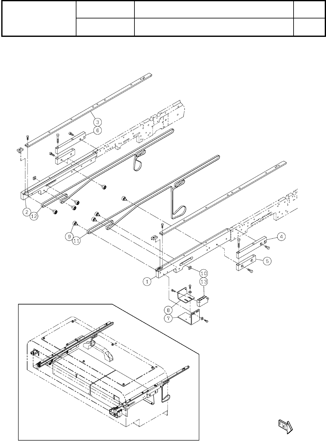
Ref No. Remarks R 1 Q'ty 5 付属品(シングル_デュアルコンベア):NPM-W2 Atttachment(Single Dual Conveyor):NPM -W 2 イラスト No. Part No. 品 名 品 番 数量 R 2 パーツリスト Kit No. キット品番 Kit Name キット名称 N610167526AA Part Nam e 備 考 セク ショ ンNo . PARTS LIST…

5
付属品(シングル_デュアルコンベア):NPM-W2
Atttachment(Single Dual Conveyor):NPM-W2
パーツレイアウト
Kit No.
キット品番
Kit Name
キット名称
N610167526AA
セクションNo.
PARTS LAYOUT
Section No.
--
O23
( KN610167526AA-00 )

Ref
No.
Remarks R
1
Q'ty
5
付属品(シングル_デュアルコンベア):NPM-W2
Atttachment(Single Dual Conveyor):NPM-W2
イラスト
No.
Part No.
品 名品 番 数量
R
2
パーツリスト
Kit No.
キット品番
Kit Name
キット名称
N610167526AA
Part Name
備 考
セクションNo.
PARTS LIST
Section No.
R
3
BELT
1
1 N510060980AA TA-4UEB M/D 4.5WX727.5L
BELT
1
2 N510060976AA TA-4UEB M/D 4.5WX1174.5L
BELT
1
3 N510063692AA TA-4UEB M/D 4.5WX927.0L
BELT
1
4 N510060975AA TA-4UEB M/D 4.5WX1314.5L
O24
--
( KN610167526AA-00 )

6-A
延長コンベア(シングル):NPM-W2
Extension Conveyor(Single):NPM-W2
パーツレイアウト
Kit No.
キット品番
Kit Name
キット名称
MTKA001466AA
セクションNo.
PARTS LAYOUT
Section No.
--
O25
( KMTKA001466AA-03-1 )