NPM-W2S 20161226 - 第234页
9-I デュアルコンベア:NPM-W2 Dual Convey or:NPM-W 2 パーツレイアウト Kit No. キット 品番 Kit Name キット名称 N610164024AA セクションNo. PARTS LAYOUT Section No. - - O49 ( KN610164024AA-13-9 )

Ref
No.
Remarks R
1
Q'ty
9-H
デュアルコンベア:NPM-W2
Dual Conveyor:NPM-W2
イラスト
No.
Part No.
品 名品 番 数量
R
2
パーツリスト
Kit No.
キット品番
Kit Name
キット名称
N610164024AA
Part Name
備 考
セクションNo.
PARTS LIST
Section No.
R
3
PLATE
1
1 N210194704AD
PLATE
1
2 N210194705AD
PIN
8
3 KXFB0210A00
COLLAR
4
4 N210198315AA
BRACKET
1
5 MTPB003895AA
BRACKET
1
6 MTPB003896AA
PIN
2
7 KXF0CXJAA00 1017003-50010
CAP
30
8 N510057167AA C3(00008300T000)
BEARING
4
9 KXF0E3BVA00 6000ZZ
MOTOR
2
10 N510055860AA
S
DU13H711S-01
PULLEY
4
11 N510030782AA R101-N610058297AAS-F-PK
BEARING
4
12 KXF03G0AA00 SFB38-10
GREASE-NIPPLE
4
13 KXF07C6AA00 A-M6F-type(M6X0.75)
PIN
4
14 N510020608AA MMS5-15
COUPLING
2
15 N510034822AA Special MSF-20-D8XD8(2-M5)
SCREW
8
16 N510018279AA
Cross recessed Truss head machine screw M4X6-4.8 A2J (Trivalent)
LINEAR-WAY
2
17 MTNB000058AA 2SRS15NUUC1+600LM-III(03107680K000)
BALL-SCREW
4
18 MTNB000059AA DK1404S-3G0+696LT(33102807K000)
O48
--
( KN610164024AA-13-8 )

9-I
デュアルコンベア:NPM-W2
Dual Conveyor:NPM-W2
パーツレイアウト
Kit No.
キット品番
Kit Name
キット名称
N610164024AA
セクションNo.
PARTS LAYOUT
Section No.
--
O49
( KN610164024AA-13-9 )

Ref
No.
Remarks R
1
Q'ty
9-I
デュアルコンベア:NPM-W2
Dual Conveyor:NPM-W2
イラスト
No.
Part No.
品 名品 番 数量
R
2
パーツリスト
Kit No.
キット品番
Kit Name
キット名称
N610164024AA
Part Name
備 考
セクションNo.
PARTS LIST
Section No.
R
3
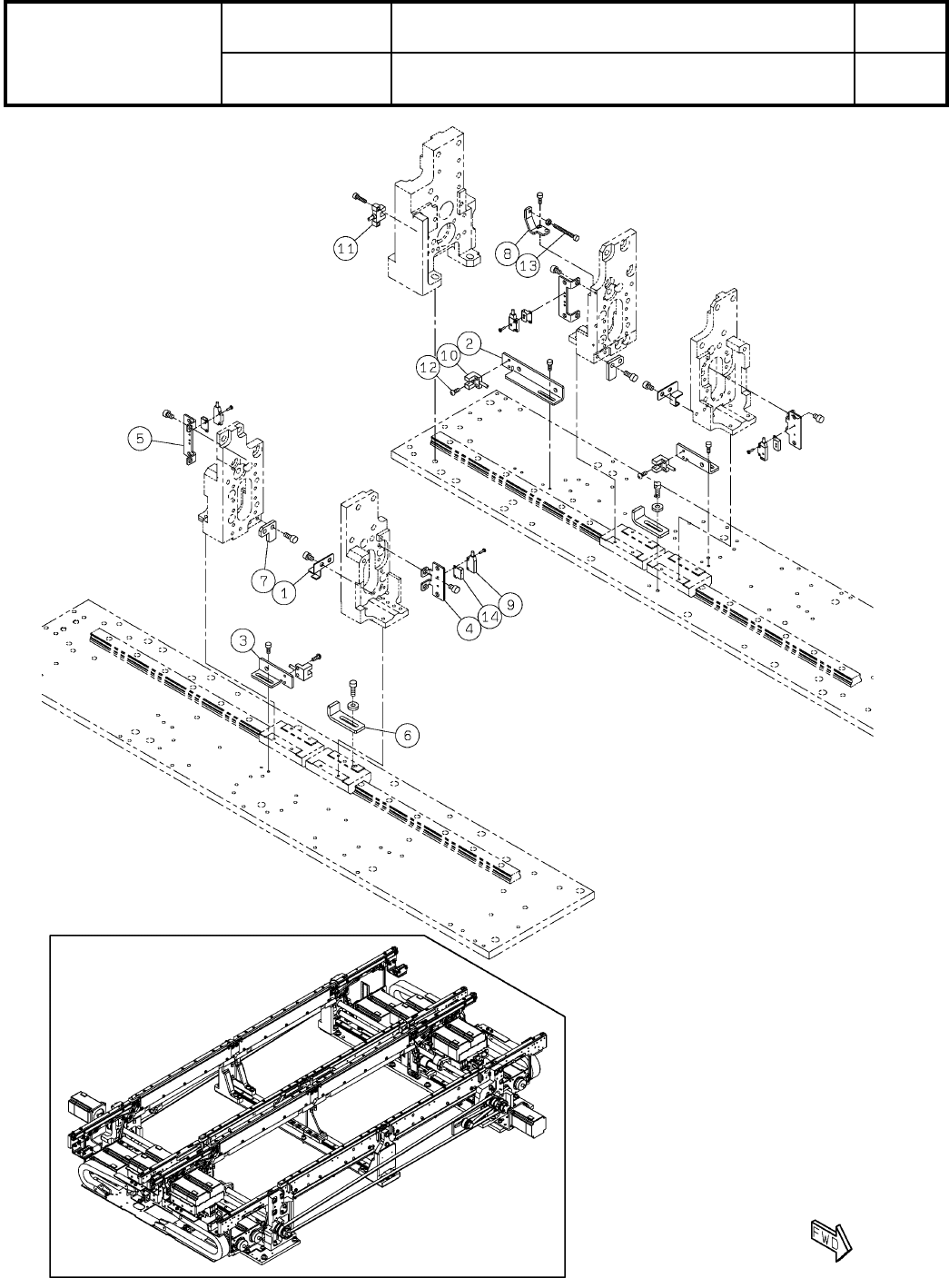
DOG
2
1 N210194738AB
BRACKET
1
2 N210197919AA
BRACKET
2
3 N210173737AD
BRACKET
2
4 N210194744AB
BRACKET
2
5 N210194745AB
STOPPER
2
6 N210197931AA
PLATE
2
7 N210197932AB
BRACKET
1
8 N210199961AC
SENSOR
2
9 N610164358AA
SENSOR
3
10 MTNS000237AA EE-SX951-C2J-R 0.2M
SENSOR
1
11 MTNS000234AA EE-SX950-C2J-R 0.5M
BOLT
6
12 N510017514AA
SSS 003 Hexagon socket button head screw M3X8-10.9 A2J (Trivalent)
BOLT
1
13 N510017324AA
Hexagon socket head cap screw M3X30-10.9 A2J (Trivalent) Full thread
SLIT
4
14 KXF0DZL9A00 OS-EX10-15
O50
--
( KN610164024AA-13-9 )