NPM-W2S 20161226 - 第303页
Ref No. Remarks R 1 Q'ty 31 Y軸ストッパ(標準交換台車仕様):NPM-W2S Y ax is stopper for standard cart:NPM -W 2S イラスト No. Part No. 品 名 品 番 数量 R 2 パーツリスト Kit No. キット品番 Kit Name キット名称 MTKA014118AA Part Nam e 備 考 セク ショ ンNo . PARTS LIS…

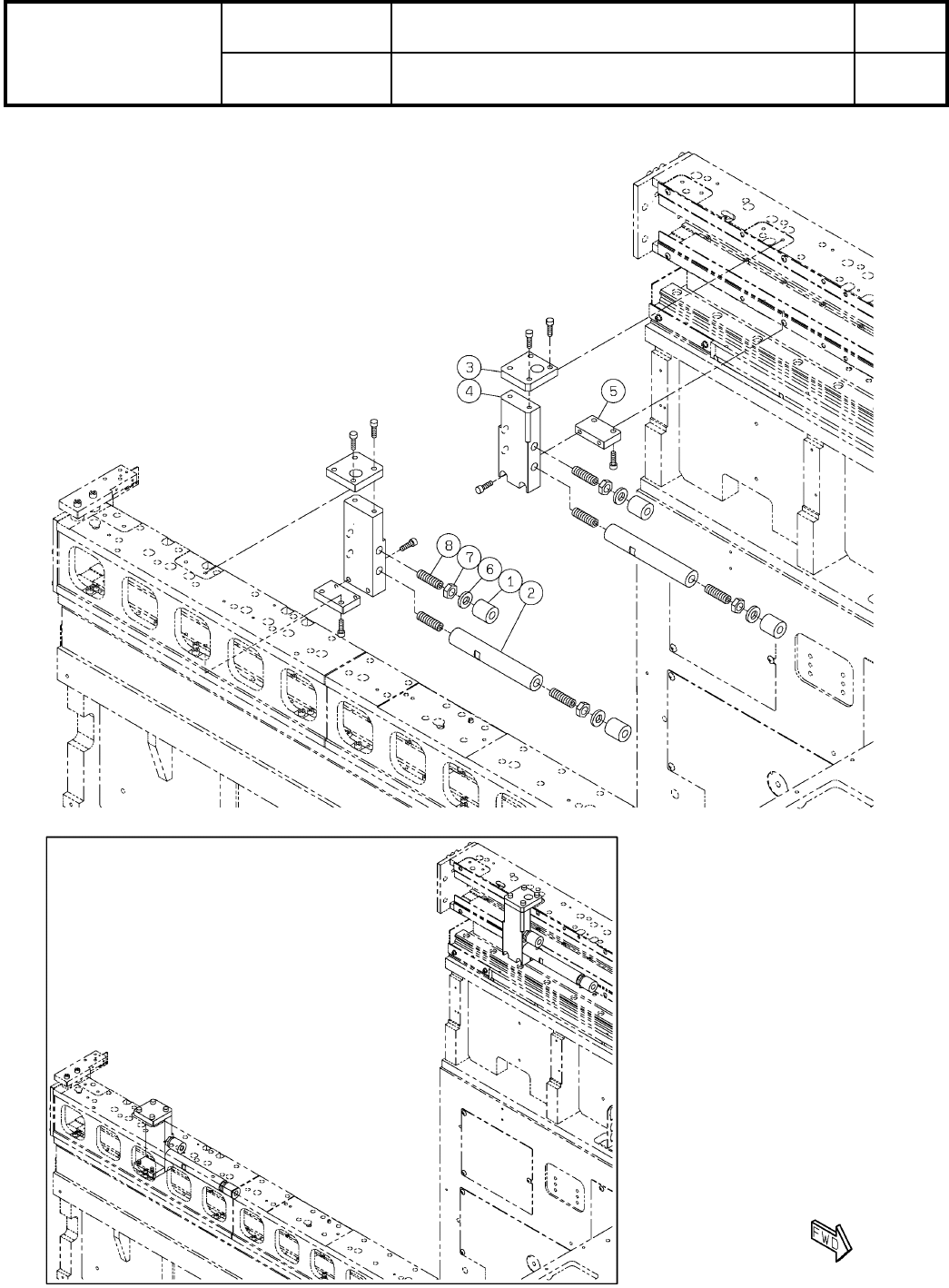
31
Y軸ストッパ(標準交換台車仕様):NPM-W2S
Y axis stopper for standard cart:NPM-W2S
パーツレイアウト
Kit No.
キット品番
Kit Name
キット名称
MTKA014118AA
セクションNo.
PARTS LAYOUT
Section No.
--
O117
( KMTKA014118AA-00 )

Ref
No.
Remarks R
1
Q'ty
31
Y軸ストッパ(標準交換台車仕様):NPM-W2S
Y axis stopper for standard cart:NPM-W2S
イラスト
No.
Part No.
品 名品 番 数量
R
2
パーツリスト
Kit No.
キット品番
Kit Name
キット名称
MTKA014118AA
Part Name
備 考
セクションNo.
PARTS LIST
Section No.
R
3
STOPPER
4
1 N210198064AA
POST
2
2 N210149856AA
PLATE
2
3 MTPA021648AA
PLATE
2
4 MTPA021649AA
PLATE
2
5 MTPA021681AA
WASHER
4
6 N510027223AA
Round finish plain washer (JIS B 1256:1978) 12 10H A2J (Trivalent)
NUT
4
7 N510017897AA
Hexagon nut Type-3 Best class M12-6H-4T A2J (Trivalent)
SCREW
6
8 XXF12C40FT
Hexagon socket set screw Flat point M12X40-45H SOB
O118
--
( KMTKA014118AA-00 )

32
転写ユニット誤挿入防止(30連供給用):NPM-W2S
EXCLUSION TRANSFER UNIT:NPM-W2S
パーツレイアウト
Kit No.
キット品番
Kit Name
キット名称
MTKA014869AA
セクションNo.
PARTS LAYOUT
Section No.
--
O119
( KMTKA014869AA-00 )