NPM-W2S 20161226 - 第310页
35 Y軸ストッパ(トレイ仕 様):NP M-W2S Y ax is stopper for Tray Feeder:NPM -W 2S パーツレイアウト Kit No. キット 品番 Kit Name キット名称 MTKA014292AA セクションNo. PARTS LAYOUT Section No. - - O125 ( KMTKA014292AA-00 )

Ref
No.
Remarks R
1
Q'ty
34
全体カバー(トレイフィーダ対応品):NPM-W2
Whole Cover(For Tray feeder):NPM-W2
イラスト
No.
Part No.
品 名品 番 数量
R
2
パーツリスト
Kit No.
キット品番
Kit Name
キット名称
MTKA001702AA
Part Name
備 考
セクションNo.
PARTS LIST
Section No.
R
3
COVER
1
1 MTPB001514AB
SCREW
2
2 N510018283AA
Cross recessed Truss head machine screw M4X8-4.8 A2S (Trivalent)
COVER
1
3 N610121304AD
SCREW
1
4 N510018305AA
Cross recessed Truss head machine screw M6X10-4.8 A2S (Trivalent)
O124
--
( KMTKA001702AA-03 )

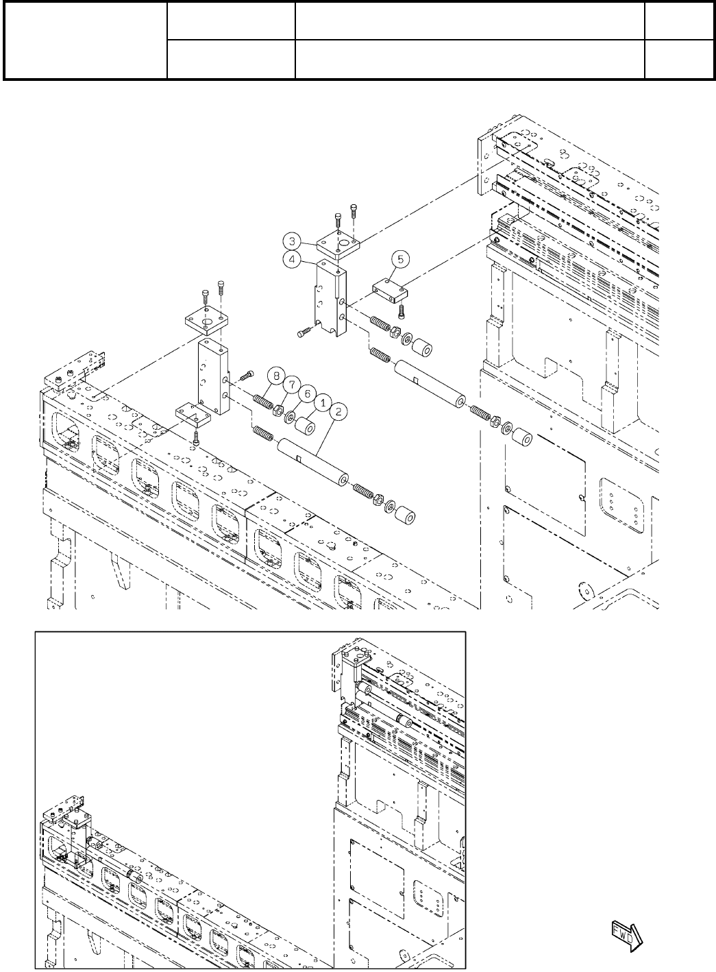
35
Y軸ストッパ(トレイ仕様):NPM-W2S
Y axis stopper for Tray Feeder:NPM-W2S
パーツレイアウト
Kit No.
キット品番
Kit Name
キット名称
MTKA014292AA
セクションNo.
PARTS LAYOUT
Section No.
--
O125
( KMTKA014292AA-00 )

Ref
No.
Remarks R
1
Q'ty
35
Y軸ストッパ(トレイ仕様):NPM-W2S
Y axis stopper for Tray Feeder:NPM-W2S
イラスト
No.
Part No.
品 名品 番 数量
R
2
パーツリスト
Kit No.
キット品番
Kit Name
キット名称
MTKA014292AA
Part Name
備 考
セクションNo.
PARTS LIST
Section No.
R
3
STOPPER
4
1 N210198064AA
POST
2
2 N210149856AA
PLATE
2
3 MTPA021648AA
PLATE
2
4 MTPA021649AA
PLATE
2
5 MTPA021681AA
WASHER
4
6 N510027223AA
Round finish plain washer (JIS B 1256:1978) 12 10H A2J (Trivalent)
NUT
4
7 N510017897AA
Hexagon nut Type-3 Best class M12-6H-4T A2J (Trivalent)
SCREW
6
8 XXF12C40FT
Hexagon socket set screw Flat point M12X40-45H SOB
O126
--
( KMTKA014292AA-00 )