NPM-W2S 20161226 - 第91页
Ref No. Remarks R 1 Q'ty 19-B フィーダーテーブルカバー(交換台車対応)Front側:NPM-W2 Feeder Table Cover(Feeder Cart)Front:N PM-W 2 イラスト No. Part No. 品 名 品 番 数量 R 2 パーツリスト Kit No. キット品番 Kit Name キット名称 MTKA001537AA Part Nam e 備 考 セク ショ ンN…

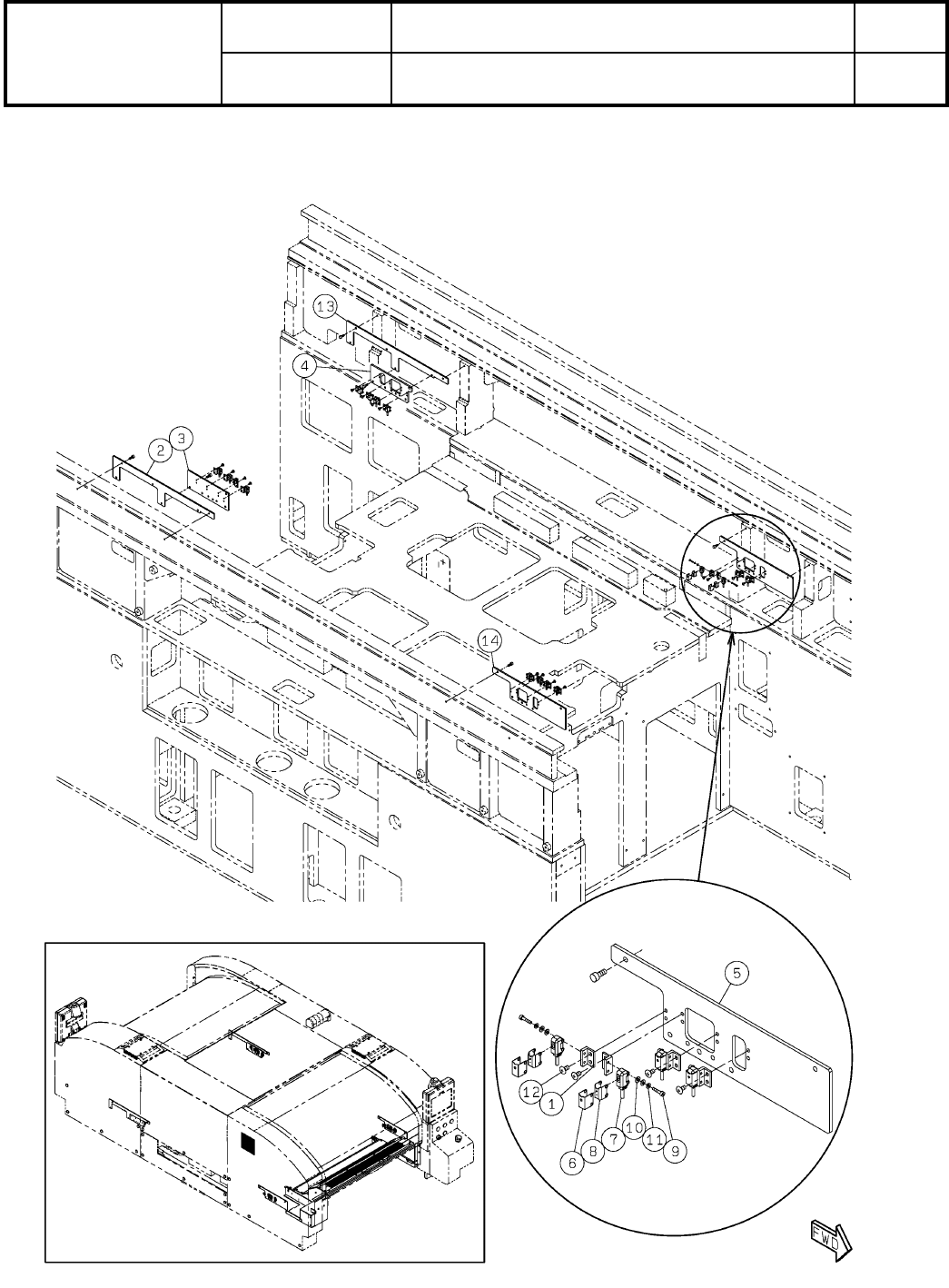
19-B
フィーダーテーブルカバー(交換台車対応)Front側:NPM-W2
Feeder Table Cover(Feeder Cart)Front:NPM-W2
パーツレイアウト
Kit No.
キット品番
Kit Name
キット名称
MTKA001537AA
セクションNo.
PARTS LAYOUT
Section No.
--
S67
( KMTKA001537AA-07W2S-2 )

Ref
No.
Remarks R
1
Q'ty
19-B
フィーダーテーブルカバー(交換台車対応)Front側:NPM-W2
Feeder Table Cover(Feeder Cart)Front:NPM-W2
イラスト
No.
Part No.
品 名品 番 数量
R
2
パーツリスト
Kit No.
キット品番
Kit Name
キット名称
MTKA001537AA
Part Name
備 考
セクションNo.
PARTS LIST
Section No.
R
3
BRACKET
1
1 N210201221AE
BRACKET
1
2 N210147104AD
NUT-PLATE
2
3 N210186760AA
BRACKET
2
4 N210147105AB
COVER
1
5 N210147112AC
BRACKET
1
6 N210147106AC
COVER
1
7 N210147107AF
COVER
1
8 N210147834AB
BRACKET
1
9 N210179792AA
COVER
1
10 MTKA000155AD
SWITCH
2
11 N510057874AA
S
HS5D-03RNP
JOINT
2
12 KXF06F4AA00 53015030-WM
SPACER
2
13 N510020146AA ASF-435E
CABLE-SUPPORT
2
14 N348TA1S8 TA1S8
BOLT
2
15 N510017536AA
SSS 003 Hexagon socket button head screw M4X8-10.9 A2J (Trivalent)
S68
--
( KMTKA001537AA-07W2S-2 )

19-C
フィーダーテーブルカバー(交換台車対応)Front側:NPM-W2
Feeder Table Cover(Feeder Cart)Front:NPM-W2
パーツレイアウト
Kit No.
キット品番
Kit Name
キット名称
MTKA001537AA
セクションNo.
PARTS LAYOUT
Section No.
--
S69
( KMTKA001537AA-07W2S-3 )