SER01989020_YV112III Service_J.pdf - 第124页
3- 103 SER01989020 調整 第 3 章 6 6.1.1 W 軸マシンリファレンスの調整 コンベア幅を制御している W 軸は、搬入コンベア(W 1 ) 、A テーブルコンベア (W 2 ) 、B テーブルコンベア(W 3 ) 、および搬出コンベア(W 4 )の4つに分か れています。いずれもモーター 1 回転当たりの移動量 5.00mm のボールスク リュー駆動でコンベア幅を調整します。各 W 軸の原点信号は、W 軸ボール…

3-
102
SER01989020
調整
第
3
章
6
6.1 マシンリファレンス
各作動軸のモーターに組み込まれたエンコーダーは、モーターが1 回転するご
とに0 信号を発信します。マシンリファレンスは、原点復帰のときに原点信号
を感知してから次のエンコーダー0 信号を受信するまでの軸移動量(モーター
回転量)で、モーター 1 回転に対する%で表されます。軸移動の再現精度を保
つために、マシンリファレンスは許容範囲内(35% ∼65%)に設定されていな
ければなりません。
■ マシンリファレンス
20143601-00
原点信号
モーター1回転
マシンリファレンス
(X, Y, W, T軸)
マシンリファレンス(Z, R軸)
A, B相 ゼロ相
原点センサ信号
エンコーダ信号
マシンリファレンスの設定を確認するには、「3/4/B6 原点復帰」にカ−ソルを
合わせ、[SHIFT] + [ENTER] キーを押してください。原点復帰動作のあと、
各軸のマシンリファレンスが表示されます。
hm
■ マシンリファレンス表示画面
60143602-00
マシンリファレンス
W1軸 =
X1軸 =
Z1軸 =
51%
50%
56%
W2軸 =
X2軸 =
Z2軸 =
58%
48%
50%
W3軸 =
Y1軸 =
R1軸 =
T軸 =
49%
49%
45%
53%
何かキーを押して下さい
W4軸 =
Y2軸 =
R2軸 =
51%
55%
51%
n
要点
マシンリファレンスの許容範囲は35%∼65%です。この範囲から外れている場合は、調整が必要で
す。

3-
103
SER01989020
調整
第
3
章
6
6.1.1 W軸マシンリファレンスの調整
コンベア幅を制御しているW 軸は、搬入コンベア(W1)、A テーブルコンベア
(W2)、B テーブルコンベア(W3)、および搬出コンベア(W4)の4つに分か
れています。いずれもモーター1 回転当たりの移動量 5.00mm のボールスク
リュー駆動でコンベア幅を調整します。各W 軸の原点信号は、W 軸ボールスク
リューの奥端に取り付けられた原点センサーが可動側レールの下に取り付けられ
た原点ドグに反応すると出力されます。W 軸マシンレファレンスを調整すると
きは、下記の手順で行います。
e
1
非常停止ボタンを押します。
2
マシンリファレンスを調整します。
W 軸原点ドグの固定ボルトを緩め、原点ドグの取付位置を移動して調整して
ください。
マシンリファレンスを大きくする場合:幅拡大方向に移動
マシンリファレンスを小さくする場合:幅縮小方向に移動
■ W 軸マシンリファレンスの調整
20143603-00
可動側 コンベア
レール固定側
コンベアレール
n
要点
原点ドグは大きく移動させないでください。(最大2.5mm)大きく動かすと原点位置が変化するこ
とがあります。原点ドグの移動 1mmで約20%のマシンリファレンスが増減することを目安として
ください。
3
調整後、原点ドグの固定ボルトを締めます。
マシンリファレンスが許容範囲に設定されていることを確認してください。

3-
104
SER01989020
調整
第
3
章
6
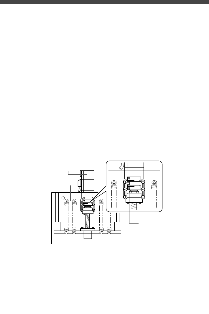
6.1.2 Z軸マシンリファレンスの調整
Z 軸は、A テーブルヘッドの Z1 軸と B テーブルヘッドのZ2 軸に分かれていま
す。どちらもモーター1 回転当たりの移動量 4.0mm のボールスクリュー駆動
で、ヘッド部全体を上下に移動させます。原点位置は、Z 軸が低速度で上端部
(マイナス方向)に押し当った時のモーター過電流を原点信号としてとらえ、そ
の直前のエンコーダー0 信号に設定されます。(原点センサーや原点ドグはあり
ません。)マシンリファレンスは、モーターシャフトとボールスクリューの連結
角度を変えることにより調整します。
e
1
非常停止ボタンを押します。
2
Z 軸モーターとボールスクリューのカップリング固定ボルトを
緩めます。
ヘッド部の奥にZ 軸モーターシャフトとボールスクリューを連結しているカッ
プリングがあります。ヘッド部を手で上下させながらZ 軸を回して、ボールス
クリュー側のカップリング固定ボルトを作業しやすい位置に向け、6 角レンチ
で緩めてください。
■ Z 軸モーターとカップリング
20143604-00
Z軸モーター
カップリング
カップリング固定ボルト