SER01989020_YV112III Service_J.pdf - 第183页

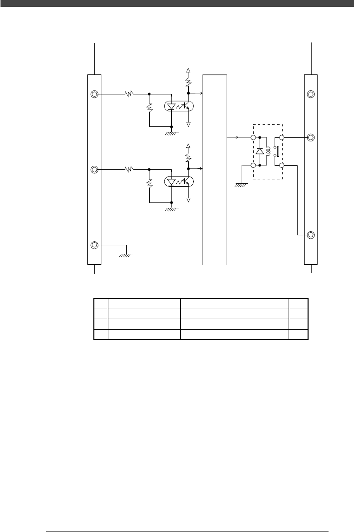
5- 15 SER01989020 電源接続・ I/O リスト・その他 第 5 章 3 ■ GATE IN・ GATE OUT 回 路 20045002-00 +5V 510 GND 510 GND 8 16 4 12 TK05X TK05 TK05Y Logic Circuit KA11 K35-M6521-000 RELAY,1 G6B-4BND(DC24V),OMRON Spare parts;Quarter Unit K35-M…

100%1 / 187
5-
14
SER01989020
電源接続・I/Oリスト・その他
5
3
3. 機器間入出力信号
マウンターは、後行程機からの信号を受けると基板を排出し、別の基板を要求す
るために前行程機へ信号を送ります。
GATE IN コネクターは後行程機と接続し、GATE OUT コネクターは前行程
機と接続します。どちらのコネクターもマウンター前面の右下パネルの内側に位
置しています。
機器間の接続
20045003-00
SIGNAL SIGNAL
GATE OUT
COUNT RESET
GATE IN
COUNT RESET
GATE INGATE OUT
基板
基板
全行程機
後行程機
本機
■ ゲート信号コネクタ
10045001-00
GATE IN GATE OUT
5-
15
SER01989020
電源接続・I/O リスト・その他
5
3
GATE IN・GATE OUT
20045002-00
+5V
510
GND
510
GND
8
16
4
12
TK05XTK05
TK05Y
Logic
Circuit
KA11
K35-M6521-000
RELAY,1
G6B-4BND(DC24V),OMRON
Spare parts;Quarter Unit
K35-M6521-400
RELAY,1
G6B-1114P-FD-US(DC24V),OMRON
NJ15
NJ12
+24C
(COMMON)
GATE IN CONNECTOR
GATE OUT CONNECTOR
#1
#2
#3
1
2
3
-24C
(GND24)
-24C
(GND24)
-24C
(GND24)
5.6K
5.6K
#2
#1
3
基板搬出許可信号 (入力)
カウンターリセット信号 (入力)
基板搬入要求信号 (出力)
NJ12
NJ15
TK05
GATE IN
COUNT RESET
GATE OUT
No.
コネクター
信号名 記号
20045004-00
i
SER01989020
索引
索引
記号
[ SHIFT ] + [ ENTER ] キー 3-102
[F5]キー(RUN) 3-134
[TAB]キー 3-9
2次リミット 3-110
X 軸 3-110
Y軸 3-112
A
AMF112** 3-131
G
GATE IN 5-14
GATE IN・GATE OUT 回路 5-15
GATE OUT 5-14
Q
QFP装着浮代;機械座標 3-24
R
R軸
初期位置 3-125
ソフトリミット 3-121
マシンリファレンス 3-108
R軸絶対精度補正 3-32
T
T軸
初期位置 3-126
初期移動 3-128
ソフトリミット 3-122
マシンリファレンス 3-109
W
W軸
初期位置 3-123
ソフトリミット 3-114
マシンリファレンス 3-103
X
X軸
2次リミット 3-110
ソフトリミット 3-119
マシンリファレンス 3-106
Y
Y軸
2次リミット 3-112
ソフトリミット 3-120
マシンリファレンス 3-107
Z
Z軸
ソフトリミット 3-117
マシンリファレンス 3-104
圧力低下検出レベル 3-99
圧力レギュレーター(駆動バルブ系) 3-99
圧力レギュレーター(真空発生器系) 3-98
移動カメラ 3-66
移動カメラ照明 3-66
移動カメラスケール 3-70
入口ストッパー 3-43
エッジクランプ 3-51
エラーと対策例 4-3
押し込み圧力 3-50
画像認識装置 3-65
画像平均濃度 3-68
カメラスケール
マルチ認識カメラ 3-84