TR6DNR_维修调整 - 第69页
维修调整要领书 4- 23 4- 28. IS 装置天线的更换及调整 ( IS : 选配 ) 上部天线的更换 在 X 单元的内侧,用 M3 的圆头螺丝 (6 处 ) 将上部天线与 SHEILD BRACKET 一起拧紧进行安装。 更换天线时,请将天线的传感器检测面(有标记的面)朝着堆垛机侧进行安装。 圆头螺丝上请涂抹乐泰 242 胶。 ①天线(货号: 40073667 ANTENNA ARRAY 14M M PITCH / 15 POS…

维修调整要领书
4-22
4-27. 自动调整宽度原点传感器的更换及调整(传送自动调整宽度:选项)
请将传送轨道的宽度扩大之后更换传感器。
①自动调整宽度原点传感器(货号:HD001710000)

维修调整要领书
4-23
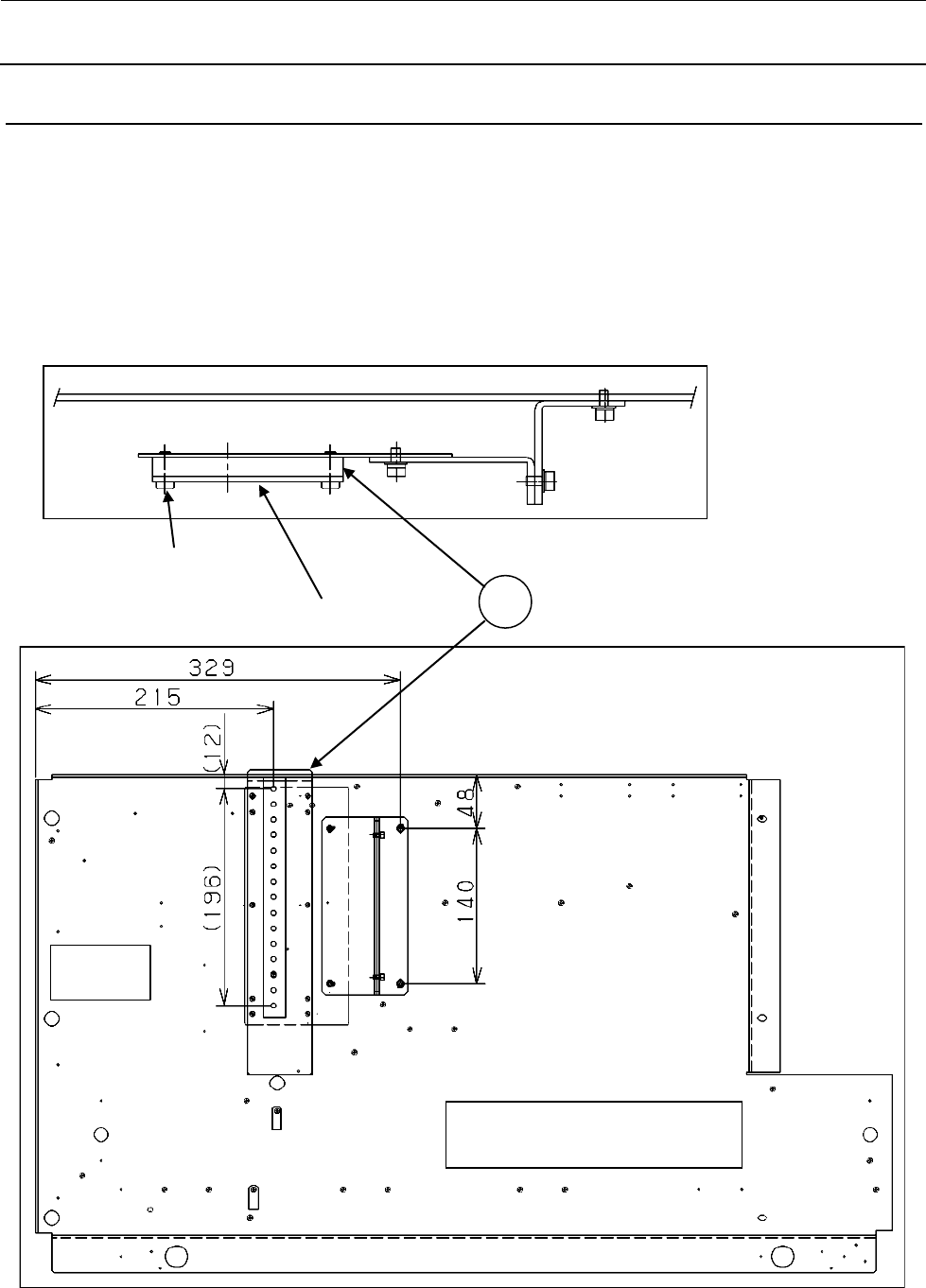
4-28. IS 装置天线的更换及调整(IS:选配)
上部天线的更换
在 X 单元的内侧,用 M3 的圆头螺丝(6 处)将上部天线与 SHEILD BRACKET 一起拧紧进行安装。
更换天线时,请将天线的传感器检测面(有标记的面)朝着堆垛机侧进行安装。
圆头螺丝上请涂抹乐泰 242 胶。
①天线(货号:40073667 ANTENNA ARRAY 14MM PITCH / 15 POSITION)
堆垛机取出侧的机器观测图
上部天线组装在 X 单元的内侧。
1
SHEILD BRACKET
圆头螺丝

维修调整要领书
4-24
下部天线的更换
在 E 单元电装盖罩的内侧,用 M3 的圆头螺丝(6 处)将下部天线与 SHEILD BRACKET 一起拧紧进行
安装。更换天线时,请将天线的传感器检测面(有标记的面)朝着堆垛机侧进行安装。
圆头螺丝上请涂抹乐泰 242 胶。
①天线(货号:
40073667 ANTENNA ARRAY 14MM PITCH / 15 POSITION)
FRONT E PL
1
SHEILD BRACKET
圆头螺丝
从正面观察机器时
40048920:天线组装在 FRONT E PL
的内侧。