TR6DNR_维修调整 - 第99页
维修调整要领书 7- 12 7- 15. BGA 气缸的更换 请拆下 S 盘,卸下夹持器臂 B ( A ),更换气缸。 SBGA 气缸板( B )要组装成图 1 的尺寸。(螺丝锁定: ThreeBond 公司制 1401C ) 组装夹持器臂 B 时,( A ) BGA 夹持器( C )要平行。 ① SBGA 气缸(货号: PA0402001A0 ) 要平行 要平行 图 1 图 2 7.5

维修调整要领书
7-11
7-14. 梭动器装置部的气动部件配置图
①SBGA 气缸(货号:PA0402001A0)
②密封圈 A(货号:E2119723000)
③密封圈 B(货号:E2119723000)
④真空吸盘(货号:PX500060000)
⑤橡皮环(货号:E2151723000)

维修调整要领书
7-12
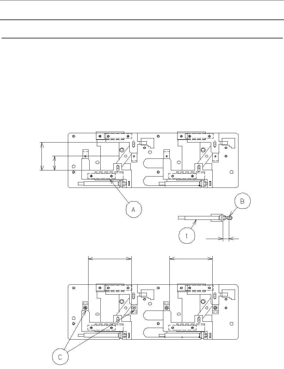
7-15. BGA 气缸的更换
请拆下 S 盘,卸下夹持器臂 B(A),更换气缸。
SBGA 气缸板(B)要组装成图 1 的尺寸。(螺丝锁定:ThreeBond 公司制 1401C)
组装夹持器臂 B 时,(A)BGA 夹持器(C)要平行。
①SBGA 气缸(货号:PA0402001A0)
要平行
要平行
图
1
图
2
7.5

维修调整要领书
7-13
7-16. BGA 气缸速度控制器的调整
请将速度控制器的旋钮从全闭状态开始旋转 1.5 圈予以固定。
梭动器
LBGA
速度控制器
梭动器
RBGA
速度控制器
梭动器
LBGA
夹持器
梭动器
RBGA
夹持器
梭动器
R
吸盘
速度控制器