SM471_Introduction(Chi_Ver1) - 第105页
6-27 Module Function 1: 卷带导向器 2: 卷带导 3: 机架 1: T ape Guide 2: Frame 根据 T ape Feeder 种类不同吸附点的 Z 值可取不同值。 另外, 因不同的 部件供给 Ta p e 种类该值可取不 同值, Embossed T ape 的高 度应该低于 Paper T a pe 高度。 Embossed T ape 时, 请参照部件 Ta p e 规格, 适当地设置吸附 点…

6-26
Samsung Component Placer SM471 Introduction
图
6.17 Embossed Carrier Tape (12mm)
节距与部件对应范围
根据Emboss 深度’A’(图 6-18),可使用的程度不同。详细规格请详细询问本公
司的营业部署或CS公司(STS)当地代理店 (Local Agent)。
图
6.18 Emboss
电动型带式喂料器的Z 轴高度基准面
电动型带式喂料器的Z轴高度基准面是吸附位置的料带底面(主框架的上表面
)。
因此,在吸附位置Z轴高度因部件大小和传送带的厚度取不同值。
A

6-27
Module Function
1:
卷带导向器
2:
卷带导
3:
机架
1: Tape Guide
2: Frame
根据Tape Feeder种类不同吸附点的Z值可取不同值。另外,因不同的部件供给
Tape 种类该值可取不同值,Embossed Tape 的高度应该低于Paper Tape高度。
Embossed Tape 时,请参照部件Tape 规格,适当地设置吸附点的Z 值。
G
Z=0
Paper Tape Embossed Tape
Z>0
Z<0

6-28
Samsung Component Placer SM471 Introduction
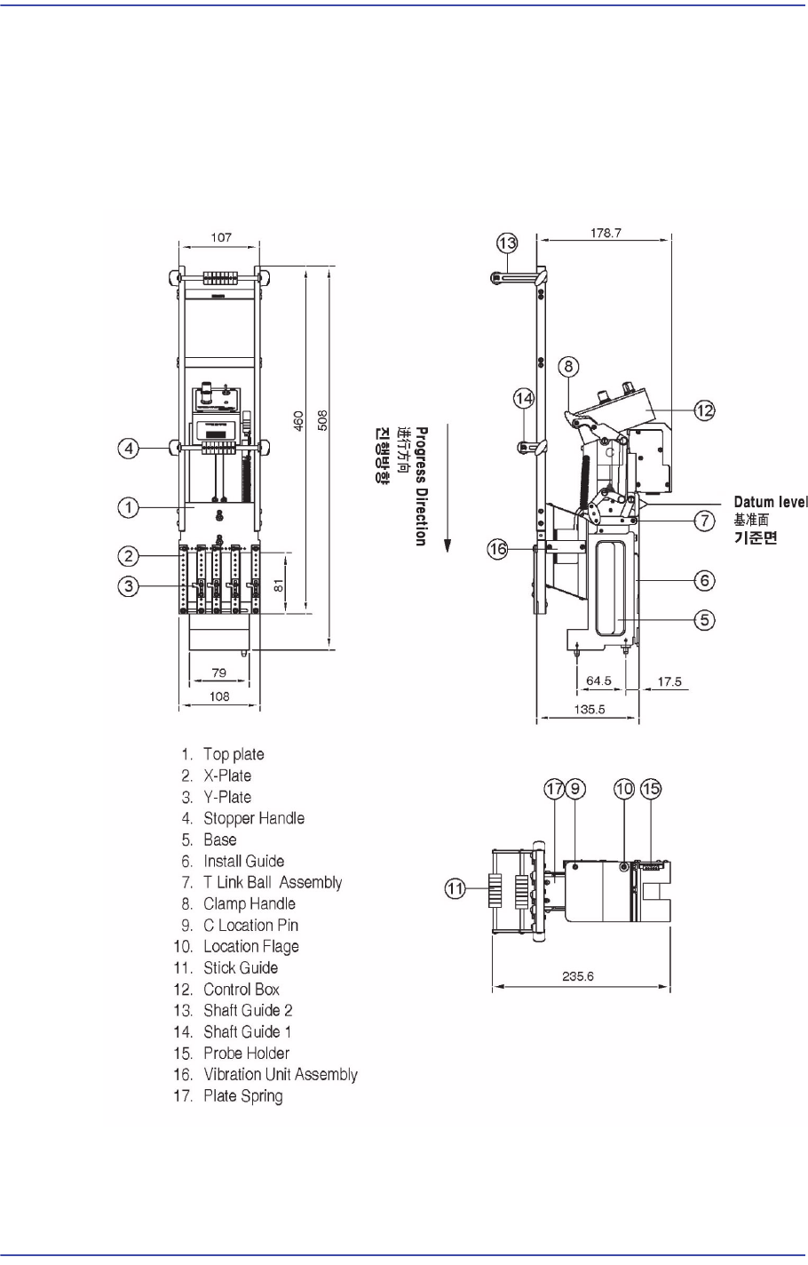
6.10.3. 振动杆式喂料器(Vibration stick feeder)
多数vibration stick feeder是把通过Stick来供应的SOP, SOJ, PLCC等部品,用震动器
的震动沿着直线方向移送的装备。它通过横向排列Stick的方法来供应部品,可以排
列4条Stick。
图
6.19
振动杆式喂料器
(Vibration stick feeder)