SPV - 第167页
Ref No. Remark s R 1 Q'ty 19 本体部(メイン機 ):SPV Main B ody(Main Machine ):SPV イラスト No. Part No. 品 名 品 番 数量 R 2 パーツリスト Kit No. キット品 番 Kit Name キット名称 MTKA000232AA Part Nam e 備 考 セクションNo. PARTS LIST Section No. R 3 SPACER …

19
本体部(メイン機):SPV
Main Body(Main Machine):SPV
パーツレイアウト
Kit No.
キット品番
Kit Name
キット名称
MTKA000232AA
セクションNo.
PARTS LAYOUT
Section No.
-
-
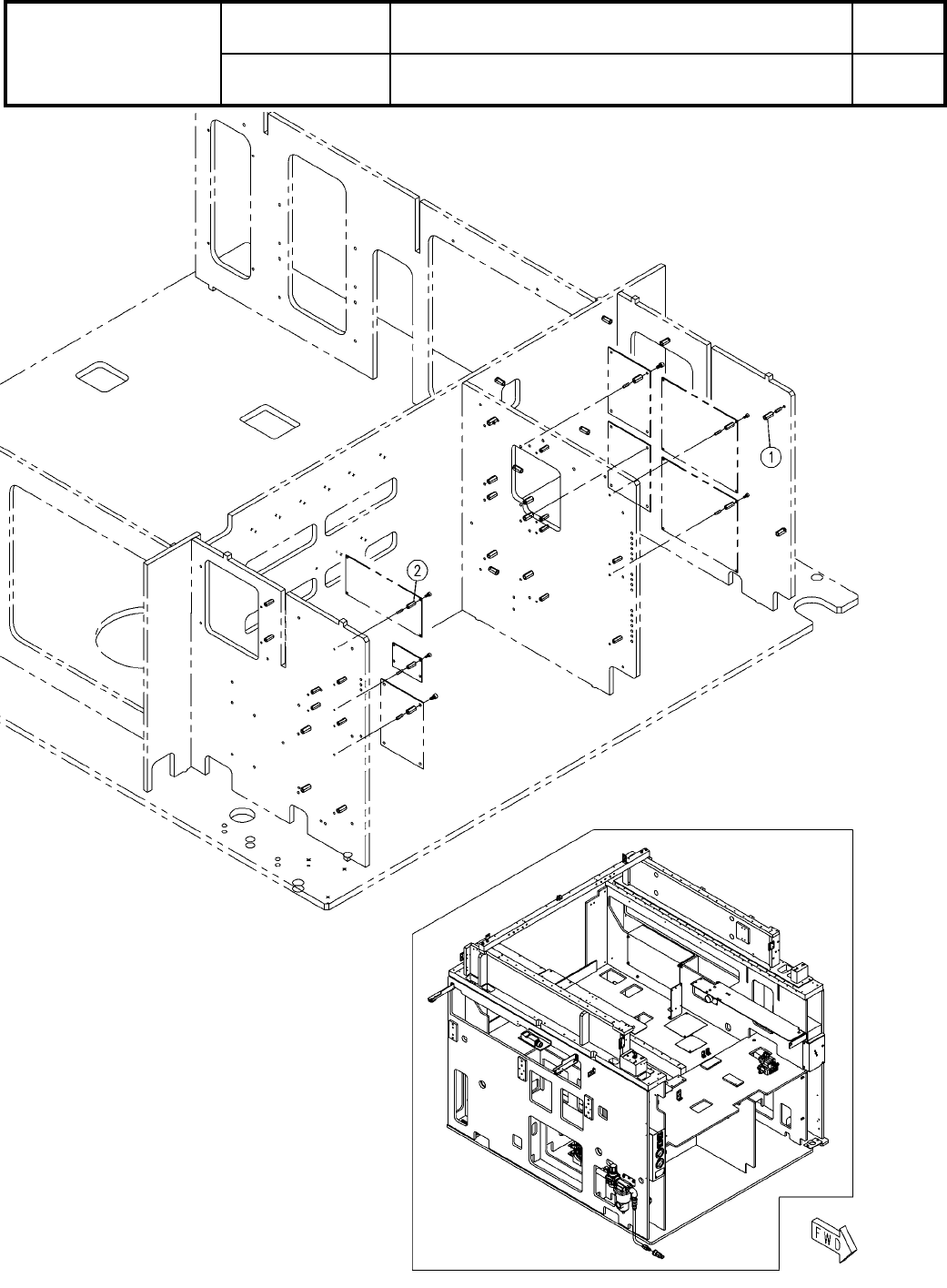
S119
( KMTKA000232AA-10-6 )

Ref
No.
Remarks R
1
Q'ty
19
本体部(メイン機):SPV
Main Body(Main Machine):SPV
イラスト
No.
Part No.
品 名品 番 数量
R
2
パーツリスト
Kit No.
キット品番
Kit Name
キット名称
MTKA000232AA
Part Name
備 考
セクションNo.
PARTS LIST
Section No.
R
3
SPACER
19
1 N510029511AA ASF-416E
SPACER
16
2 N510015643AA ASF-316E
S120
-
-
( KMTKA000232AA-10-6 )

20
銘板・警告ラベル(本体部・メイン機):SPV
Label(Main Body-Main Machine):SPV
パーツレイアウト
Kit No.
キット品番
Kit Name
キット名称
MTKA000236AA
セクションNo.
PARTS LAYOUT
Section No.
-
-
S121
( KMTKA000236AA-05-1 )