SPV - 第401页
Ref No. Remark s R 1 Q'ty 64 温度コントロール&警報 :SPV Temperature C ontrol and Alarm:SPV イラスト No. Part No. 品 名 品 番 数量 R 2 パーツリスト Kit No. キット品 番 Kit Name キット名称 MTKA000332AA Part Nam e 備 考 セクションNo. PARTS LIST Section No. …

64
温度コントロール&警報:SPV
Temperature Control and Alarm:SPV
パーツレイアウト
Kit No.
キット品番
Kit Name
キット名称
MTKA000332AA
セクションNo.
PARTS LAYOUT
Section No.
--
O169
( KMTKA000332AA-00 )

Ref
No.
Remarks R
1
Q'ty
64
温度コントロール&警報:SPV
Temperature Control and Alarm:SPV
イラスト
No.
Part No.
品 名品 番 数量
R
2
パーツリスト
Kit No.
キット品番
Kit Name
キット名称
MTKA000332AA
Part Name
備 考
セクションNo.
PARTS LIST
Section No.
R
3
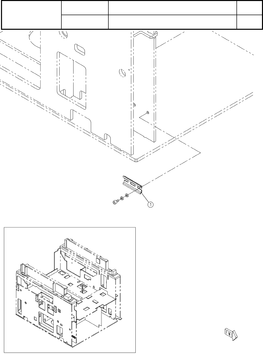
DIN-Rail
1
1 MTKP000586AA
O170
--
( KMTKA000332AA-00 )

65
温度コントロール&警報制御:SPV
Temperature Control and Alarm Unit(H):SPV
パーツレイアウト
Kit No.
キット品番
Kit Name
キット名称
N610165530AA
セクションNo.
PARTS LAYOUT
Section No.
--
O171
( KN610165530AA-02 )