SPV - 第533页
Ref No. Remark s R 1 Q'ty 20 銘板・警告ラベル (本体部・背面機) :SP V Label(M ain Body-Sub M achine):SPV イラスト No. Part No. 品 名 品 番 数量 R 2 パーツリスト Kit No. キット品 番 Kit Name キット名称 MTKA000237AA Part Nam e 備 考 セクションNo. PARTS LIST Section …

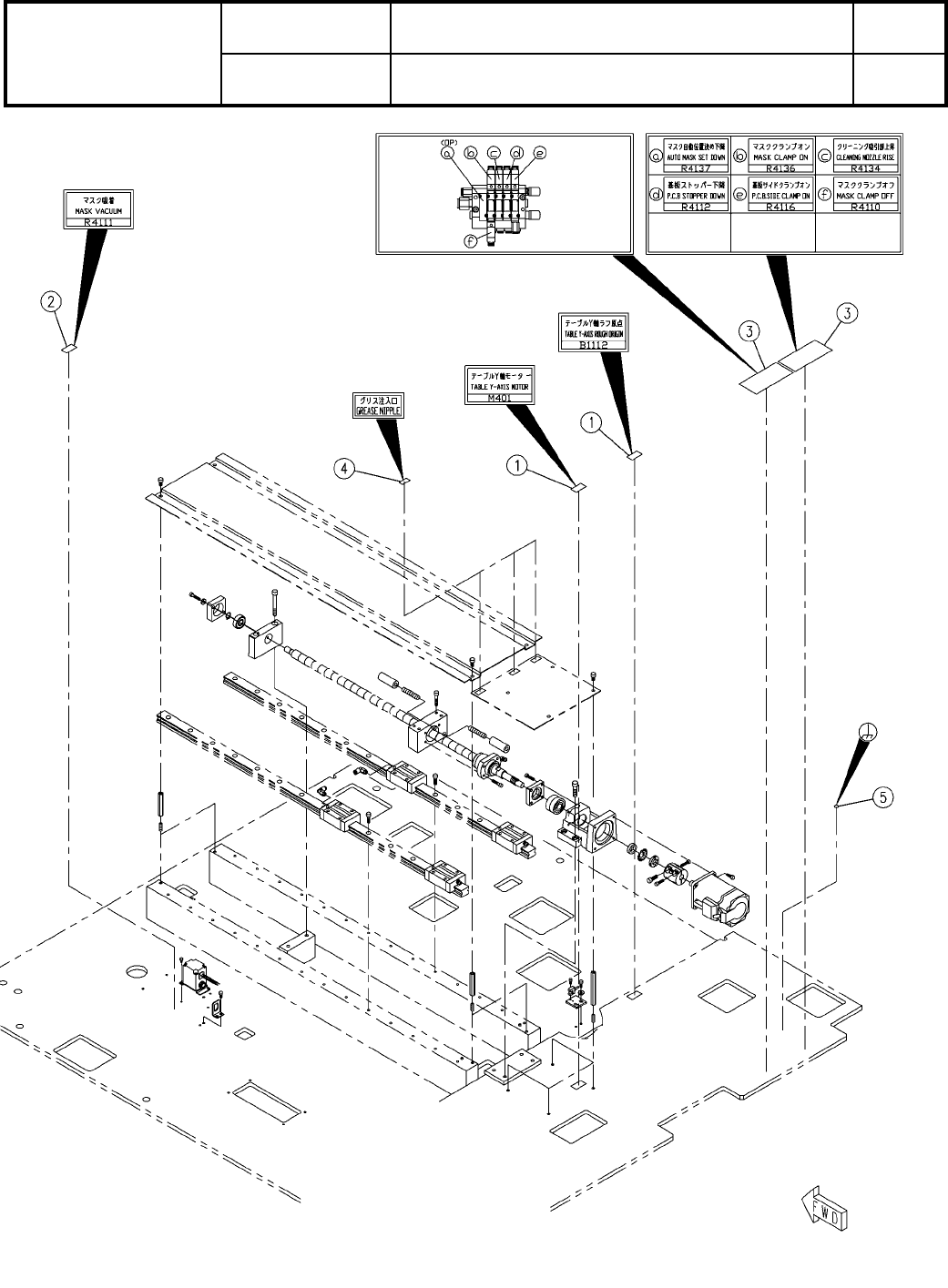
20
銘板・警告ラベル(本体部・背面機):SPV
Label(Main Body-Sub Machine):SPV
パーツレイアウト
Kit No.
キット品番
Kit Name
キット名称
MTKA000237AA
セクションNo.
PARTS LAYOUT
Section No.
-
-
S201
( KMTKA000237AA-05-4 )

Ref
No.
Remarks R
1
Q'ty
20
銘板・警告ラベル(本体部・背面機):SPV
Label(Main Body-Sub Machine):SPV
イラスト
No.
Part No.
品 名品 番 数量
R
2
パーツリスト
Kit No.
キット品番
Kit Name
キット名称
MTKA000237AA
Part Name
備 考
セクションNo.
PARTS LIST
Section No.
R
3
LABEL
1
1 MTPL000099AA
LABEL
1
3 MTPL000756AA
S202
-
-
( KMTKA000237AA-05-4 )

20
銘板・警告ラベル(本体部・背面機):SPV
Label(Main Body-Sub Machine):SPV
パーツレイアウト
Kit No.
キット品番
Kit Name
キット名称
MTKA000237AA
セクションNo.
PARTS LAYOUT
Section No.
-
-
S203
( KMTKA000237AA-05-5 )