N7202A043B - 第97页
Ref No. Remarks R 1 Q'ty 21 フィーダテーブルカバー(前側):NPM -D3 Feeder Table Cover(Front Side):NPM -D3 イラスト No. Part No. 品 名 品 番 数量 R 2 パーツリスト Kit No. キット品番 Kit Name キット名称 N610161827AA Part Nam e 備 考 セク ション No . PARTS LIST Sect…

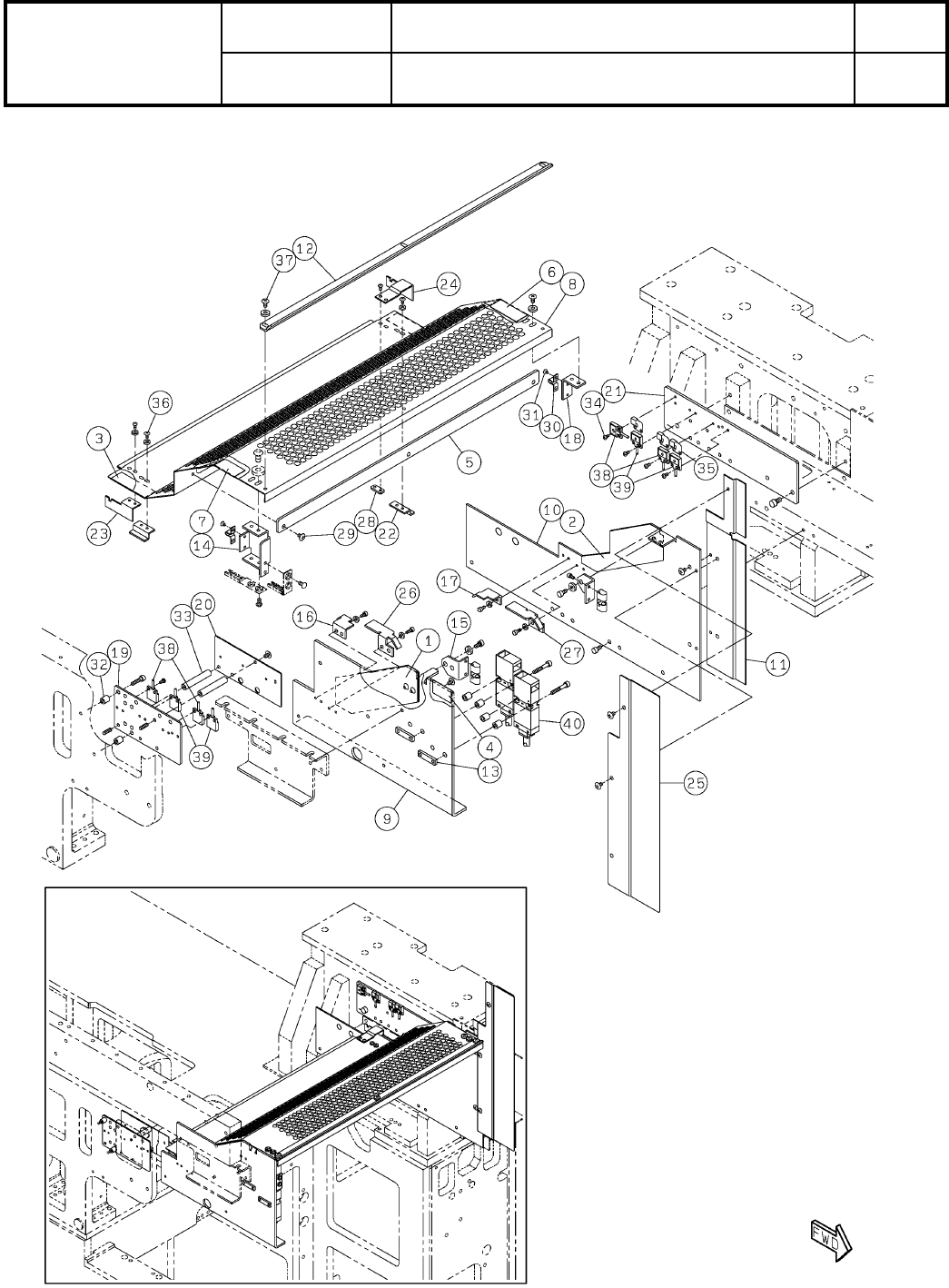
21
フィーダテーブルカバー(前側):NPM-D3
Feeder Table Cover(Front Side):NPM-D3
パーツレイアウト
Kit No.
キット品番
Kit Name
キット名称
N610161827AA
セクションNo.
PARTS LAYOUT
Section No.
--
S75
( KN610161827AA-03 )

Ref
No.
Remarks R
1
Q'ty
21
フィーダテーブルカバー(前側):NPM-D3
Feeder Table Cover(Front Side):NPM-D3
イラスト
No.
Part No.
品 名品 番 数量
R
2
パーツリスト
Kit No.
キット品番
Kit Name
キット名称
N610161827AA
Part Name
備 考
セクションNo.
PARTS LIST
Section No.
R
3
SHEET
1
1 N210191775AB
SHEET
1
2 N210153527AC
SHEET
2
3 N210144665AA
SHEET
1
4 N210153528AA
COVER
1
5 N210153542AC
SHEET
1
6 N210165932AA
SHEET
1
7 N210165933AA
COVER
1
8 N210153544AD
BRACKET
1
9 N210190675AC
COVER
1
10 N210153547AC
BRACKET
1
11 N210153549AB
COVER
1
12 N210156017AC
NUT-PLATE
2
13 KXFB03UPA00
BRACKET
1
14 N210153550AC
BRACKET
2
15 N210137522AB
BRACKET
1
16 N210141409AB
BRACKET
1
17 N210141410AB
BRACKET
1
18 N210141411AB
PLATE
1
19 N210143604AB
PLATE
1
20 N210143605AD
PLATE
1
21 MTPB002252AA
BRACKET
2
22 N210141413AA
DOG
1
23 N210143607AC
DOG
1
24 N210148646AB
PLATE
1
25 N210153554AB
BRACKET
1
26 N210145839AA
BRACKET
1
27 N210145840AA
NUT-PLATE
1
28 N210146651AA
SCREW
13
29 N510018280AA
Cross recessed Truss head machine screw M4X6-4.8 A2S (Trivalent)
CATCH
2
30 N982TL1072 TL-60-1
SCREW
4
31 N510018155AA
Cross recessed Countersunk head machine screw M3X4-4.8 A2J (Trivalent)
SPACER
6
32 N510030564AA CB-409E
SPACER
2
33 N510029497AA ASF-445E
SCREW
16
34 N510018056AA
Cross recessed Pan head machine screw M3X6-4.8 A2J (Trivalent)
SLIT
3
35 N510043435AA OS-EX20-05X3
SCREW
4
36 N510018254AA
Cross recessed Truss head machine screw M3X6-4.8 A2S (Trivalent)
SCREW
5
37 N510018283AA
Cross recessed Truss head machine screw M4X8-4.8 A2S (Trivalent)
SENSOR
2
38 N610074483AA
S
(Light Source 350mm,Receiver 1000mm)
SENSOR
2
39 N610074486AA
S
(Light Source 1000mm,Receiver 350mm)
SWITCH(1000mm)
1
40 N610162035AA
S76
--
( KN610161827AA-03 )

22
フィーダテーブルカバー(後側):NPM-D3
Feeder Table Cover(Rear Side):NPM-D3
パーツレイアウト
Kit No.
キット品番
Kit Name
キット名称
N610161828AA
セクションNo.
PARTS LAYOUT
Section No.
--
S77
( KN610161828AA-04 )