3OM-1218-005.pdf - 第154页
3 - 73 (5) (5) (5) (5) (5) 贴装数据的编写 贴装数据的编写 贴装数据的编写 贴装数据的编写 贴装数据的编写 • 机种 机种 机种 机种 机种 A A A A A 需要重复三遍相同图形的程序。 请用与 “ 3.2 重复图形 ( 有分割线路板识别 ) ” 相同方法进行编写。 (a) 以下为有必要编写的贴装数据。 • • • • • 贴装数据 (P)U 1 • • • • • 贴装数据 (O)U 1 (b) 各图形原…

3-72
3.3 3.3
3.3 3.3
3.3
异机种混载重复图形异机种混载重复图形
异机种混载重复图形异机种混载重复图形
异机种混载重复图形
041 1-002
•
基本数据一览基本数据一览
基本数据一览基本数据一览
基本数据一览
Table 3C20Table 3C20
Table 3C20Table 3C20
Table 3C20
线路板程序线路板程序
线路板程序线路板程序
线路板程序
基本数据基本数据
基本数据基本数据
基本数据
操作数据 线路板数据
○
线路板识别数据 ○
线路板识别标记数据 ○
机种生产参数 Note(a)
吸嘴配置数据 安装头1~4
○
元件配置数据 送料器安装台1 ~4 ○
贴装数据 U 1 贴装数据 (P) 贴装数据 (P) ○
单元控制 Note(b)
分割线路板识别
○
贴装数据 (O) ○
贴装数据 Un 贴装数据 (P) 贴装数据 (P) ○
单元控制 Note(b)
分割线路板识别
○
贴装数据 (O) ○
(a) 自动调整传送带宽度时,编写此数据。
(b) 请根据情况使用。
(2)(2)
(2)(2)
(2)
操作数据的编写操作数据的编写
操作数据的编写操作数据的编写
操作数据的编写
请用与 “3.2 重复图形( 有分割线路板识别) ” 相同方法进行编写。
但是,机种 A 、B 及 C 作为通用数据。
(3)(3)
(3)(3)
(3)
吸嘴配置数据吸嘴配置数据
吸嘴配置数据吸嘴配置数据
吸嘴配置数据
请用与 “3.1 单个图形( 有线路板全体识别) ” 相同方法进行编写。
(4)(4)
(4)(4)
(4)
元件配置数据的编写元件配置数据的编写
元件配置数据的编写元件配置数据的编写
元件配置数据的编写
请用与 “3.1 单个图形( 有线路板全体识别) ” 相同方法进行编写。
但是,机种 A 、B 及 C 作为通用数据。
Note

3-73
(5)(5)
(5)(5)
(5)
贴装数据的编写贴装数据的编写
贴装数据的编写贴装数据的编写
贴装数据的编写
•
机种机种
机种机种
机种
AA
AA
A
需要重复三遍相同图形的程序。
请用与 “3.2 重复图形( 有分割线路板识别) ” 相同方法进行编写。
(a) 以下为有必要编写的贴装数据。
••
••
• 贴装数据(P)U1
••
••
• 贴装数据(O)U1
(b) 各图形原点是贴装坐标基准的设定值。
•
机种机种
机种机种
机种
BB
BB
B
需要重复四遍相同图形的程序。
请用与 “3.2 重复图形( 有分割线路板识别) ” 相同方法进行编写。
(a) 以下为有必要编写的贴装数据。
••
••
• 贴装数据(P)U2
••
••
• 贴装数据(O)U2
(b) 各图形原点是贴装坐标基准的设定值。
•
机种机种
机种机种
机种
CC
CC
C
虽是单个图形,但作为单个重复图形,请用与 “ 3.2 重复图形
( 有分割线路板识别) ” 相同方法进行编写。
以下为有必要编写的贴装数据。
••
••
• 贴装数据(P)U3
••
••
• 贴装数据(O)U3
•
贴装数据贴装数据
贴装数据贴装数据
贴装数据
(O) U3(O) U3
(O) U3(O) U3
(O) U3
Table 3C21 Table 3C21
Table 3C21 Table 3C21
Table 3C21
O-No. XO-No. X
O-No. XO-No. X
O-No. X
[mm][mm]
[mm][mm]
[mm]
Y[mm]Y[mm]
Y[mm]Y[mm]
Y[mm]
Z[Z[
Z[Z[
Z[
°°
°°
°
]]
]]
]
HH
HH
H
CC
CC
C
注释注释
注释注释
注释
11
11
1
OXOX
OXOX
OX
33
33
3
OYOY
OYOY
OY
33
33
3
+000.00+000.00
+000.00+000.00
+000.00
+0.000+0.000
+0.000+0.000
+0.000
--
--
-
22
22
2
+000.000+000.000
+000.000+000.000
+000.000
+000.000+000.000
+000.000+000.000
+000.000
+000.00+000.00
+000.00+000.00
+000.00
+0.000+0.000
+0.000+0.000
+0.000
EE
EE
E
3.3 3.3
3.3 3.3
3.3
异机种混载重复图形异机种混载重复图形
异机种混载重复图形异机种混载重复图形
异机种混载重复图形
0508-004
Note
Note
Note

3-74
贴装坐标基准贴装坐标基准
贴装坐标基准贴装坐标基准
贴装坐标基准
图形图形
图形图形
图形
55
55
5
(90(90
(90(90
(90
°°
°°
°
))
))
)
图形图形
图形图形
图形
4(1 804(1 80
4(1 804(1 80
4(1 80
°°
°°
°
))
))
)
图形图形
图形图形
图形
66
66
6
(270(270
(270(270
(270
°°
°°
°
))
))
)
图形图形
图形图形
图形
1 (01 (0
1 (01 (0
1 (0
°°
°°
°
))
))
)
图形图形
图形图形
图形
2(1 802(1 80
2(1 802(1 80
2(1 80
°°
°°
°
))
))
)
图形图形
图形图形
图形
3(03(0
3(03(0
3(0
°°
°°
°
))
))
)
▲
为线路板识别标记。为线路板识别标记。
为线路板识别标记。为线路板识别标记。
为线路板识别标记。
图形图形
图形图形
图形
11
11
1
为为
为为
为
00
00
0
°°
°°
°
。。
。。
。
XX
XX
X
11
11
1
YY
YY
Y
11
11
1
XX
XX
X
22
22
2
XX
XX
X
33
33
3
00
00
0
66
66
6
YY
YY
Y
33
33
3
YY
YY
Y
22
22
2
OO
OO
O
11
11
1
OO
OO
O
33
33
3
OO
OO
O
55
55
5
OO
OO
O
44
44
4
OO
OO
O
22
22
2
3.4 3.4
3.4 3.4
3.4
极坐标变换功能极坐标变换功能
极坐标变换功能极坐标变换功能
极坐标变换功能
任意角度配置分割线路板时,通过在 O 数据的 Z(角度) 中输入各
图形的配置角度对应的功能。
贴装数据(O)以外的数据请用与 “3.2 重复图形( 有分割线路板识
别) ” 相同方法进行编写。
( 1 )( 1 )
( 1 )( 1 )
( 1 )
线路板程序的编制信息线路板程序的编制信息
线路板程序的编制信息线路板程序的编制信息
线路板程序的编制信息
•
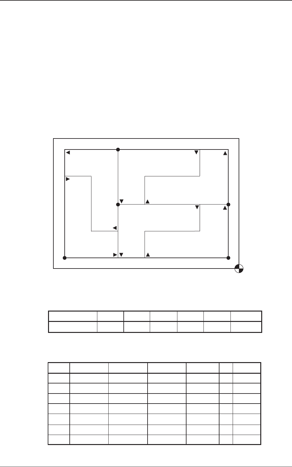
图形示例图形示例
图形示例图形示例
图形示例
Fig.3C52Fig.3C52
Fig.3C52Fig.3C52
Fig.3C52
•
各图形原点的坐标各图形原点的坐标
各图形原点的坐标各图形原点的坐标
各图形原点的坐标
Table 3C22Table 3C22
Table 3C22Table 3C22
Table 3C22
图形原点图形原点
图形原点图形原点
图形原点
OO
OO
O
11
11
1
OO
OO
O
22
22
2
OO
OO
O
33
33
3
OO
OO
O
44
44
4
OO
OO
O
55
55
5
OO
OO
O
66
66
6
坐标坐标
坐标坐标
坐标
(X(X
(X(X
(X
11
11
1
,Y,Y
,Y,Y
,Y
11
11
1
))
))
)
(X(X
(X(X
(X
22
22
2
,Y,Y
,Y,Y
,Y
22
22
2
))
))
)
(X(X
(X(X
(X
11
11
1
,Y,Y
,Y,Y
,Y
22
22
2
))
))
)
(X(X
(X(X
(X
22
22
2
,Y,Y
,Y,Y
,Y
33
33
3
))
))
)
(X(X
(X(X
(X
22
22
2
,Y,Y
,Y,Y
,Y
33
33
3
))
))
)
(X(X
(X(X
(X
33
33
3
,Y,Y
,Y,Y
,Y
11
11
1
))
))
)
(2)(2)
(2)(2)
(2)
贴装数据贴装数据
贴装数据贴装数据
贴装数据
(O)(O)
(O)(O)
(O)
的编写的编写
的编写的编写
的编写
O-No.O-No.
O-No.O-No.
O-No.
X[mm]X[mm]
X[mm]X[mm]
X[mm]
Y[mm]Y[mm]
Y[mm]Y[mm]
Y[mm]
Z[Z[
Z[Z[
Z[
°°
°°
°
]]
]]
]
HH
HH
H
CC
CC
C
注释注释
注释注释
注释
11
11
1
XX
XX
X
11
11
1
YY
YY
Y
11
11
1
+000.00+000.00
+000.00+000.00
+000.00
+0.000+0.000
+0.000+0.000
+0.000
--
--
-
22
22
2
XX
XX
X
22
22
2
YY
YY
Y
22
22
2
+ 1 80.00+ 1 80.00
+ 1 80.00+ 1 80.00
+ 1 80.00
+0.000+0.000
+0.000+0.000
+0.000
--
--
-
33
33
3
XX
XX
X
11
11
1
YY
YY
Y
22
22
2
+000.00+000.00
+000.00+000.00
+000.00
+0.000+0.000
+0.000+0.000
+0.000
--
--
-
44
44
4
XX
XX
X
22
22
2
YY
YY
Y
33
33
3
+ 1 80.00+ 1 80.00
+ 1 80.00+ 1 80.00
+ 1 80.00
+0.000+0.000
+0.000+0.000
+0.000
--
--
-
55
55
5
XX
XX
X
22
22
2
YY
YY
Y
33
33
3
+090.00+090.00
+090.00+090.00
+090.00
+0.000+0.000
+0.000+0.000
+0.000
--
--
-
66
66
6
XX
XX
X
33
33
3
YY
YY
Y
11
11
1
+270.00+270.00
+270.00+270.00
+270.00
+0.000+0.000
+0.000+0.000
+0.000
--
--
-
77
77
7
+000.000+000.000
+000.000+000.000
+000.000
+000.000+000.000
+000.000+000.000
+000.000
+000.00+000.00
+000.00+000.00
+000.00
+0.000+0.000
+0.000+0.000
+0.000
EE
EE
E
3.4 3.4
3.4 3.4
3.4
极坐标变换功能极坐标变换功能
极坐标变换功能极坐标变换功能
极坐标变换功能
0508-003
Table 3C23Table 3C23
Table 3C23Table 3C23
Table 3C23