N7205A101B08_Diagram List_控制線路圖 - 第94页
在线预览 N7205A101B08_Diagram List_控制線路圖 PDF 文档。

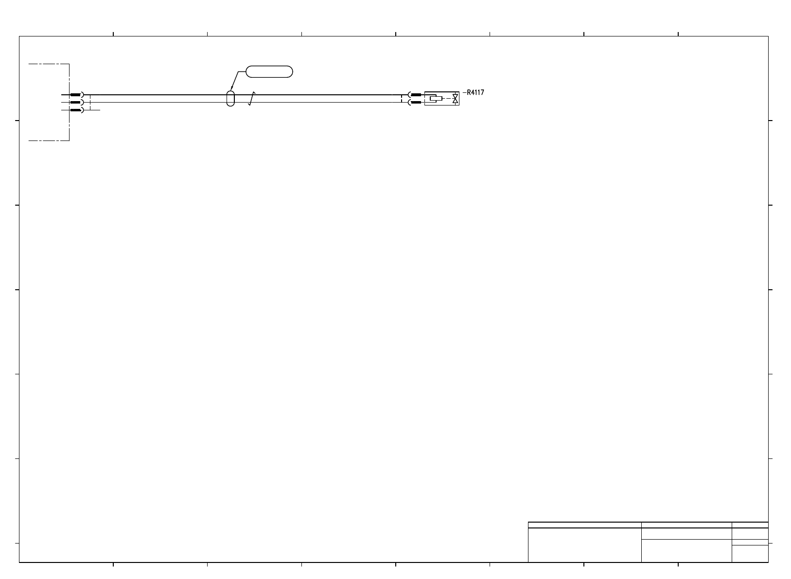
-A02
POWER UNIT
X326
P2451
OUT117
G2451
1
2
3
1
2
3
AMP
X326A02
177899-1
SMC
R4117
SY100-29-1
+
-
XY-Table Upper Clamp ON
XYテーブルクランプ爪ON
2464-1061/ⅡA(PF) LF 1P×24AWG
BK
BK/WH
N610143863AA
Panasonic Factory Solutions Co.,Ltd. パナソニック ファクトリーソリューションズ株式会社
Name
Drawing No.
Loc. No.
F4K1020-05A
1
2 3 4 5 6 7 8
A
B
C
D
E
F
1 2 3 4 5 6 7 8
A
B
C
D
E
F
Page. No.
CLAMPER WITH FOIL(H):SPG
(Output Signal Connection)
N610143862+002AA
P002

3.
LOAD WIRING DIAGRAM
OPTION
負荷配線図オプション
3-4 CLAMP PRESSURE DIGITAL CONTROL WIRING
基板クランプデジタル制御配線
EJP6AB-10-304-00