CM602-L EJM8A.pdf - 第21页
Ref No. Remark s R 1 Q'ty 1-B 本体部 Mai n B od y イラスト No. Part No. 品 名 品番 数量 R 2 パーツリスト Kit N o . キット 品 番 Kit Name キット名称 N610040204AA Part Nam e 備 考 セクションN o. PARTS LIST Section No. R 3 SHAFT 4 1 KXFB02GCB01 TARGET 8 …

1-B
本体部
Main Body
パーツレイアウト
Kit No.
キット品
番
Kit Name
キット名称
N610040204AA
セクションNo.
PARTS LAYOUT
Section No.
--
M3
( KN610040204AA-37-2 )

Ref
No.
Remarks
R
1
Q'ty
1-B
本体部
Main Body
イラスト
No.
Part No.
品 名品番 数量
R
2
パーツリスト
Kit N
o
.
キット品
番
Kit Name
キット名称
N610040204AA
Part Name
備 考
セクションNo.
PARTS LIST
Section No.
R
3
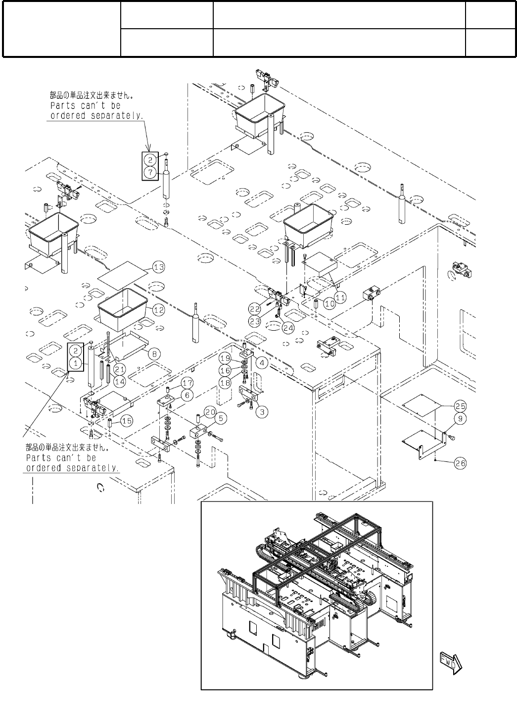
SHAFT
4
1 KXFB02GCB01
TARGET
8
2 KXFB03KAA01
PLATE
8
3 KXFB02GLA00
PLATE
4
4 KXFB02GMA01
BLOCK
4
5 KXFB02GNA00
PLATE
4
6 KXFB02GPA01
SHAFT
4
7 N210029143AB
BRACKET
4
8 N210047758AA
BRACKET
1
9 N210123132AA
BRACKET
4
10 N210043947AA
COVER
4
11 N210033593AB
TRAY
4
12 MTNK001742AA 195409DB-17
SHEET
4
13 KXF0DKNAA00 Hanenite sponge sheet(DA 0DKNA)
FRAME
4
14 N510001361AA SFF-244 L=77
PIN
4
15 KXF0CXMAA00 1017003-80020
WASHER
12
16 KXF0CP7AA00 URWH20-10-5
COLLAR
8
17 KXF0CP3AA00 NCLB6-10-18.5
WASHER
12
18 KXF0CPBAA00 WSSB20-6-3
WASHER
12
19 KXF0CXCAA00 WSSB20-10-2
COLLAR
4
20 KXF0CXDAA00 NCLB6-10-31.5
BOLT
8
21 N510017461AA
Hexagon socket head cap screw M6X95-10.9 A2J (Trivalent)
VALVE
4
22 KXF0A3RAA00 VQZ1220-5MO-C4
SILENCER
8
23 KXF00WCAA00 AN120-M5
JOINT
4
24 N510066875AA KQ2W06-M5A
PLATE
1
25 N210118844AA
SPACER
4
26 KXF0B5HAA00 SW-302
M4
--
( KN610040204AA-37-2 )

1-C
本体部
Main Body
パーツレイアウト
Kit No.
キット品
番
Kit Name
キット名称
N610040204AA
セクションNo.
PARTS LAYOUT
Section No.
--
M5
( KN610040204AA-37-3 )