TR1RB-Rev01.pdfPDFA.pdf - 第5页

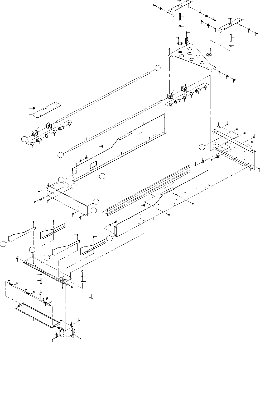
- 2 - REF.NO NOTE PART NO D E S C R I P T I O N 品 名 Qty 1 401-91524 LOCATE_PIN ロケートピン 2 2 401-91525 FRONT_PLATE フロントプレート 1 3 401-91526 SIDE_PLATE_L サイドプレートL 1 4 WP-0431005-SP PLAIN WASHER 平座金 2 5 SL-6040892-TN SCREW M4 L…

100%1 / 20
- 1 -
1. FRAME COMPONENTS
フレ−ム関係
10
16
43
42
42
43
41
43
41
43
16
14
14
44
45
46
48
57
56
55
10
13
15
17
18
18
19
20
17
20
22
21
23
24
24
24
24
25
26
26
26
27
28
30
29
31
32
33
34
37
34
37
35
35
38
36
38
36
39
40
47
47
48
50
49
51
51
52
53
52
53
54
55
56
57
57
56
55
56
57
55
62
62
60
62
60
61
61
62
58
59
63
64
65
66
54
13
15
68
11
69
- 2 -
REF.NO NOTE PART NO D E S C R I P T I O N
品 名
Qty
1 401-91524 LOCATE_PIN
ロケートピン
2
2 401-91525 FRONT_PLATE
フロントプレート
1
3 401-91526 SIDE_PLATE_L
サイドプレートL
1
4 WP-0431005-SP PLAIN WASHER
平座金
2
5 SL-6040892-TN SCREW M4 L=8
座金付き六角穴ボルト M4 L=8
2
6 401-91527 SIDE_PLATE_R
サイドプレートR
1
7 WP-0431005-SP PLAIN WASHER
平座金
2
8 SL-6040892-TN SCREW M4 L=8
座金付き六角穴ボルト M4 L=8
2
9 E1113-723-000 GUIDE BR
ガイドBR
2
10 SM-0030401-SC SCREW M3 L=4
トラスねじ M3 L=
10
11 401-91528 REAR_COVER
リアカバー
1
12 SM-0030601-SC SCREW M3X6
トラスねじ M3X6
4
13 HX-0029400-00 FIXED BASE
固定ベース
4
14 SM-0030601-SC SCREW M3X6
トラスねじ M3X6
4
15 NM-6030001-SC NUT M3X0.5 TYPE1
六角ナット M3X0.5 1種
4
16 E1105-723-000 Y SHAFT
Y シャフト
2
17 SM-6030502-TN SCREW M3 L=5
六角穴ボルト M3 L=5
2
18 SM-0030601-SC SCREW M3X6
トラスねじ M3X6
2
19 401-91529 CLAMP_BASE
クランプベース
1
20 SL-6030692-TN SCREW M3 L=6
座金付き六角穴ボルト M3 L=6
4
21 SM-6033002-TN SCREW M3 L=30
六角穴ボルト M3 L=30
1
22 NM-6030003-SC NUT M3X0.5 TYPE3
六角ナット M3X0.5 3種
1
23 401-91530 CLAMP_SHAFT
クランプシャフト
1
24 RE-0600000-K0 E-RING 6
E形止め輪 6
4
25 401-91531 CLAMP_PLATE
クランププレート
1
26 401-91532 CLAMP_SP
クランプSP
3
27 401-91533 CONNECTOR_BR
コネクタBR
1
28 SM-4850501-SC SCREW M2.5 L=5
なべ小ねじ M2.5 L=5
2
29 EZ-4456320-01 MAGNET (HXN6-6)
マグネット (HXN6−6)
1
30 401-61592 MAGNET_HOLDER
マグネット_ホルダ
1
31 SL-6030592-TN SCREW M3 L=5
座金付き六角穴ボルト M3 L=5
2
32 401-91534 CONNECTOR_COVER
コネクタカバー
1
33 SM-0030301-SN SCREW
トラスねじ M3 L=
2
34 401-91536 SLOPE_F
スロープF
2
35 SM-6030602-TN SCREW M3X6
六角穴ボルト M3X6
4
36 SM-0030601-SC SCREW M3X6
トラスねじ M3X6
2
37 401-91537 SLOPE_R
スロープR
2
38 SM-0030601-SC SCREW M3X6
トラスねじ M3X6
4
39 401-91538 HOUSING_PLATE
ハウジングプレート
1
40 SL-6030692-TN SCREW M3 L=6
座金付き六角穴ボルト M3 L=6
4
41 SB-7120001-00 BEARING
ころがり軸受
2
42 E1106-723-000 BUSHING HOUSING
ブッシュハウジング
2
43 RC-0220001-KP C-RING 22 (20.5)
C形止め輪 22 (20.5)
4
44 E1153-723-000 ROLLER STUD
ローラスタッド
1
45 SB-1050003-00 BEARING
ころがり軸受
1
46 SM-1031401-SC SCREW M3X0.5 L=14
皿小ねじ M3X0.5 L=14
1
47 SB-8080001-00 BEARING
ころがり軸受
2
48 SM-6030502-TN SCREW M3 L=5
六角穴ボルト M3 L=5
8
49 401-94851 ORG_DOG2
ORGドグ2
1
50 SL-4030691-SC SCREW M3 L=6
座金付きなべ小ねじ M3 L=6
2
51 401-91539 LIFT_ROLLER_PLATE
リフトローラプレート
2
52 RE-0600000-K0 E-RING 6
E形止め輪 6
2
53 E1174-723-000 Z SHAFT
Z シャフト
2
54 SM-1030601-SC SCREW M3X6
皿ねじ M3X6
2
55 E1153-723-000 ROLLER STUD
ローラスタッド
4
56 SB-1050003-00 BEARING
ころがり軸受
4
57 SM-1031401-SC SCREW M3X0.5 L=14
皿小ねじ M3X0.5 L=14
4
58 401-91540 FIXED_PLATE
フィキシドプレート
1
59 SL-6030692-TN SCREW M3 L=6
座金付き六角穴ボルト M3 L=6
4
60 SB-7120001-00 BEARING
ころがり軸受
2
61 E1106-723-000 BUSHING HOUSING
ブッシュハウジング
2
62 RC-0220001-KP C-RING 22 (20.5)
C形止め輪 22 (20.5)
4
63 401-87780 LOCATE_PIN_IC
ロケートピンIC
1
64 NM-6040001-SC NUT M4X0.7 TYPE1
六角ナット M4X×0.7 1種
1
65 WP-0430801-SC WASHER M4
平座金 M4
1
66 WS-0410002-KN SPRING WASHER M4
ばね座金 M4
1
67 E2106-716-000 POWER SUPPLY SEAL
電源シール
1
68 E4037-717-000 SUPPLY SEAL
SUPPL シール
1
69 E1602-723-000 MARKER
取り付けマーカ
1
- 3 -
2. COVER COMPONENTS
カバ−関係
25
27
28
26
28
29
30
34
31
32
32
33
21
20
10
11
12
13
14
24
37
35
15
16
22
39
38
23
22
36
41
40