KMN-100-1907_YSi-SP_MainteParts.pdf - 第13页
4 1 Electric Parts List Electric Parts List No. Part No. Part Name Code Remarks Rev. Rank Level *1: Please replase battey periodically by approximate 3 years. *2: 16 hours a day, 250days per year assumed the operation. I…

4
1
Electric Parts List
KMN-100
A
A
B
B
C
C
D
D
E
E
F
F
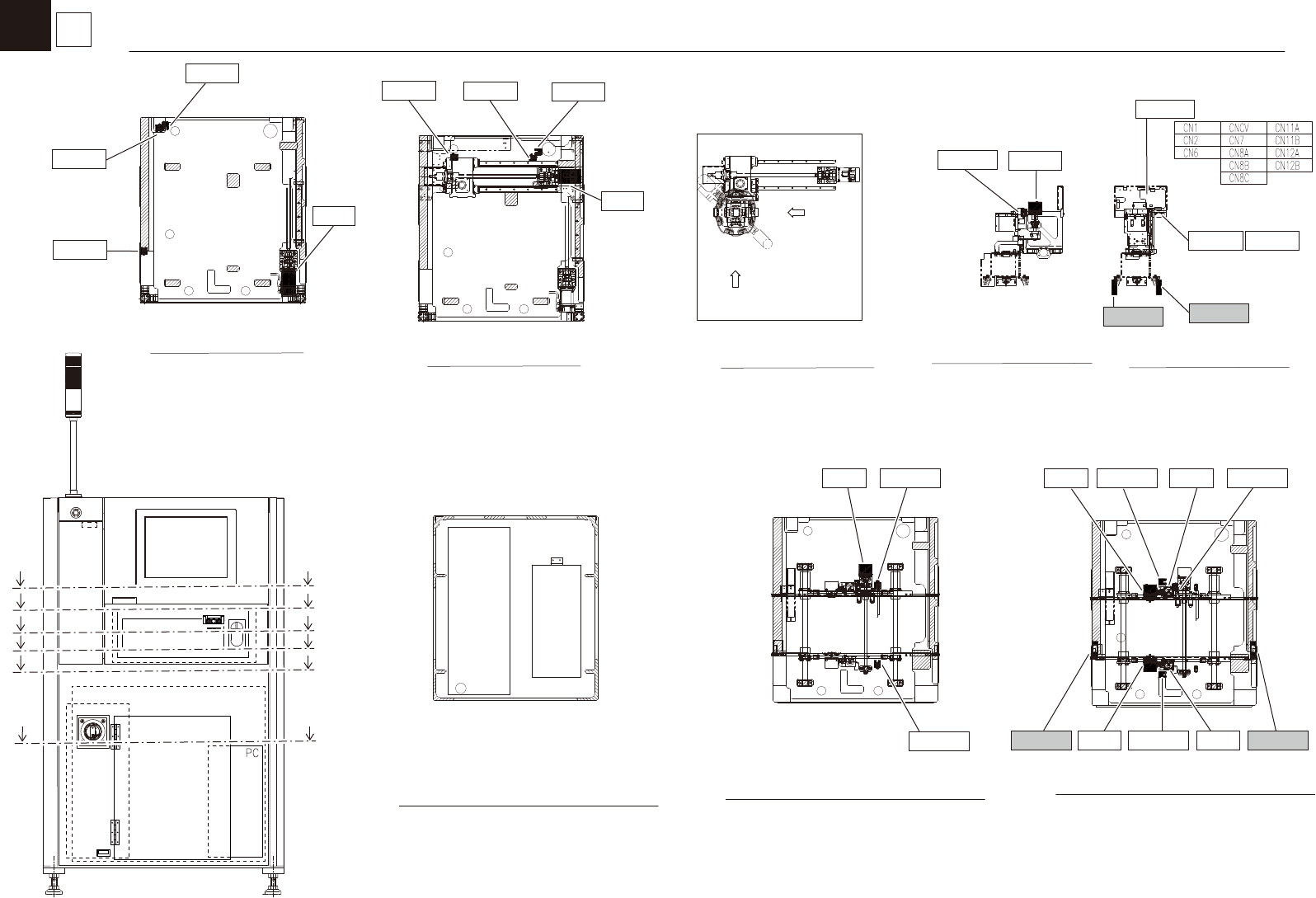
View H
View G
Control
Panel
PC
View D-D “Y-axis”
View E-E “X-axis”
View F-F “Z-axis”
View G “Camera Unit”
View H “Camera Unit”
View A-A “Control Panel /PC”
View B-B “Conveyor Width”
View C-C “Conveyor Drive”
PHR334
PHR330
PHR332
M340
M240
PHR230
PHR234
PHR232
PHR.ZOR
M7200
PHRX002
PHRX003
CNX002 CNX003
CCU7113
M560
PHRX008
M660
PHRX007
M540
PHRX004
M640
PHRX006
PHRX005
PHRX001
M440
PHRX000

4
1
Electric Parts List
Electric Parts List
No. Part No. Part Name
Code
Remarks Rev. Rank Level
*1: Please replase battey periodically by approximate 3 years.
*2: 16 hours a day, 250days per year assumed the operation. It changes with execusion status.
Replacement Cycle
KMN-100
B
B
B
B
B
B
B
B
B
B
B
B
B
B
C
C
C
B
B
B
B
B
B
B
B
B
B
E
E
E
B
At failure
At failure
At failure
At failure
At failure
At failure
At failure
At failure
At failure
At failure
At failure
At failure
At failure
At failure
At failure
At failure
At failure
At failure
At failure
One year
At failure
Five years
Five years
Five years
Five years
Five years
At failure
Three years *1
Three years *1
Three years *1
Five years *2
KMN-M65H1-B0
KMN-M4881-B0
KMN-M65H2-B0
KMN-M4882-B0
KMN-M9173-50
KMN-M6175-10
KMN-M6561-10
KMN-M6531-A0
KMN-M6532-00
KMN-M6533-00
KMN-M5136-10
KMN-M5126-10
KMN-M537G-10
KMN-M537H-10
KMN-M5137-10
KMN-M5138-10
KMN-M5139-10
KMN-M6521-10
KMN-M4200-00
KMN-M53J1-00
KMN-M5109-00
KMN-M67E1-00
KMN-M67E2-00
KMN-M67E2-10
KMN-M67E3-00
KMN-M67E3-10
KMN-M4899-C0
KMN-M65D1-00
KMN-M65D2-00
KMN-M65D3-00
KMN-M66R1-10
X SERVO AMP ASSY
X MOTOR ASSY
Y SERVO AMP ASSY
Y MOTOR ASSY
STEPPING DRIVER
FAN MOTOR
POWER SUPPLY 1
PLC UNIT CPU ASSY
PLC UNIT IO
PLC UNIT RS232C
PUSH BUTTON,EMG
SAFETY SWITCH
CONTACTOR 1
CONTACTOR 2
SW,PUSH BUTTON W
SW,PUSH BUTTON BK
SW,PUSH BUTTON BU
RELAY 1
PC UNIT
HDD UNIT
TOUCH LCD
2D LIGHT SOURCE UNIT
3D LIGHT SOURCE UNIT
3D LIGHT SOURCE UNIT
Z LIGHT SOURCE UNIT
Z LIGHT SOURCE UNIT
LIGHT 1 ASSY
PLC BATTERY
ATX BATTERY
MB BATTERY
HNS,230
N200
M240
N300
M340
N400, N500,N520, N600,620
FM1900
GS2040, GS2052, GS2066
PLC2100
SB2300
SA2308
KM2312, KM2314
KM2326
SBX009
SBX010
SBX011
KAY200, KAY201, KAY202,
KAY203, KAY204, KAY205,
KAY206, KAY107, KAY108
PC7100
PC7100-HDD
PNL7102
Measurement heads
Measurement heads
Measurement heads
Light source unit
Light source unit
TL6140
PLC2100-battery
PC7100-UPS
PC7100 button-type battery
Harness230
IO unit for PLC
RS232C unit for PLC
Cover Interlock
White
Black
Blue
A relay for KA2400
15µ, 20µ
25µ
15µ
20µ, 25µ
1
2
3
4
5
6
7
8
9
10
11
12
13
14
15
16
17
18
19
20
21
22
23
24
25
26
27
28
29
30
31
Main unit

4
1
Electric Parts List
Electric Parts List
Replacement Cycle
No. Part No. Part Name
Code
Remarks Rev. Rank Level
*1: Please replase battey periodically by approximate 3 years.
*2: 16 hours a day, 250days per year assumed the operation. It changes with execusion status.
KMN-100
B
B
B
B
B
B
B
B
B
B
B
B
B
B
Five years *2
Five years *2
Five years *2
Five years *2
Five years *2
Five years *2
Five years *2
At failure
At failure
At failure
At failure
At failure
At failure
At failure
KMN-M66R4-10
KMN-M66R5-10
KMN-M66R6-00
KMN-M66R7-00
KMN-M66R8-10
KMN-M66S1-10
KMN-M66S2-10
KMN-M66S5-10
KMN-M66S6-10
KMN-M66S4-10
KMN-M66S7-10
KMN-M7107-00
KMN-M441H-00
KMN-M45AC-00
HNS,7111
HNS,7113
HNS,7118
HNS,7119
HNS,3102A
HNS,560
HNS,660
HNS,3104
SENSOR HNS,3105
HNS,3102
SENSOR HNS,3103
CAMERA
VISION BOARD
MOTOR C/R BOARD
Harness7111
Harness7113
Harness7118
Harness7119
Harness3102A
Harness560
Harness660
PHRX004 (Harness3104)
PHRX005 (Harness3105)
PHRX002(Harness3102)
PHRX003(Harness3103)
Sensor with Harness
Sensor with Harness
Sensor with Harness
Sensor with Harness
32
33
34
35
36
37
38
39
40
41
42
43
44
45
Main unit