STACK-STICK-FEEDER(MB)-Rev02.pdf - 第5页
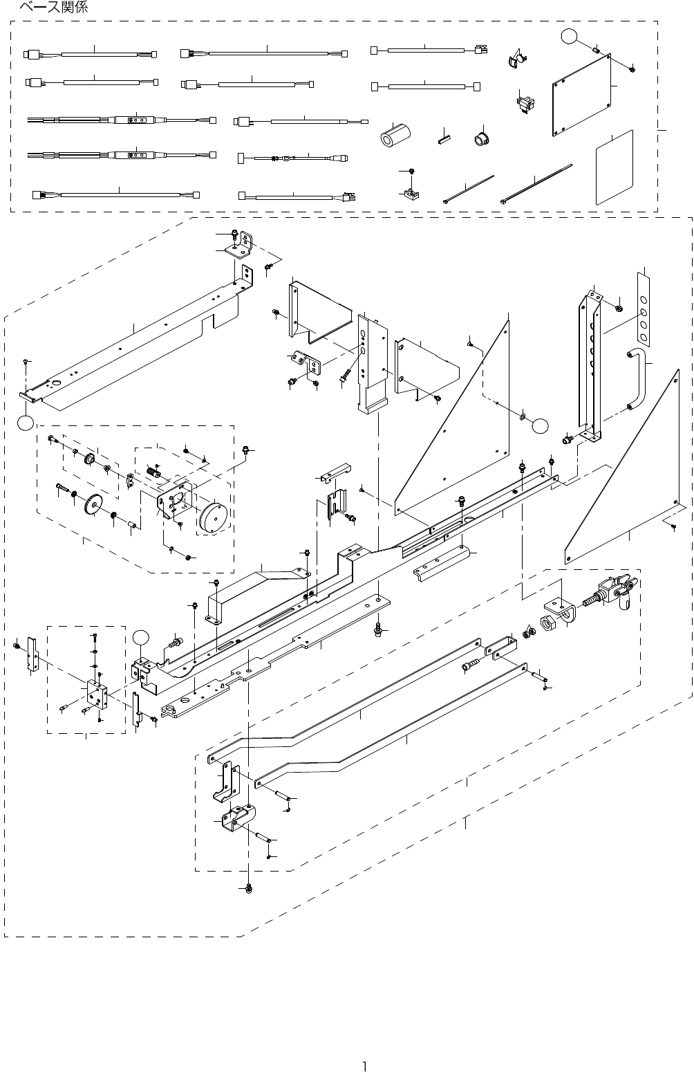
- - REF.NO NOTE PART NO D E S C R I P T I O N Qty 1 400-57300 BASE ASM 1 2 400-55059 FEEDER BASE (1) 3 400-55060 UPPER BASE (1) 4 400-57343 STAY ASM (1) 5 400-57309 CLAMP ASM (1) 6 400-55061 LOCK HOLDER (1) 7 400-55063…

- -
1. BASE COMPONENTS
4
7
8
6
1 0
1 0
1 3
1 4
1 5
1 1
1 2
5
1 9
2 1
2 2
2 3
2 0
1 8
2 5
2 6
2 7
2 4
2 8
3 0
2 9
3 1
3 2
3 5
3 6
2
4 0
4 1
4 1
4 3
4 2
3 7
4 5
4 7
4 8
4 9
5 0
5 4
5 7
6 2
B
B
9 4
9 5
9 6
9 7
9 8
9 9
7 5
7 6
7 7
7 8
7 9
8 0
8 1
8 2
8 4
8 5
8 6
8 7
8 8
8 9
9 0
9 1
9 2
9 3
1
7 4
A
A
7
3 8
4 6
3 6
3 4
1 6
5 5
3
8 3
1 7
6 0
6 0
6 0
6 0
6 1
5 9
5 9
6 2
3 3
5 8
5 8
1 3
7
9
6 0
1 3
6 8
6 8
5 8
5 1
6 4
5 2
6 0
3 9
5 3
6 0
6 3
7 1
6 5
6 6
5 6
6 7
6 9
4 4
7 0
7 1
7 2
7 0
6 0
7 3

- -
REF.NO NOTE PART NO D E S C R I P T I O N Qty
1 400-57300 BASE ASM 1
2 400-55059 FEEDER BASE (1)
3 400-55060 UPPER BASE (1)
4 400-57343 STAY ASM (1)
5 400-57309 CLAMP ASM (1)
6 400-55061 LOCK HOLDER (1)
7 400-55063 HOLDER SHAFT(1) (3)
8 400-55064 CLAMP LINK (1)
9 400-55066 LOCK BLOCK (1)
10 400-55067 CLAMP LINK(2) (2)
11 400-55069 CLAMP BRACKET (1)
12 400-69111 TOGGLE CLAMP (1)
13 RE-0300000-K0 E-RING 3 (6)
14 NM-6060003-SC NUT M6 (2)
15 SM-6062002-TN SCREW M6 L=20 (1)
16 400-57311 MOTOR BRK ASM (1)
17 400-55073 MOTOR BRACKET (1)
18 400-55097 GEAR SHAFT BASE (1)
19 400-55098 GEAR SHAFT COLLAR (1)
20 400-60541 PARTS FEED MOTOR ASM B (1)
21 400-56241 PARTS FEED MOTOR ASM (1)
22 400-55099 SPUR GEAR(1) (1)
23 SM-8030302-TP SCREW M3X0.5 L=3 (1)
24 400-57315 SPUR GEAR (2)ASM (1)
25 400-55100 SPUR GEAR(2) (1)
26 400-57183 BUSHING 80F0404 (1)
27 400-57180 BUSHING 80B0403 (1)
28 400-55119 SPUR GEAR(3) (1)
29 400-55623 GEAR SHAFT(1) (1)
30 400-55624 GEAR SHAFT(2) (1)
31 SL-4860591-SC SCREW M2.6 X 5 (2)
32 WP-0280501-SC WASHER M2.6 (2)
33 SM-1030401-SE SCREW M3 L=4 (2)
34 NM-6040003-SC NUT M4 (1)
35 WS-0410002-KN SPRING WASHER (1)
36 SB-1050021-00 BEARING (2)
37 400-57312 CENTER PLATE ASM (1)
38 400-55070 CENTER PLATE (1)
39 400-55071 CENTER PIN (1)
40 400-55072 ECCENTRIC PIN (1)
41 SM-8030502-TP SCREW M3 L=5 (2)
42 SM-6851202-TN SCREW M2.5 L=12 (1)
43 NM-6850001-SC NUT M2.5 (1)
44 WP-0280501-SC WASHER M2.6 (1)
45 400-55075 PANEL COVER(1) (1)
46 400-55076 PANEL COVER(2) (1)
47 400-55083 COVER(B1) (1)
48 400-55084 COVER(B2) (1)
49 400-55484 SUB SUPPORT(1) (1)
50 400-55494 PANEL (1)
51 400-56709 SWITCH RABEL (1)
52 400-56899 PROTECTOR L (1)
53 400-56900 PROTECTOR R (1)
54 400-57205 PULL (1)
55 400-55790 COVER (1)
56 400-57363 CARRIER RAIL 51 (1)
57 SL-6041292-TN SCREW (2)
58 SL-6040892-TN BOLT (6)
59 SM-1850501-SC SCREW
(6)
60 SL-6030692-TN BOLT (16)
61 SL-6051692-TN BOLT (2)
62 SL-6051092-TN BOLT (4)
63 SM-3030552-TN SCREW M3 L=5 (2)
64 400-57313 SUB BASE ASM (1)
65 SM-6041602-TN SCREW M4 X 16 (2)
66 WP-0531000-SC WASHER 5.3X10X1 (4)
67 400-37289 DIN_ATTACHMENT (2)
68 SL-6041092-TN SCREW (4)
69 400-66305 SUPPORT BRACKET (1)
70 SL-6041292-TN SCREW (4)
71 SL-6030892-TN SCREW (4)
72 400-66304 SUB SUPPORT(2) (1)
73 SM-1030601-SC SCREW M3 L=6 (4)
74 400-60005 ELECTRICAL COMPONENT ASM 1
75 400-56229 PARTS EMPTY SENSOR ASM (1)
76 400-56230 POWER ON SW ASM (1)
77 400-56231 POWER OFF SW ASM (1)
78 400-56235 POWER CABLE ASM (1)
79 400-56238 STOPPER SOL CABLE ASM (1)
80 400-56242 PARTS FEED MOTOR CABLE ASM (1)
81 400-56571 LIFT MOTOR CABLE ASM (1)
82 400-01306 CABLE PROTECTOR SHEET (1)
83 HA-0051000-30 SWITCH (1)
84 HD-0006700-00 SENSOR (2)
85 HN-0021100-00 CORES (1)
86 HX-0009600-00 EDGE BUSHING (0.02)
87 HX-0018800-0B BUSH (1)
88 HX-0029400-00 FIXED BASE (4)
89 SL-4030681-SC SCREW M3 L=6 (4)
90 EA-9500B01-00 CABLE BAND (7)
91 HX-0006500-0A CABLE CLIP (2)
92 HX-0041800-0C SPACER (4)
93 SL-4030681-SC SCREW M3 L=6 (4)
94 400-37046 SSF-CTRL PCB ASM (1)
95 400-56223 START SW ASM (1)
96 400-56224 REVERSE SW ASM (1)
97 400-56225 PICK SENSOR ASM (1)
98 400-56226 LOWER LIMIT SENSOR CABLE ASM (1)
99 400-56228 UPPER LIMIT SENSOR CABLE ASM (1)

- -
2. FEED COMPONENTS (1) (TYPE 1SFS)
3
5
B
7
8
9
1 7
2 4
1 4
3 1
3 0
2 9
2 7
1 2
3 7
3 9
4 4
4 5
4 6
4 7
4 9
4 9
4 9
4 9
4 8
4
5 4
5 5
5 5
5 6
6 4
6 1
6 4
6 9
6 7
7 0
7 5
8 2
7 7
7 2
7 3
8 7
9 0
9 2
1 2 3
9 8
9 9
7 1
7 1
9 4
1 0 0
1 0 0
9 4
8
1 0 1
1 1 2
1
A
B
1 3
9 7
5 8
8 6
8 4
5 0
1 5
1 7
1 1
8 0
7 9
9 3
3 6
9 4
2
8 8
6 8
5 9
6 0
9 6
5 2
2 0
3 8
1 0 4
1 0 4
1 0 4
C
C
3 2
2 5
2 6
3 3
3 4
1 1 4
1 0 3
1 1 0
1 0 9
1 0 8
1 1 0
1 0 9
1 0 8
1 0 2
1 0 3
1 1 1
1 0 3
7 6
6 2
1 0 3
1 0 3
1 0 3
4 3
1 0 4
5 3
6 5
6 1
5 7
5 3
1 0 3
1 0 3
1 0 3
1 0 3
4 8
1 0 3
1 0 3
1 0
D
1 1 2
1 8
1 1 2
9 5
1 0 2
8 5
5 1
1 2 1
6
4 2
4 8
4 8
1 0 1
A
4 0
4 1
D
1 0 3
1 0 9
1 0 7
1 0 3
1 1 0
1 0 8
1 0 3
1 0 3
1 1 9
1 0 6
2 8
1 6
3 5
2 4
2 2
6 6
8 5
8 6
8 8
6 3
6 2
1 0 3
8 1
8 1
1 2 1
1 1 3
9 9
8 3
7 3
1 1 5
1 0 5
1 9
3 4
1 1 6
1 1 7
9 1
9 1
1 0 0
E
E
1 0 4
1 0 4
8 9
8 7
8 4
1 0 6
2 3
2 1
1 2 2
9 9
1 2 2
1 2 2
7 4
7 8
1 2 0
1 1 8