N7202A047B00.pdf - 第94页
20-C フィーダーテーブルカバー(交換台車対応)Front側:NPM-W2 Feeder Table Cover(Feeder Cart)Front:N PM-W 2 パーツレイアウト Kit No. キット 品番 Kit Name キット名称 MTKA001537AA セクションNo. PARTS LAYOUT Section No. - - S71 ( KMTKA001537AA-02-3 )

Ref
No.
Remarks R
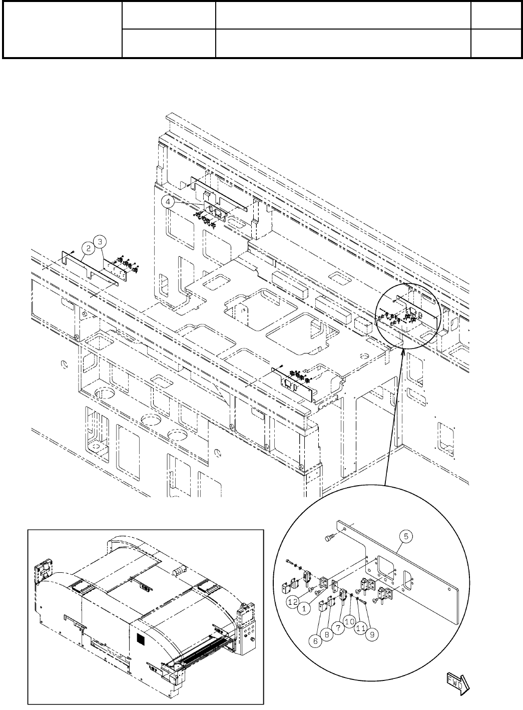
1
Q'ty
20-B
フィーダーテーブルカバー(交換台車対応)Front側:NPM-W2
Feeder Table Cover(Feeder Cart)Front:NPM-W2
イラスト
No.
Part No.
品 名品 番 数量
R
2
パーツリスト
Kit No.
キット品番
Kit Name
キット名称
MTKA001537AA
Part Name
備 考
セクションNo.
PARTS LIST
Section No.
R
3
BRACKET
1
1 N210201221AD
BRACKET
1
2 N210147104AC
NUT-PLATE
2
3 N210186760AA
BRACKET
2
4 N210147105AA
COVER
1
5 N210147112AB
BRACKET
1
6 N210147106AB
COVER
1
7 N210147107AE
COVER
1
8 N210147834AA
BRACKET
1
9 N210179792AA
COVER
1
10 MTKA000155AC
SWITCH
2
11 N510057874AA
S
HS5D-03RNP
JOINT
2
12 KXF06F4AA00 53015030-WM
SPACER
2
13 N510020146AA ASF-435E
CABLE-SUPPORT
2
14 N348TA1S8 TA1S8
BOLT
2
15 N510017536AA
SSS 003 Hexagon socket button head screw M4X8-10.9 A2J (Trivalent)
S70
--
( KMTKA001537AA-02-2 )

20-C
フィーダーテーブルカバー(交換台車対応)Front側:NPM-W2
Feeder Table Cover(Feeder Cart)Front:NPM-W2
パーツレイアウト
Kit No.
キット品番
Kit Name
キット名称
MTKA001537AA
セクションNo.
PARTS LAYOUT
Section No.
--
S71
( KMTKA001537AA-02-3 )

Ref
No.
Remarks R
1
Q'ty
20-C
フィーダーテーブルカバー(交換台車対応)Front側:NPM-W2
Feeder Table Cover(Feeder Cart)Front:NPM-W2
イラスト
No.
Part No.
品 名品 番 数量
R
2
パーツリスト
Kit No.
キット品番
Kit Name
キット名称
MTKA001537AA
Part Name
備 考
セクションNo.
PARTS LIST
Section No.
R
3
BLOCK
16
1 N210174185AA
PLATE
2
2 N210147109AB
PLATE
1
3 N210147110AC
PLATE
1
4 N210152124AB
PLATE
2
5 N210153729AA
SLIT
16
6 N210174144AA
SENSOR(350mm)
8
7 N610121533AB
S
FILTER
4
8 N510057978AA E39-E14
BOLT
32
9 XVE2B12FTC Hexagon socket head cap screw M2X12-12.9 SOB
WASHER
64
10 N510018477AA
Small round-plain washer 2 10H A2J (Trivalent)
WASHER
32
11 N510018324AA Spring lock washer No.2 2 S A2J (Trivalent)
SCREW
32
12 N510018253AA
Cross recessed Truss head machine screw M3X6-4.8 A2J (Trivalent)
S72
--
( KMTKA001537AA-02-3 )