1OM-1513-001_w.pdf - 第201页
1OM-1513 6-16 第六章1.支撑治具制作规格 1.6.2 元件部 ( 元件编号 11-1) 的变形图 6- φ 9.5 Depth 6 6-φ6 7 7 Material : A5052 Processing : None Fine Chamfering (Fringe) R (Optional) Engraved Origin for Pick-Up Hole Coordinates 吸取孔坐标以及径 请根据线路板形…

1OM-1513
第六章1.支撑治具制作规格
6-15
1.6 线路板吸取治具 ( 线路板宽W
“
250<=W<=460
”
)
1.6.1 组装图
X2
4-M4L15
W
L
6-M5L35
55.0 ±0.03
11-3
11-1
11-2
11-4
S-1
X1
X1
X1
X1
X4
88
250<W<460
Material : SUS304
Processing : None
(PCB Length)
(PCB Width)
Magnets
两点划线表示线路板定位状态。
Bonding with LOCTITE
1. T元件编号S-1为购入品。
2. 各元件组装后,加工R面,完成※标记的尺寸。
3. 元件编号11-5在加工R面以后安装。
F1F13
0908-001

1OM-1513
6-16
第六章1.支撑治具制作规格
1.6.2 元件部 ( 元件编号 11-1) 的变形图
6-φ9.5 Depth 6
6-φ6
7
7
Material : A5052
Processing : None
Fine Chamfering
(Fringe)
R (Optional)
Engraved
Origin for Pick-Up Hole Coordinates
吸取孔坐标以及径
请根据线路板形状,开适合的吸取孔。
F1F14
0908-001

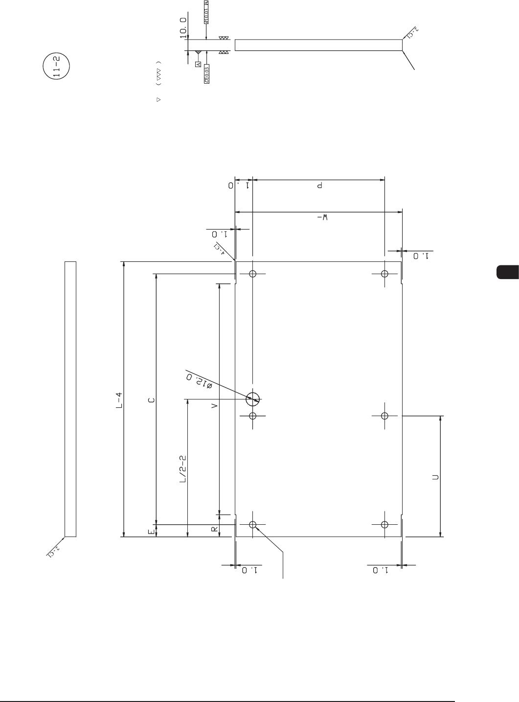
1OM-1513
第六章1.支撑治具制作规格
6-17
1.6.3 元件部 ( 元件编号 11-2) 的变形图
6-φ6
7
7
Material : A5052
Processing : None
Fine Chamfering
(Fringe)
F1F15
0908-001