N7202A030B.pdf - 第617页
Ref No. Remark s R 1 Q'ty 136 FAパソコ ンキット FA PC k it イラスト No. Part No. 品 名 品番 数量 R 2 パーツリスト Kit N o . キット品 番 Kit Name キット名称 N610080806AA Part Nam e 備 考 セクションNo. PARTS LIST Section No. R 3 PC 1 1 N510050237AA S FC-E21…

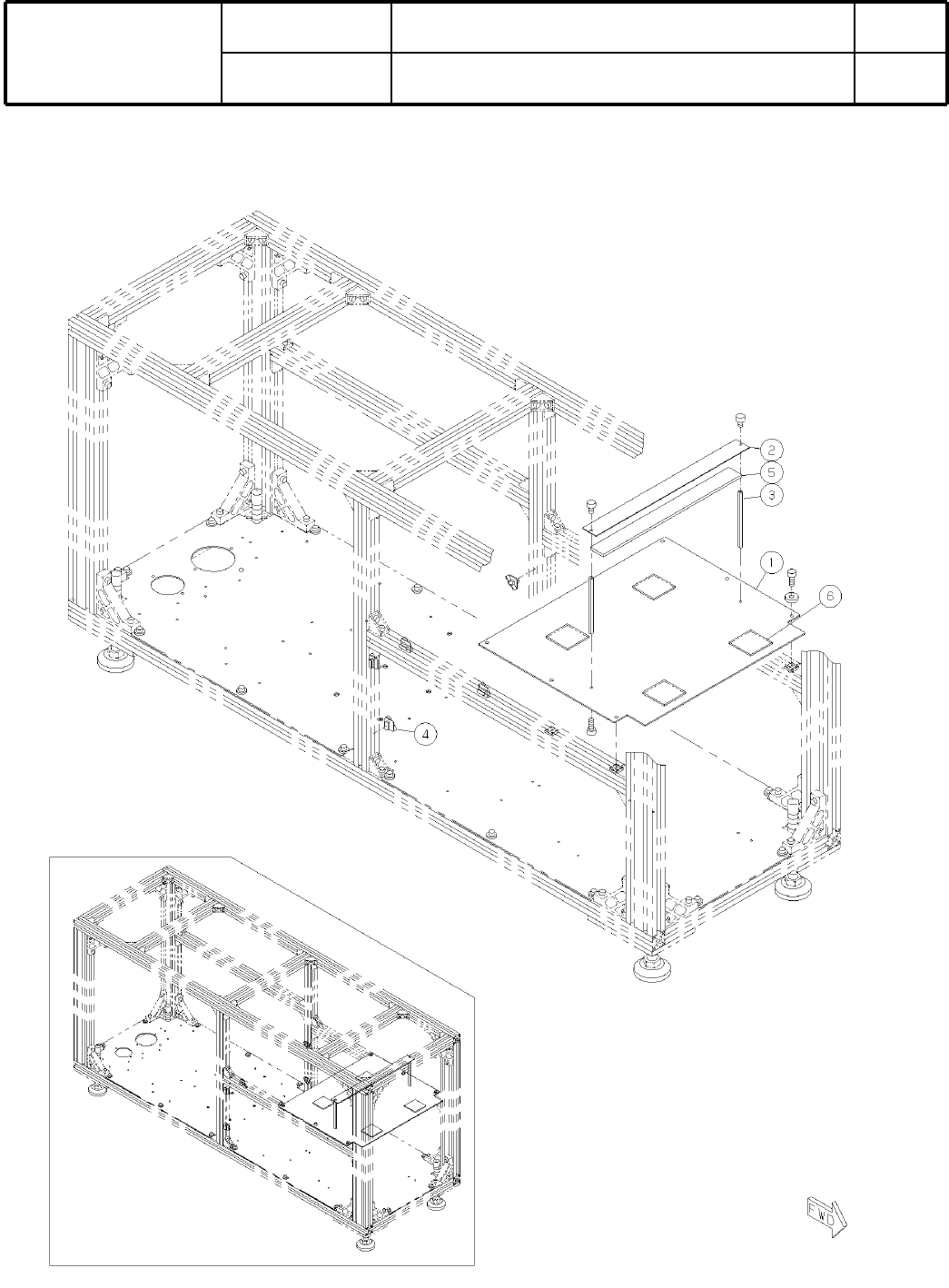
136
FAパソコンキット
FA PC kit
パーツレイアウト
Ki
t
N
o
.
キット
品番
Kit Name
キット名称
N610080806AA
セクションNo.
PARTS LAYOUT
Section No.
--
O429
( KN610080806AA-02 )

Ref
No.
Remarks
R
1
Q'ty
136
FAパソコンキット
FA PC kit
イラスト
No.
Part No.
品 名品番 数量
R
2
パーツリスト
Kit N
o
.
キット品
番
Kit Name
キット名称
N610080806AA
Part Name
備 考
セクションNo.
PARTS LIST
Section No.
R
3
PC
1
1 N510050237AA
S
FC-E21A/DL205P
BATTERY
1
2 N510042756AA FC-BT001
BATTERY
1
3 N510048031AA FC-BP001
O430
--
( KN610080806AA-02 )

137
LNBステーション対応ユニット(メカ部品):NPM-D
LNB Station Support Unit (Mechanical Parts):NPM-D
パーツレイアウト
Ki
t
N
o
.
キット
品番
Kit Name
キット名称
N610123763AA
セクションNo.
PARTS LAYOUT
Section No.
--
O431
( KN610123763AA-02 )