Hanwha SM482 PLUS Multi-Functional Placer.pdf - 第36页
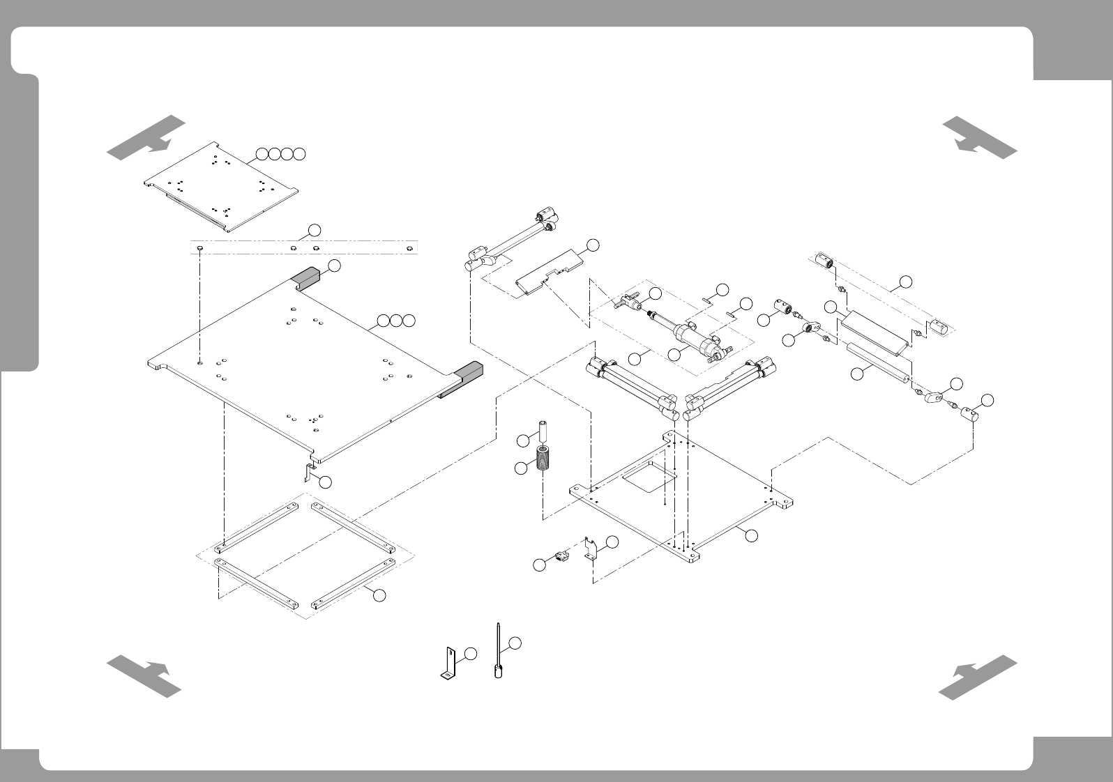
Page +$1:+$ 36 SM482 PLUS Backup Table Ass’y Left side Right Side F ront side Rear side 1 2 27 28 8 26 24 23 20 25 16 15 13 18 21 4 3 19 22 14 24 23 12 9 29 5 6 7 17 10 11

Page
+$1:+$
35
Docking Cart (6/6)
SM482
PLUS
NO. PART NO. PART NAME Q'TY Old No. Applicable Equipment Reference
AM03-001729A CABLE ASSY-FRONT D-CART PWR CABLE ASSY 1
J9080852D LEFT FDR SOL OUTPUT CABLE ASSY, D-CART[S 1
J9080853B RIGHT FDR SOL OUTPUT CABLE ASSY, D-CART[ 1
J9080854C LEFT FDR SENOR INPUT CABLE ASSY, D-CART[ 1
J9080855B RIGHT FDR SENOR INPUT CABLE ASSY, D-CART 1
J9080857B FDR INPUT EXT CABLE ASSY, D-CART[SM_FD01 1
AM03-001739A CABLE ASSY-FEEDER CN7 EXT CABLE ASSY 1
AM03-013728A CABLE ASSY-ND-CART RY1 EXT 2 1
AM03-001730A CABLE ASSY-REAR D-CART PWR CABLE ASSY 1

Page
+$1:+$
36
SM482
PLUS
Backup Table Ass’y
Left side
Right Side
Front side
Rear side
1 2 27 28
8
26
24
23
20
25
16
15
13
18
21
4
3
19
22
14
24
23
12
9
29
5 6 7
17
10
11

Page
+$1:+$
37
Backup Table Ass’y
SM482
PLUS
NO. PART NO. PART NAME Q'TY Old No.
Applicable
Equipment
Reference
1 AM03-014979A ASSY,BUT-SM482-400_N 1
2 AM03-014980A ASSY,BUT-SM482-460_L 1
3 AM03-019772A ASSY,ETC,IMS-V_BACK_UP_PIN 1
4 J70621008A BUT_HOLD_PLATE1 2
5 FC30-002621A PLATE-BACK_UP 1 ~#478 BUT W400_N OPTION
FC30-006025A PLATE-BUT_TOP_PLATE 1 #479~
6 FC30-002622A PLATE-BACK_UP 1 ~#478 BUT W460_L, W510_X OPTION
FC30-006030A PLATE-BUT_TOP_PLATE 1 #479~
7 FC30-002623A PLATE-BACK_UP 1 ~#478 BUT W460_SL OPTION
FC30-006028A PLATE-BUT_TOP_PLATE 1 #479~
8 FC30-002536A PLATE-UPPER_FREE_LINK 1
9 FC29-000414 CAP-PACK 4
10 FC29-004515A DOG-BUT_UP_SENSOR 1 ~#478
FC29-004259B DOG-BUT_SENSOR 1 #479~
11 FC09-004951A BRACKET-TOP SPACER 4 ~#478
FC30-006029B PLATE-BUT_UPPER_PLATE_2PIECE_B 2 FC30-006029A #479~
12 FC09-004804A BRACKET-BUT_UP_SENSOR 1 ~#478
FC29-900609 HEX SUPP0RT 2 #479~
13 EP19-900108 PHOTO SENSOR 1
14 AM03-014987A ASSY,BUT-SM482_UPPER_BEARING 2
15 J61071108A BUT_SPRING 1
16 FC29-004429A STOPPER-URETHAN_CUSHION 1
17 FC30-002620A PLATE-LOWER_BUT 1 ~#478
FC30-002620B PLATE-BUT_LOWER_SINGLE 1 #479~
18 FC30-002532A PLATE-UPPER_DRIVING_LINK 1
19 FC14-900506 CYLINDER JOINT 1
20 HP03-900013 CYLINDER 1
21 HP13-900088 AIR TUBE(POLYYRETHANE) 1.45
22 HP13-900081 AIR TUBE (POLYURETHANE) 1.55
23 AM03-014986A ASSY,BUT-SM482_LOWER_BEARING 8