TR6SNR_TR6SNV_TR6SNX-Rev04PDFA.pdf - 第5页
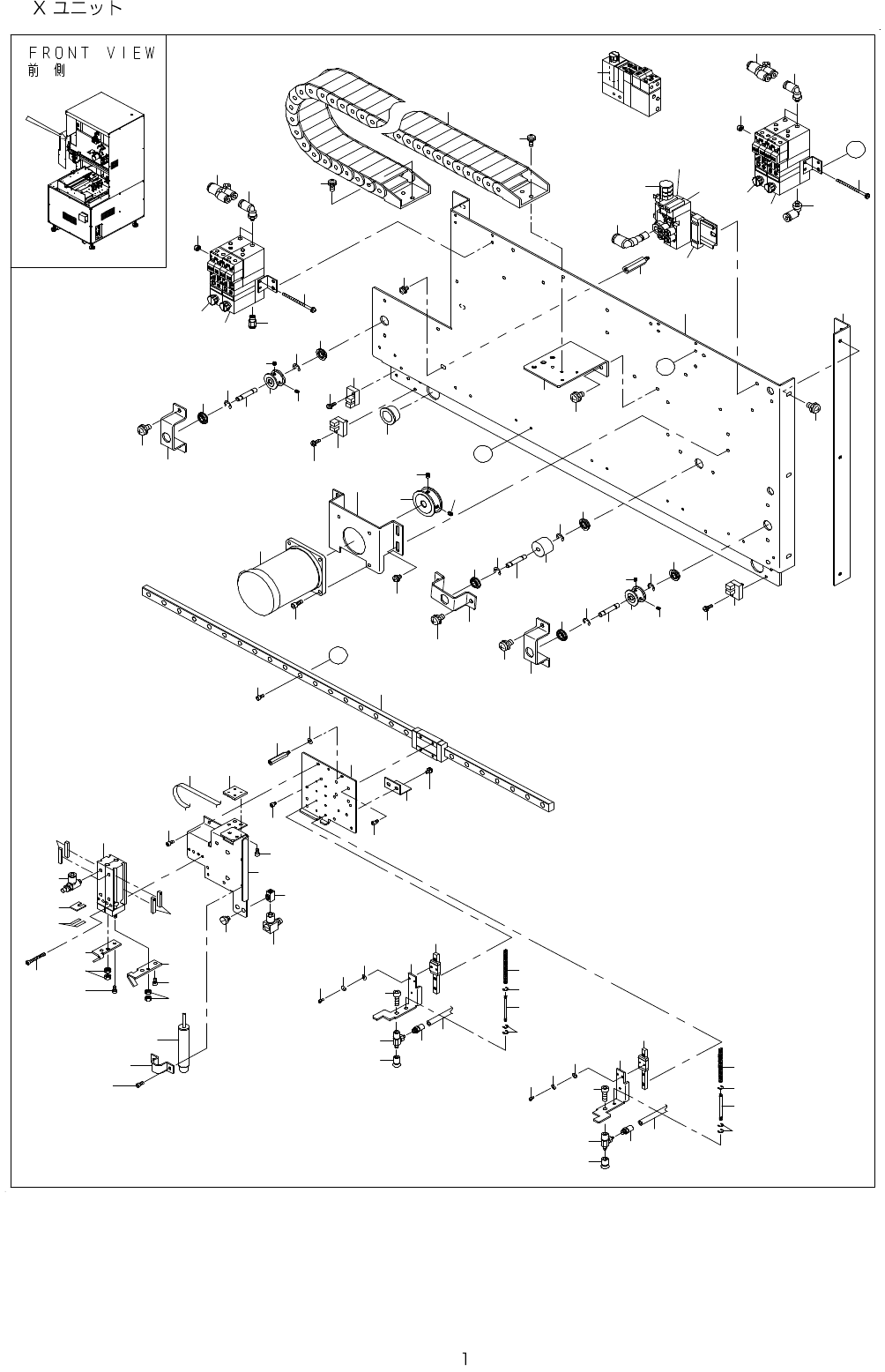
- - REF.NO NOTE PART NO D E S C R I P T I O N Qty 1 400-49187 X RAIL 6S 1 2 PV-1502093-00 5 PORT ELECTROMAGNETIC VALVE 1 3 PV-1502093-00 5 PORT ELECTROMAGNETIC VALVE 1 4 400-45713 PHOTO SENSOR 2 5 400-49189 HEAD LINEA…

- -
1. X UNIT
4
2
3
4
7
2 5
2 3
2 6
2 8
2 8
4 9
4 7
4 8
3 1
3 4
3 5
3 3
3 3
3 6
3 6
3 2
3 8
3 9
4 0
3 1
3 4
3 5
3 3
3 3
3 6
3 6
3 2
4 0
4 4
4 5
4 5
4 3
4 2
3 7
3 7
3 7
3 7
4 1
4 1
4 6
5 1
5 1
1 9
1 8
5 0
2 1
2 0
5 1
5 2
5 2
1 1
6 5
6 6
5 7
5 6
6 0
6 0
5 3
1 7
5 4
1 2
1 3
8 1
8 2
6 6
6 2
6 3
8
8 1
9
6 9
6 8
5 5
1 0
5 9
6 1
5 8
6 4
8 5
5
5
7 6
7 7
8 2
7 9
8 0
7 9
8 0
8 5
7 8
7 8
A
A
1 4
6
6
1 6
1 6
2 2
2 2
2 22 9
1
1 5
3 0
7 5
8 3
8 4
8 8
8 9
8 7
8 6
9 0
9 1
9 2
7 1
7 3
7 0
7 4
9 3
9 4
9 4
9 6
2 7
3 2
3 1
B
B
9 5
7 2
6 7
2 4

- -
REF.NO NOTE PART NO D E S C R I P T I O N Qty
1 400-49187 X RAIL 6S 1
2 PV-1502093-00 5 PORT ELECTROMAGNETIC VALVE 1
3 PV-1502093-00 5 PORT ELECTROMAGNETIC VALVE 1
4 400-45713 PHOTO SENSOR 2
5 400-49189 HEAD LINEAR WAY 2
6 SL-4035091-SC SCREW M3X0.5 L=50 4
7 HD-0005700-0A PHOTO SENSOR 1
8 PX-5000600-00 VACUUM PAD 1
9 PA-0603004-A0 FREE MOUNT CYLINDER 2
10 E2028-723-000 X BELT 6S 1
11 400-45127 HEAD R UP/DOWN SENSOR ASM. 1
12 400-45126 HEAD L UP/DOWN SENSOR ASM. 1
13 PX-5000610-00 VACUUM PAD 1
14 PV-9200010-00 FILTER ELEMENT 2
15 400-45057 X MOTOR ASM. 1
16 NM-6030001-SC NUT M3 4
17 PC-0105080-00 SPEED CONTROLLER 4
18 400-45133 HEAD R EJECTOR ASM. 1
19 400-45132 HEAD L EJECTOR ASM. 1
20 400-45159 SPAD R EJECTOR ASM. 1
21 400-45158 SPAD L EJECTOR ASM. 1
22 SL-4031091-SC SCREW M3 X 10 3
23 400-56394 SV BASE 1
24 PX-0500030-00 SILENCER 1
25 PJ-3040600-01 ELBOW 1
26 400-48813 X MOTOR BR 1
27 E1104-717-000 XY MOTOR PULLEY 1
28 E2211-524-000 SCREW 2
29 SM-6041002-TN BOLT 4
30 SL-4040891-SC SCREW M4 L=8 4
31 SL-4040891-SC SCREW M4 L=8 6
32 400-48841 XY PULLEY BR 3
33 E2250-525-000 SET SCREW 4
34 E2730-531-000 CR IDOLER PULLEY SH 2
35 E1115-717-000 XY IDLER PULLEY 2
36 RE-0400000-K0 E-RING 4 4
37 SB-1050011-00 ROLL SHAFT HOLDER 4
38 E2730-531-000 CR IDOLER PULLEY SH 1
39 E1117-717-000 IDOLER ROLLER 1
40 RE-0400000-K0 E-RING 4 2
41 SB-1050011-00 ROLL SHAFT HOLDER 2
42 SL-4040891-SC SCREW M4 L=8 2
43 400-48843 X CABLE BR 6S 1
44 E2032-723-000 X CABLEVEYOR 1
45 SL-4030891-SC SCREW M3X8 4
46 400-48765 X BASE 6S 1
47 HX-0018800-0D BUSH 1
48 400-48844 X BASE BR 6S 1
49 SL-4040891-SC SCREW M4 L=8 3
50 PJ-3010405-02 HALF UNION 4XM5 2
51 PJ-3040405-04 ELBOW UNION 6
52 PJ-3080600-05 IKEI UNION Y 2
53 E2064-723-000 CL STOPPER 2
54 E2065-723-000 CL STOPPER TAPE 4
55 E2029-723-000 CYLINDER PLATE L 1
56 E1112-717-000 X BUFFER SH 1
57 E1113-717-000 X BUFFER SPRING 1
58 NM-6030001-SC NUT M3 2
59 SM-6030602-TN HEX SCREW M3 X 6 2
60 RE-0200000-K0 E-RING 3
61 E2030-723-000 CYLINDER PLATE R 1
62 E1112-717-000 X BUFFER SH 1
63 E1113-717-000 X BUFFER SPRING 1
64 NM-6030001-SC NUT M3 2
65 SM-6030602-TN HEX SCREW M3 X 6 2
66 RE-0200000-K0 E-RING 3
67 SM-6030602-TN HEX SCREW M3 X 6 7
68 SL-4030691-SC SCREW M3X6 2
69 E1108-717-000 X SENSOR ACTUATOR 1
70 PJ-0460525-03 HOSE ELBOW 2
71 PJ-0205000-02 PLUG 2
72 400-48809 X CARRIAGE PLATE 1
73 PJ-0500505-01 BARBED FITTING JOINT 2
74 400-48812 X CYL BR 1
75 SM-6030502-TN SCREW M3 L=5 4
76 400-48810 PAD BASE L 6S 1
77 400-48811 PAD BASE R 6S 1
78 SM-6020402-TN BOLT M2 L=4 4
79 WP-0220301-SC WASHER M2 4
80 WS-0210002-KN SPRING WASHER M2 4
81 PJ-3090504-01 PAD ADAPTER 2
82 SM-6040602-TN BOLT 2
83 E1122-717-000 STUD L=26 1
84 WP-0320501-SC WASHER M3 2
85 PJ-0320525-03 HOSE NIPPLE 2
86 E1119-717-000 XYS BELT CONNECTOR 1
87 SM-6030602-TN HEX SCREW M3 X 6 4
88 SM-6030402-TN BOLT M3X4 1
89 SM-6030602-TN HEX SCREW M3 X 6 5
90 SM-6030602-TN HEX SCREW M3 X 6 2
91 400-52112 TS HOLDER 1
92 E9448-717-0A0 TSP ASM 1
93 SM-6032502-UZ BOLT M3 L=25 4
94 E3351-780-000 NYLON TUBE 2
95 HX-0033900-0B BOARD PARTS 1
96 SL-4040891-SC SCREW M4 L=8 1

- -
2. Y UNIT
7 9
6 2
3 9
7 3
3 9
1 6
4 0
1 2
6 9
7 2
6
6 8
6 6
6 7
6 5
6 6
2 0
2 8
2 9
3 0
8 4
5 4
6 9
2 1
1 7
8 1
8 2
3 1
8 0
7 1
7 0
7 1
3 8
7 6
7 5
4 7
7 7
9 7
4 6
3 5
3 6
2 7
3 6
1 4
4 8
4 5
2 6
8 3
7 0
6 8
7 2
7 4
A
A
2 5
B
B
5 6
7 8
6 1
5 2
9
5 1
5 0
6 7
1 3
1 5
3 9
4 1
4 2
4 3
4 4
1 8
1 9
4 9
4 9
1
6 3
6 4
5 7
5 8
6 0
5 9
5 7
5 8
6 5
5 1
5 3
5 3
5 5
2
3
4
5
8 5
8 6
8 7
8 8
8 8
8 9
8 9
8 8
8 9
8 8
8 9
8 7
8 6
8 5
8
9 0
9 1
9 2
9 2
9 3
9 3
3 2
9 4
9 4
9 5
9 6
9 8
9 8
9 9
1 0 0
1 0 1
3 5
2 2
3 3
3 4
3 4
2 3
1 0
1 0 2
1 0 3
1 0 3
2 4
1 0 3
2 4
1 0 3
1 0 2
1 0
7
2 3
1 1
3 7
3 7
C
C
D
D