JX-350_电路图.pdf - 第28页
-; :,5,1*',$*5$0 &219(<2502725㸪076 %$6(/55/ &1 5($'<,1 5($'<,1 %$287 %$287 ,1 %$6(/55/ &…

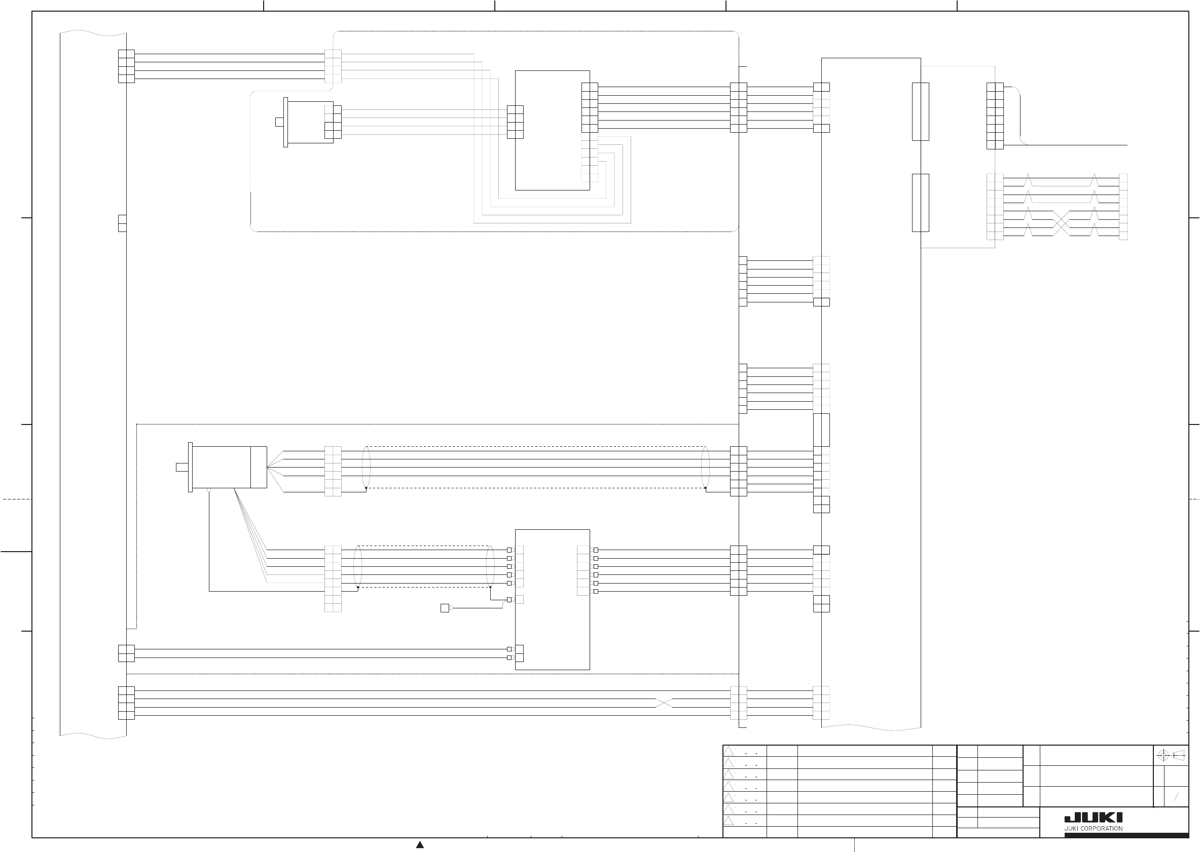
-;
:,5,1*',$*5$0
&219(<2502725
(1
&7&:
&7&:1
&7&&:
&7&&:1
%8&&:
%8&&:1
%8&:
%8&:1
%83$
%83%
9
*1'
%83=%825*
*1'
%/8(
5('
25$1*(
*5((1
%/$&.
:
:
:
:
:
)*
*5((1<(//2:
5
)
+2
+2
6+,(/'
5('
%52:1
<(//2:
%/$&.
*1'
$:&3$
$:&3%
9
*1'
*1'
&1
$:&(
$:&0
$872:,'7+
$'-8670(1702725
($
5
)
$
&7+2
&7+21
&1
&1 &1
%8+2
%8+21
&1 &1
$
%
$
%
$
%
$
%
$:&&:
$:&&:1
$:&+2
$:&+21
&1 &1
$:&&&:
$:&&&:1
3
3
-
- (1
&1
&1
(7+(5
6/$9(3&%
9
9
9571
9571
&1
'
3:5
$
(1
$
0$&$''
*1'
*1'
&1
%$6( &1
%$6( &1
&1
%$6( &1
&
%
$&9
$&9
&1
/
1
(1
$&9
$&9
&1 3:5
(1
)*7$3
$
%
$
%
$
%
$
%
%6(6(1
$
%
$
%
$
%
$
%
;<5(/$<
&
$
%
$
%
$
%
$
%
WR)(('(5
%
%6(6 )'(6
$
%
$
%
$
%
$
%
3+$6('5,9(5
+;
+;(1
9
9
9571
9571
&1 3:5
&1 &1
%&3:5 &1
32:(581,7
(1
%$6(,23&%
$
$:&237,21
%$6(,23&%3$1(/
3+$6(&'5,9(5
9
38/6(>1@
9
',5>1@
9
)5((>1@
&1
%
%
$
$
&0
&075
&0
&02725
&1
9
9
9571
9571
9
$/$50>1@
&0
3&03
127
ᑻ
ᗘ
࣌
勖
ࢪ
ᆺᘧ
ရ␒
ရྡ
ᢎㄆ
᳨ᅗ
タィ
〇ᅗ
సᡂ
ಖ⟶
㢮ఝ
ᢸᙜグྕ ᪥ ኚ᭦␒ྕ ኚ᭦グ
㹂
㹁
㹀
㸿
㸳㸲㸱㸰㸯
㹁
㹀
㸿
㹂
76.$9
('$

-;
:,5,1*',$*5$0
&219(<2502725㸪076
%$6(/55/
&1
5($'<,1
5($'<,1
%$287
%$287
,1
%$6(/55/
&1
5($'<287
5($'<287
%$,1
%$,1
287
,)3$1(/5
60(0$
'2:1/,1(0$&+,1(
60(0$
83/,1(0$&+,1(
&1 &1
,)3$1(//
,1B&:
,1B&:Q
,1B&&:
,1B&&:Q
,1B+2
,1B+2Q
287B&:
287B&:Q
287B&&:
287B&&:Q
287B+2
287B+2Q
'
$
9
9
9
9
6723&1 &1
6+$3(;>1@
6+$3(<>1@
%8B//2&.>1@
9
9
9
9
)/8;69%>1@
5(6(59(>1@
5(6(59(>1@
(9
67233(5
67233(5>1@
)/8;69>1@
'
$
(9
&13:5
32:(5
81,7
(1
9
9
9571
9571
'
&13:5
9
9
9571
9571
$
$
&1 %$6(
&1
%$6(
)/
8;69
%$6(&1
076,)
,)/
,6/
7['
7['
1&
5['
5['
1&
9
07&B321>1@
*1'
*1'
&1
7['
7['
1&
5[
'
5['
1&
9
07&B321>1@
*1'
*1'
;<
WR;<5(/$<3&%
$
;<
%$6(,23&%
%$6(,23&%
07
&B(0*
07&B&2
076B(0*
076B&2
9
9
*;B&9B23>1@
*;B(0*>1@
1&
1&
127(&$%/(&211(&7,2132,17
&219(<25',5(&7,21/Ѝ5
&1
&1
&219(<25',5(&7,215Ѝ/
&1
&1
1RWH
1RWH
076237,21
$
%
$
1&
%$6(,23&%3$1(/
3+$6(/'5,9(5
9
38/6(>1@
9
',5>1@
9
)5((>1@
&1
%
%
$
$
/0
/075
/0
/02725
&1
9
9
9571
9571
9
$/$50>1@
/03
3+$6(
5'5,9(5
9
38/6(>1@
9
',5>1@
9
)5((>1@
&1
%
%
$
$
50
5075
50
502725
&1
9
9
9571
9571
9
$/$50>1@
503
127
ᑻ
ᗘ
࣌
勖
ࢪ
ᆺᘧ
ရ␒
ရྡ
ᢎㄆ
᳨ᅗ
タィ
〇ᅗ
సᡂ
ಖ⟶
㢮ఝ
ᢸᙜグྕ ᪥ ኚ᭦␒ྕ ኚ᭦グ
㹂
㹁
㹀
㸿
㸳㸲㸱㸰㸯
㹁
㹀
㸿
㹂
76.$9
('$

-;