EJM8ACRM1.pdf - 第21页

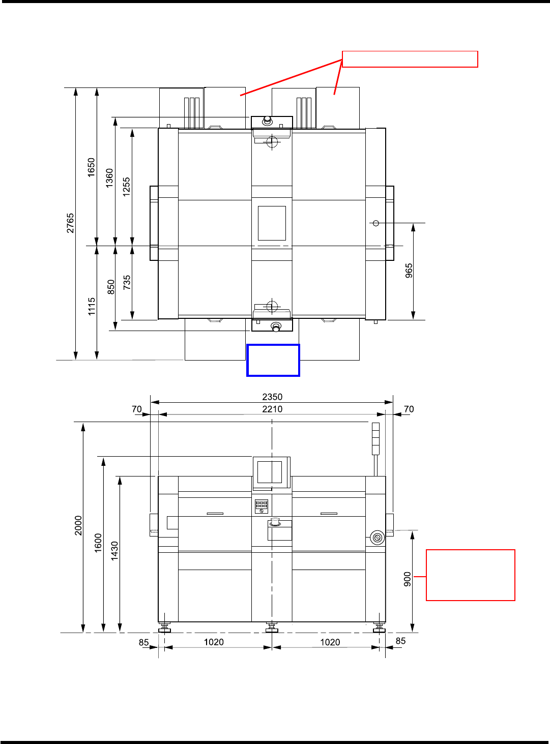
CM602-L 参考手册 1.3 装置的规格 Pa ge 1- 21 EJM4A -134E 1.3.4 外形尺寸  带有整体交换台 车时 ( 单位 : mm) 基板搬送高度 900 ( 选购件 : 950) 整体交换台车 基准 前面 EJM8A- C-RMC01-A0 1-00

100%1 / 40
CM602-L
参考手册
1.3
装置的规格
Page 1-20
1.3.3
基板流动方向
基板流动方向以及基板定位基准的变更,作为可选项来处置。
贴装数据的基准,使用
PT
可以任意设定。
标准
:
自左至右·以前侧为基准
选购件
:
自左至右·以后侧为基准
选购件
:
自右至左·以前侧为基准
选购件
:
自右至左·以后侧为基准
EJM8A-C-RMC01-A01-00
基板流动方向
止动器
宽度调整传送带
基准传送带
前面侧
基板流动方向
止动器
宽度调整传送带
基准传送带
前面侧
基板流动方向
止动器
宽度调整传送带
基准传送带
前面侧
基板流动方向
止动器
宽度调整传送带
基准传送带
前面侧
CM602-L
参考手册
1.3
装置的规格
Page 1-21
EJM4A-134E
1.3.4
外形尺寸
带有整体交换台车时
(
单位
: mm)
基板搬送高度
900
(
选购件
: 950)
整体交换台车
基准
前面
EJM8A-C-RMC01-A01-00
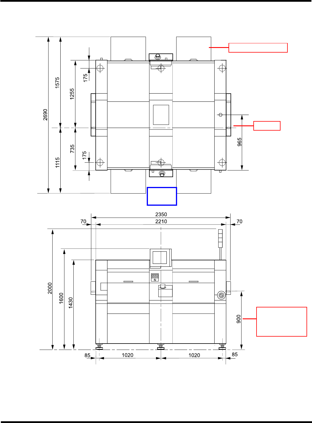
CM602-L
参考手册
1.3
装置的规格
Page 1-22
带有直接托盘供料器时
(
单位
: mm)
EJM8A-C-RMC01-A01-00
EJM8A-100E
基板高度
900
(
选购件
: 950)
前面
直接托盘供料器