P-0321-001.pdf - 第26页
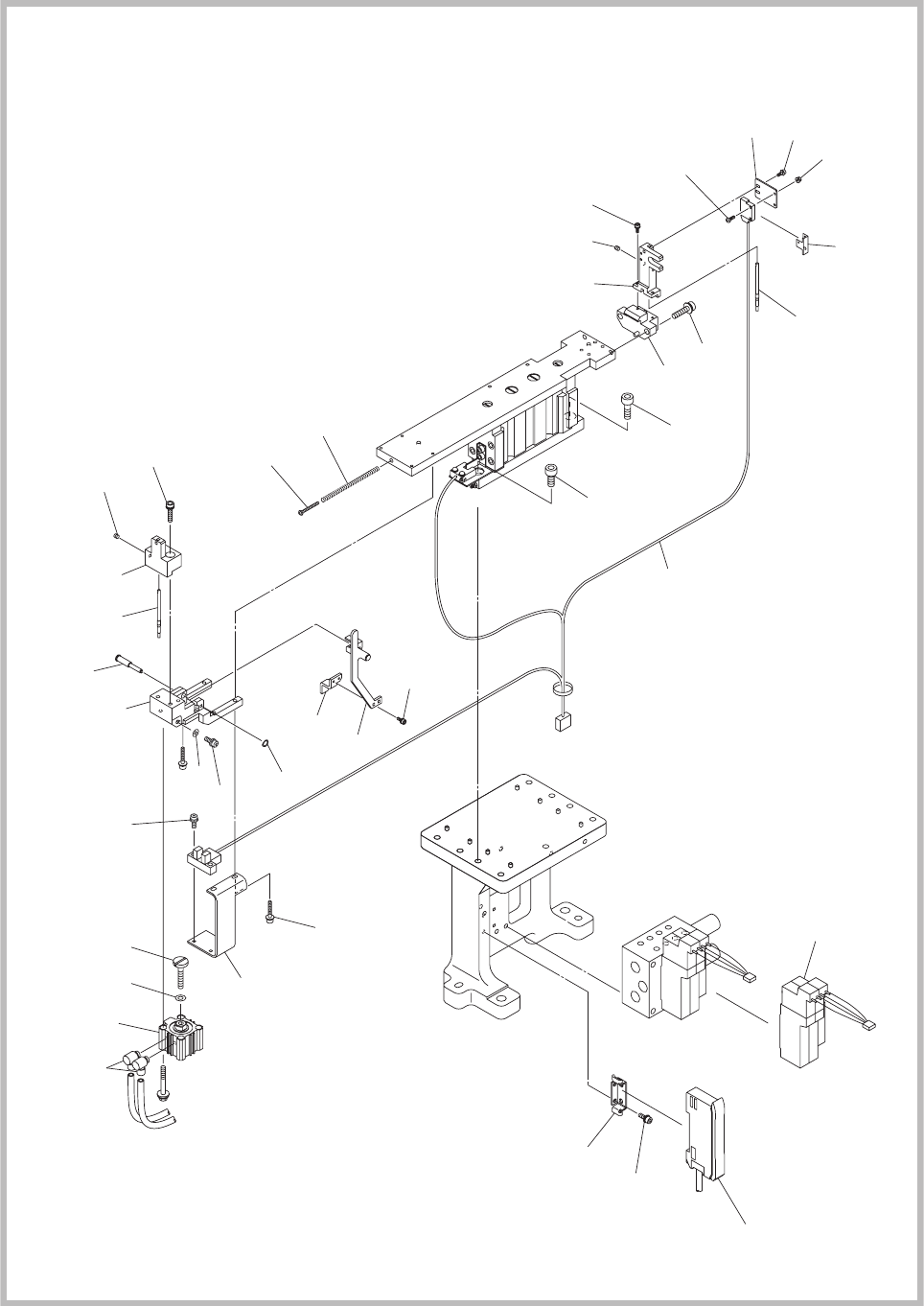
Fig. A2-2 ノズルストッカ駆動部 Nozzle Stocker Driving Section 1010-001 121 148 123 101 103 109 1 12 108 104 106 102 1 10 105 1 1 1 107 133 130 131 129 130 131 132 133 130 131 127 147 125 126 134 134 133 130 131 128 146 149 145 135…

Key No. PART No. PART NAME Q’ty
REMARKS
NOTE
1 0919I3AF BLOCK_L2 1 10919083AC-001
2 211A9884 COVER 1 10919083AC-002
3 211A9885 COVER 1 10919083AC-003
4 216S2747 LEVER 1 10919083AC-004
5 216S2748 LEVER 1 10919083AC-005
6 216S2749 LEVER 1 10919083AC-006
7 216S2750 LEVER 1 10919083AC-007
8 216D0479 PIN_HINGE 2 10919083AC-008
9 216D0481 PIN_HINGE 2 10919083AC-009
10 222N1362 SPRING_TENSION 2 10919083AC-010
11 0919I3A3 BLOCK 4 10919083AC-011
12 211G4129 BLOCK 1 10919083AC-012
13 222D0259 BEARING_RADIAL 2 10919083AC-013
14 215B0117 BUSH_LINEAR 4 10919083AC-014
15 221KA002 ROHS_RING 2 10919083AC-015
16 6P460154 NAME_PLATE 1 10919083AC-016
17 216D0528 PIN_HINGE 2 10919083AC-017
18 221FA006 NUT_HEX 2 10919083AC-018
19 221AA006 ROHS_HEX-SCT 6 10919083AC-019
20 221HA003 WASHER 8 10919083AC-020
21 221HA103 WASHER 8 10919083AC-021
22 221AA005 ROHS_HEX-SCT 4 10919083AC-022
23 221DB026 MACHINE_SCREW 4 10919083AC-023
26 221CA001 SET_SCREW 4 10919083AC-026
30 221AA332 ROHS_HEX-SCT 8 10919083AC-030
31 0919I3AH COLLAR 8 10919083AC-031
Fig. A2
1010-001
Fig. A2-1
GS-NM102

Fig. A2-2
ノズルストッカ駆動部
Nozzle Stocker Driving Section
1010-001
121
148
123
101
103
109
1
12
108
104
106
102
1
10
105
1
11
107
133
130
131
129
130
131
132
133
130
131
127
147
125
126
134
134
133
130
131
128
146
149
145
135
136
137
138
139
150
124
141
139
140
127
1
14
1
14
1
19
120
1
13
140
139
151
Fig. A2
多機能ノズルストッカ
(GS-NM102)
MUL
TI-FUNCTIONAL NOZZLE STOCKER(GS-NM102)

Key No. PART No. PART NAME Q’ty
REMARKS
NOTE
101 211G4118 BLOCK 1 109190830S-001
102 211G3955 BLOCK 1 109190830S-002
103 211G4119 BLOCK 1 109190830S-003
104 211G4120 BLOCK 1 109190830S-004
105 216S2865 LEVER 1 109190830S-005
106 216D0480 PIN_HINGE 1 109190830S-006
107 221E0321 BOLT 1 109190830S-007
108 222M1350 SPRING_COMP 1 109190830S-008
109 211DA182 PLATE 1 109190830S-009
110 211FC825 BRACKET 1 109190830S-010
111 211DA187 PLATE 1 109190830S-011
112 211FB357 BRACKET 1 109190830S-012
113 09198307 ASSY_SENSOR 1 109190830S-013
114 23G00257 SENSOR_PELEC 1 109190830S-014
119 224C0556 CYLINDER 1 109190830S-019
120 225F0371 PIPE_FITTINGS 2 109190830S-020
121 23G00207 SENSOR_PELEC 1 109190830S-021
123 09198209 ASSY_VALVE 2 109190830S-023
124 221DB005 MACHINE_SCREW 1 109190830S-024
125 221HA004 WASHER 2 109190830S-025
126 221HA104 WASHER 2 109190830S-026
127 221CA046 ROHS_SET_SCREW 2 109190830S-027
128 221KA001 ROHS_RING 1 109190830S-028
129 221FA001 NUT_HEX 2 109190830S-029
130 221HA001 WASHER 10 109190830S-030
131 221HA101 WASHER 10 109190830S-031
132 221DA002 MACHINE_SCREW 2 109190830S-032
133 221AA001 ROHS_HEX-SCT 6 109190830S-033
134 221AA031 ROHS_HEX-SCT 2 109190830S-034
135 221AA032 ROHS_HEX-SCT 4 109190830S-035
136 221HA002 WASHER 2 109190830S-036
137 221HA102 WASHER 2 109190830S-037
138 221DA013 MACHINE_SCREW 2 109190830S-038
139 221HA003 WASHER 4 109190830S-039
139 221HA003 WASHER 2 109190830S-039
140 221HA103 WASHER 2 109190830S-040
140 221HA103 WASHER 2 109190830S-040
141 221AA009 ROHS_HEX-SCT 2 109190830S-041
145 221AA010 ROHS_HEX-SCT 1 109190830S-045
146 221FA005 NUT_HEX 1 109190830S-046
147 221AA020 ROHS_HEX-SCT 2 109190830S-047
148 0919820G ASSY_FIBER SEN 1 109190830S-048
149 221FA007 NUT_HEX 1 109190830S-049
150 221HA203 WASHER 2 109190830S-050
151 221AA005 ROHS_HEX-SCT 2 109190830S-051
Fig. A2
1010-001
Fig. A2-2
GS-NM102