CM602-L EJM8A.pdf - 第34页
1-I 本体部 Mai n B od y パーツレイアウト Kit No. キット品 番 Kit N am e キット名称 N610040204AA セクションN o. PARTS LAYOUT Section No. - - M17 ( KN610040204AA-37-9 )

Ref
No.
Remarks
R
1
Q'ty
1-H
本体部
Main Body
イラスト
No.
Part No.
品 名品番 数量
R
2
パーツリスト
Kit N
o
.
キット品
番
Kit Name
キット名称
N610040204AA
Part Name
備 考
セクションNo.
PARTS LIST
Section No.
R
3
BRACKET
1
1 N210028681AA
BOTTLE
1
2 KXF07M8AA00 5-010-03
JOINT
1
3 KXF07G7AA00 No.392 LC-3/8
NIPPLE
2
4 KXF0568AA00 Nipple 3/8
VALVE
1
5 N510036414AA 600RP-LL 3/8
HOSE
1
6 N510002541AA OUA8X12-5M-03B
PRESSURE-SW
1
7 KXFX03EHA00 ISE30-01-25-M-X114
REGULATOR
1
8 N510010273AA AWM40-03BD-R-X2108
VALVE
1
9 N510057523AA
S
VP544-1D1-03A-X501
JOINT
1
10 N510066688AA KQ2L10-99A
SWITCH
1
11 N510061576AA ISE30A-01-N-M-X533
M16
--
( KN610040204AA-37-8 )

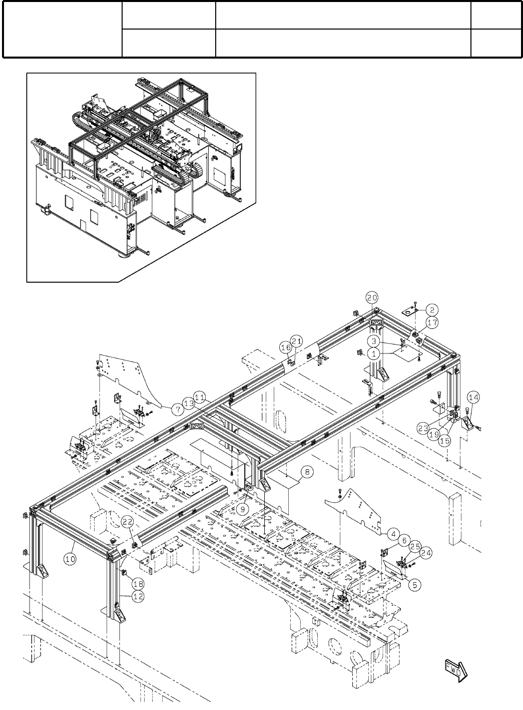
1-I
本体部
Main Body
パーツレイアウト
Kit No.
キット品
番
Kit Name
キット名称
N610040204AA
セクションNo.
PARTS LAYOUT
Section No.
--
M17
( KN610040204AA-37-9 )

Ref
No.
Remarks
R
1
Q'ty
1-I
本体部
Main Body
イラスト
No.
Part No.
品 名品番 数量
R
2
パーツリスト
Kit N
o
.
キット品
番
Kit Name
キット名称
N610040204AA
Part Name
備 考
セクションNo.
PARTS LIST
Section No.
R
3
PLATE
1
1 KXFB04HUA02
PLATE
1
2 KXFB09XZA00
BRACKET
1
3 KXFB0AQFA00
COVER
1
4 N210044090AA
BRACKET
4
5 N210043945AC
BRACKET
4
6 N210004500AA
COVER
1
7 N210058278AA
COVER
2
8 N210027300AB
PW004A0
1
9 KXFB01CCA00
FRAME
4
10 N510011691AA SFF-404 L=444
FRAME
2
11 N510008936AA SFF-404 L=2176
FRAME
4
12 N510008937AA SFF-404 L=308
FRAME
2
13 N510008938AA SFF-404 L=150
BRACKET
12
14 KXF0E10SA00 HBLFSNK8
NUT
42
15 KXF0CVYAA00 SFB-004
WASHER
4
16 KXF0E2KYA00 HDW8
NUT
18
17 KXF0E01HA00 SFB-008
CLAMP
13
18 N510005499AA CIP-002C
CAP
102
19 KXF0E01GA00 SFA-907
BRACKET
20
20 KXF0CVZAA00 SFJ-013
NUT
4
21 KXF0E10TA00 SFB-007
NUT
32
22 KXF0CW2AA00 SFB-003
NUT
10
23 N510008940AA HTDSN8-8
SENSOR(170mm)
4
24 MTKC003237AA
SENSOR(160mm)
4
25 MTKC003807AA
M18
--
( KN610040204AA-37-9 )