CP45NEO_Technical Reference-3rd.pdf - 第93页
P a r t L i s t Z 1 / Z 2 M o to r I n te r f a c e 9 1 Page S A M S U N G T E C H W I N NO. PARTNO. PARTNAME Q'TY TYPE REMARK 1 J9080080B Z1/2DRVCOMMANDCABLEASS'Y VM08 2 J9080108A Z123MOTORPWR�…

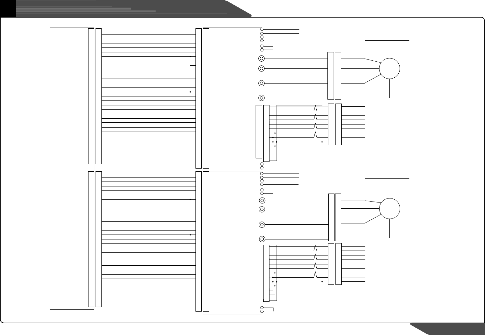
Z
1/Z2 Motor Interfac e
90 Page
S A MS UNG T E CHWIN
3030
29
28
2727
28
29
23
24
16 16
18
17
18
17
25
24
23
22
2121
22
25
20
19
20
19
2626
3030
29
28
2727
28
29
1010
9 9
15
11
12
13
14
15
11
12
13
14
8
7
6
5
4
3
2
1
8
7
6
5
4
3
1
2
CN1P_B
60P(30P)
CN1S_B
24
39
25
43
30
49
34
37
23
50
27
26
29
28
X
T
R
t
r
CLR
/SIGN
SIGN
/PULSE
PULSE
50
27
26
29
28
20
19
SG
INP
SG
ALM(ALM1)
/ALM_RST
+24V
24
39
25
43
30
49
+24V
/SV_ON
/CLR
34
37
23
W
V
U
COM
6
7
8
12
3
4
5
3
4
5
A
/A
B
6
7
8
12
/B
C
/C
SG
CN2
+PA
-PA
+PB
-PB
+PC
-PC
3
4
5
6
7
8
11
12
PG0V
PG5V
E
17
19
20
18
26 26
19
20
19
20
25
22
21 21
22
23
24
25
17
18
17
18
14
13
12
11
15
16
14
13
12
11
15
16
24
23
99
10 10
AXISH1/2
2
1
3
4
5
6
7
8
1
2
3
4
5
6
7
8
CN1S_A
CN1P_A
60P(30P)
23
37
28
29
26
27
50
34
23
37
28
29
26
27
50
34
PULSE
/PULSE
SIGN
/SIGN
CLR
/CLR
/SV_ON
+24V
r
t
U
COM
X
R
T
MSDC5A5A3A06
6
7
8
12
49
30
43
25
39
24
3
4
5
CN2
49
30
43
25
39
24
3
4
5
+24V
/ALM_RST
ALM(ALM1)
SG
INP
SG
A
/A
B
V
W
E
+PA
-PA
+PB
-PB
+PC
-PC
6
7
8
12
/B
C
/C
SG
3
4
5
6
7
8
11
12
17
18
PG0V
PG5V
3
4
5
6
7
8
11
12
17
18
2
WHITE
2
BLUE
3
4
BLACK
GREEN
3
4
3
4
9
5
6
2
11
2
3
4
5
6
9
BROWN
GREEN
PURPLE
WHITE
YELLOW
8
7 7
8
BLACK
RED
SHIELD
MSMA5AZA4A
TB1-10
TB1-15
1 1
RED
TB1-25
TB1-20
Z1AXIS
Z1MOTOR
YELLOW
3
4
5
1
2
6
BLUE
BROWN
GREEN
PURPLE
WHITE
7
8
BLACK
RED
GREEN
4
MSMA5AZA4A
SHIELD
9
19
20
FG
BLACK
WHITE
3
2
RED
1
Z2AXIS
Z2MOTOR
PW27
VM08
MD08
Z1_E
Z1_W
Z1_V
Z1_U
MD36
44
45
46
44
45
46
ALM8
ALM4
ALM2
CN1
Z1DRV
44
45
46 46
44
45
ALM2
ALM4
ALM8
MD10-1
H2
H1
TB1-20
TB1-25
TB1-15
TB1-10
PW27
H2
H1
CN1
MD10-2P
MD09
Z2DRV
MD08
Z2_E
Z2_W
4
3
Z2_V
Z2_U
2
1
MSDC5A5A3A06
MD09
18
FG
20
19
17
12
8
11
7
4
5
6
3
7
8
9
6
5
4
3
2
1

P art L is t
Z
1/Z2 Motor Interfac e
91 Page
S A MS UNG T E CHWIN
NO. PARTNO. PARTNAME Q'TY TYPE REMARK
1
J9080080B Z1/2DRVCOMMANDCABLEASS'Y VM08
2 J9080108A
Z123MOTORPWRCABLEASS'Y MD08
3
J9080109A Z123MOTORENCCABLEASS'Y MD09
4 J9080110B
Z1MOTORCABLEASS'Y MD10-1
5
J9080111D Z2MOTORCABLEASS'Y MD10-2P
6
J9080126C Z123DRIVEPWRCABLEASS'Y PW27
7
8
9
10
11
12
13
14
15
16
17
18
19
20
21
22
23
24
25
26
27

Z
3/Z4 Motor Interfac e
92 Page
S A MS UNG T E CHWIN
3030
29
28
2727
28
29
23
24
16 16
18
17
18
17
25
24
23
22
2121
22
25
20
19
20
19
2626
3030
29
28
2727
28
29
1010
9 9
15
11
12
13
14
15
11
12
13
14
8
7
6
5
4
3
2
1
8
7
6
5
4
3
1
2
CN1P_B
60P(30P)
CN1S_B
24
39
25
43
30
49
34
37
23
50
27
26
29
28
X
T
R
t
r
CLR
/SIGN
SIGN
/PULSE
PULSE
50
27
26
29
28
20
19
SG
INP
SG
ALM(ALM1)
/ALM_RST
+24V
24
39
25
43
30
49
+24V
/SV_ON
/CLR
34
37
23
W
V
U
COM
6
7
8
12
3
4
5
3
4
5
A
/A
B
6
7
8
12
/B
C
/C
SG
CN2
+PA
-PA
+PB
-PB
+PC
-PC
3
4
5
6
7
8
11
12
PG0V
PG5V
E
17
19
20
18
26 26
19
20
19
20
25
22
21 21
22
23
24
25
17
18
17
18
14
13
12
11
15
16
14
13
12
11
15
16
24
23
99
10 10
AXISH3/4
2
1
3
4
5
6
7
8
1
2
3
4
5
6
7
8
CN1S_A
CN1P_A
60P(30P)
23
37
28
29
26
27
50
34
23
37
28
29
26
27
50
34
PULSE
/PULSE
SIGN
/SIGN
CLR
/CLR
/SV_ON
+24V
r
t
U
COM
X
R
T
MSDC5A5A3A06
6
7
8
12
49
30
43
25
39
24
3
4
5
CN2
49
30
43
25
39
24
3
4
5
+24V
/ALM_RST
ALM(ALM1)
SG
INP
SG
A
/A
B
V
W
E
+PA
-PA
+PB
-PB
+PC
-PC
6
7
8
12
/B
C
/C
SG
3
4
5
6
7
8
11
12
17
18
PG0V
PG5V
3
4
5
6
7
8
11
12
17
18
2
WHITE
2
BLUE
3
4
BLACK
GREEN
3
4
3
4
9
5
6
2
11
2
3
4
5
6
9
BROWN
GREEN
PURPLE
WHITE
YELLOW
8
7 7
8
BLACK
RED
SHIELD
MSMA5AZA4A
TB1-11
TB1-16
1 1
RED
TB1-26
TB1-21
Z3AXIS
Z3MOTOR
YELLOW
3
4
5
1
2
6
BLUE
BROWN
GREEN
PURPLE
WHITE
7
8
BLACK
RED
GREEN
4
MSMA5AZA4A
SHIELD
9
19
20
FG
BLACK
WHITE
3
2
RED
1
Z4AXIS
Z4MOTOR
PW27
VM10
MD08
Z3_E
Z3_W
Z3_V
Z3_U
44
45
46
44
45
46
ALM8
ALM4
ALM2
CN1
Z3DRV
44
45
46 46
44
45
ALM2
ALM4
ALM8
MD10-3
H2
H1
TB1-21
TB1-26
TB1-16
TB1-11
PW28
H2
H1
CN1
MD13-1
MD09
Z4DRV
MD11
Z4_E
Z4_W
4
3
Z4_V
Z4_U
2
1
MSDC5A5A3A06
MD12
18
FG
20
19
17
12
8
11
7
4
5
6
3
7
8
9
6
5
4
3
2
1