CM212-M.pdf - 第51页
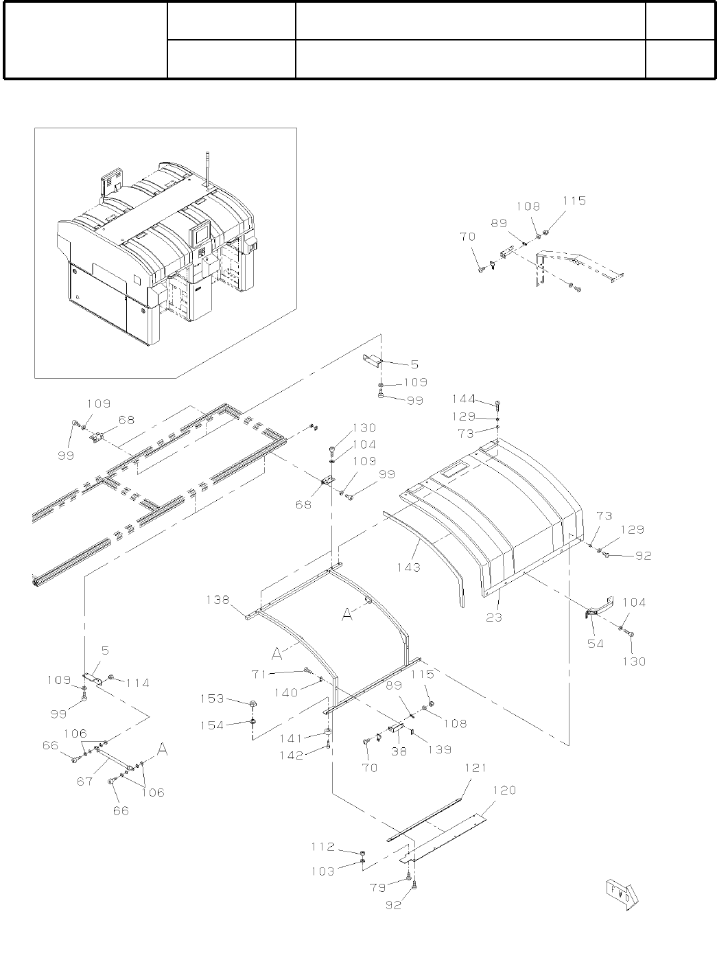
Ref No. Remark s R 1 Q'ty 4-E 全 体 カバー W hole Cover イラスト No. Part No. 品 名 品番 数量 R 2 パーツリスト Kit N o . キット品 番 Kit Name キット名称 N610023571AB Part Name 備 考 セクションNo. PARTS LIST Section No. R 3 BRACKET 4 5 N210027705AA COVER…

4-E
全
体
カバー
Whole Cover
パーツレイアウト
Ki
t
N
o
.
キット
品番
Kit Name
キット名称
N610023571AB
セクションNo.
PARTS LAYOUT
Section No.
--
M37
( KN610023571AB-16-5 )

Ref
No.
Remarks
R
1
Q'ty
4-E
全
体
カバー
Whole Cover
イラスト
No.
Part No.
品 名品番 数量
R
2
パーツリスト
Kit N
o
.
キット品
番
Kit Name
キット名称
N610023571AB
Part Name
備 考
セクションNo.
PARTS LIST
Section No.
R
3
BRACKET
4
5 N210027705AA
COVER
1
23 N210027728AG
S
BRACKET
1
38 N210063799AA
PULL
1
54 KXF0DX62A00 AP-829-2
BOLT
4
66 KXF09KJAA00 MSB10-10
GAS-SPRING
2
67 N510013496AA
S
KSF90-15M
HINGE
4
68 N510011843AA B-2-B-11
BOLT
2
70 N510001803AA SRBS-M4X12
BOLT
2
71 N510001804AA SRBS-M4X25
SPACER
8
73 N510019916AA CB-503E
SCREW
2
79 N510018258AA
Cross recessed Truss head machine screw M4X10-4.8 A2S (Trivalent)
NUT
2
89 KXF0DX63A00 SQN4-28-16
SCREW
12
92 N510018303AA
Cross recessed Truss head machine screw M5X8-4.8 A2S (Trivalent)
BOLT
22
99 N510017390AA
Hexagon socket head cap screw M5X12-10.9 A2J (Trivalent)
WASHER
2
103 N510018497AA
Round finish plain washer 4 10H A2J (Trivalent)
WASHER
6
104 N510018499AA
Round finish plain washer 5 10H A2J (Trivalent)
WASHER
8
106 N510018506AA
Round finish plain washer (JIS B 1256:1978) 10 10H A2J (Trivalent)
WASHER
4
108 N510020099AA Thick washer for M4
WASHER
26
109 N510020100AA Thick washer for M5
NUT
2
112 N510017855AA
Hexagon nut Type-1 Best class M4-6H-4T A2J (Trivalent)
NUT
2
114 N510017877AA
Hexagon nut Type-1 Best class M8-6H-4T A2J (Trivalent)
NUT
4
115 N510022614AA Domed cap nut Type-3 M4-4T A2J (Trivalent)
COVER
1
120 N210064063AA
COVER
1
121 N210043289AA
WASHER
8
129 N510011899AA NN-0816-10
BOLT
6
130 N510017395AA
Hexagon socket head cap screw M5X16-10.9 A2J (Trivalent)
FRAME
2
138 N610049031AF
S
NUT-PLATE
1
139 N210066061AA
PLATE
1
140 N210066062AA
GROMMET
2
141 N510055131AA C-30-RK-10-EP-UL-Black
BOLT
2
142 N510017247AA
Hexagon socket head cap screw M2.5X8-10.9 A2J (Trivalent)
TRIM
4
143 N9866224-B98 62-24-B-5-Aluminium
SCREW
4
144 N510018291AA
Cross recessed Truss head machine screw M5X16-4.8 A2S (Trivalent)
NUT
2
153 N510017840AA
Hexagon nut Type-1 Best class M2.5-6H-4T A2J (Trivalent)
WASHER
2
154 N510018490AA
Round finish plain washer (JIS B 1256:1978) 2.5 10H A2J (Trivalent)
M38
--
( KN610023571AB-16-5 )

4-F
全
体
カバー
Whole Cover
パーツレイアウト
Ki
t
N
o
.
キット
品番
Kit Name
キット名称
N610023571AB
セクションNo.
PARTS LAYOUT
Section No.
--
M39
( KN610023571AB-16-6 )