NPM_D3Wiring Diagram.pdf - 第309页
Note : White indicates the switch is convex (注) SWは白色が凸部を示す。 DSW2 1 2 OFF 3 4 OFF OFF OFF DSW5 1 2 OFF 3 4 ON OFF OFF DSW4 1 2 OFF OFF Panasonic Factory Solutions Co.,Ltd. パナソニック ファクトリーソリューションズ株式会社 Name Drawing No. Loc. …

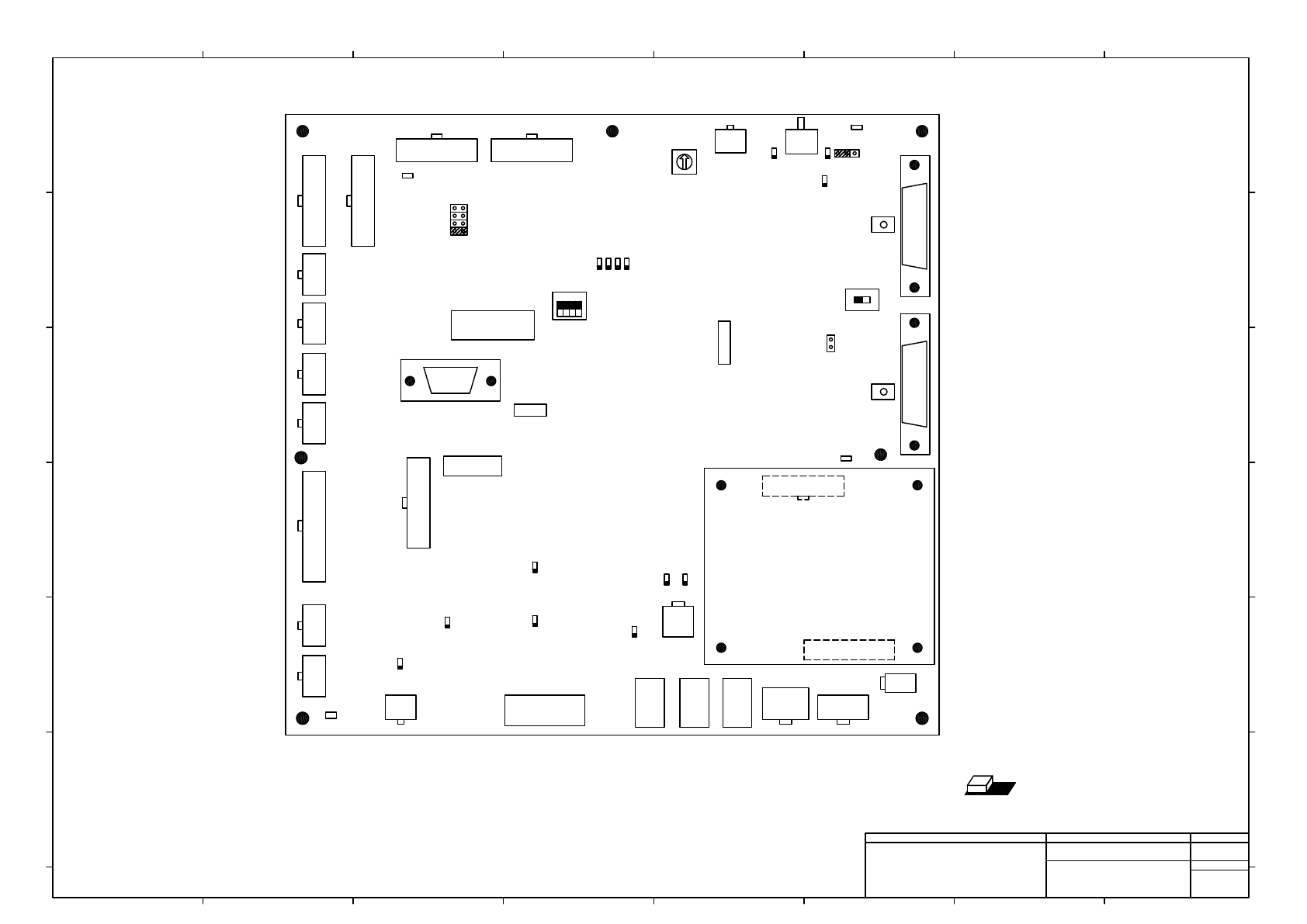
IN0
IN1
IN2
IN3
EXIN
IN4
IN5
COM-UP COM-LOW
P-MON IO-MON
IN611
LED1
IN610
LED2
JP1
GND
EMGHST
LED3
SW4
SW5
SW2
GND
SFRLY-CN1
SFRLY-CN2
SSTOP
ISP
OUT22 LED4
OUT21
LED5
OUT20
LED6
OUT23 LED7
SW3
CN_E10A
1
3
JP2
5 4
8
1
EXOUT2
DBG
232CLF
RFID
FAN-ALM
TP5
24G
BTL
MDRSW TRYSON TRYEMG
RBKSW
P-IN
CN24V_LV
MC
24V
LED10
LED9
CPURDY
LED13
ILKOUT
LED8
RSTDL
LED12
LED14
MBRO
LED11
PONC
2
1
TP1
TP4
TRAY0
TRAY1
OUT1
SW1
EXOUT1
24G
TP2
0
ON
JP3
Note : White part means a convex part of Dip switch.
1
Panasonic Factory Solutions Co.,Ltd. パナソニック ファクトリーソリューションズ株式会社
Name
Drawing No.
Loc. No.
F4K1020-05A
1
2 3 4 5 6 7 8
A
B
C
D
E
F
1 2 3 4 5 6 7 8
A
B
C
D
E
F
Page. No.
PNF0AT
SET UP DIAGRAM
PNF0AT+001AB

Note : White indicates the switch is convex
(注) SWは白色が凸部を示す。
DSW2
1
2
OFF
3 4
OFF OFF OFF
DSW5
1
2
OFF
3 4
ON OFF OFF
DSW4
1
2
OFF
OFF
Panasonic Factory Solutions Co.,Ltd. パナソニック ファクトリーソリューションズ株式会社
Name
Drawing No.
Loc. No.
F4K1020-05A
1
2 3 4 5 6 7 8
A
B
C
D
E
F
1 2 3 4 5 6 7 8
A
B
C
D
E
F
Page. No.
PNFCAC-CA Board
SET UP DIAGRAM
PNFCAC-CA +001AA

CN10
CN2 CN3 CN4
CN9
PPE0AA-AA
SW3
1 4
ON
SW2
1 8
ON
CN7 CN6
CN8
JP
SW1
1 2
ON
CN5
CN1
Note : White part means a convex part of Dip switch.
1
Panasonic Factory Solutions Co.,Ltd. パナソニック ファクトリーソリューションズ株式会社
Name
Drawing No.
Loc. No.
F4K1020-05A
1
2 3 4 5 6 7 8
A
B
C
D
E
F
1 2 3 4 5 6 7 8
A
B
C
D
E
F
Page. No.
PPE0AA-AA
SET UP DIAGRAM
PPE0AA-AA+001AB