N7201A552C.pdf - 第227页
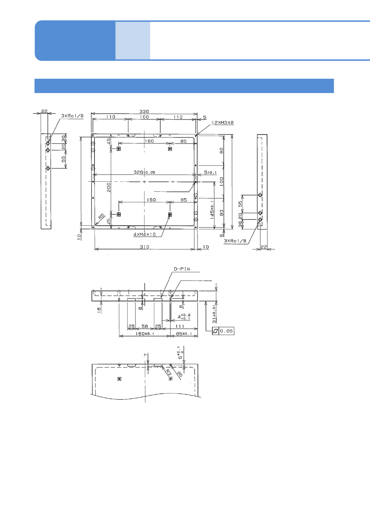
SPG EJP6AJ -MB-06OM- 02 可动侧基板夹扣 固定侧基板夹扣 吸着配管连接部 吸着箱安装尺寸 6-1-4 -6 ( 单位: mm) 支撑单元 固定侧基板夹扣 可动侧基板夹扣 可动侧基板夹扣 固定侧基板夹扣 支撑单元 支撑单元安装面 支撑单元安装面 选 购 件 支撑板 支撑板 支撑板 支撑板 (选购件)

SPG EJP6AJ-MB-06OM-02
选购件
基板吸着箱 3
吸着箱设计例子(相同方向时)
■设计条件
基板尺寸
(L) 350 ×(W)300 mm
6-1-4-5
操作篇
6-1-4
避开用
270(基板宽度-30)
(Ф3.3通孔)
材料: 铝合金托板(A2017)
处理: 不要
箱定位用
290(基板宽度-10)
(单位:mm)
2×Ф3±0.005深度5

SPG EJP6AJ-MB-06OM-02
可动侧基板夹扣
固定侧基板夹扣
吸着配管连接部
吸着箱安装尺寸
6-1-4-6
(单位:mm)
支撑单元
固定侧基板夹扣
可动侧基板夹扣
可动侧基板夹扣固定侧基板夹扣
支撑单元
支撑单元安装面
支撑单元安装面
选
购
件
支撑板
支撑板
支撑板
支撑板
(选购件)

SPG EJP6AJ-MB-06OM-02
6-1-5-1
准备:把「焊料自动供给」(→P.4-1-11)设定为「ON」。
选购件
焊料自动供给 1
操作篇
6-1-5
3
10
11
21
(刮刀上升,刮刀头移动刀前面)
+
+
OFF
SERVO
■回收焊料时
■不回收焊料时
●跳至步骤⑩
12
将喷嘴安装到电位
器上
●在将喷嘴安装到电位器上
之前,请先用刮刀等充分搅
拌。
13
取下焊料电位器
焊料电位器的更换