CP-643E-08 PART LIST.pdf - 第18页
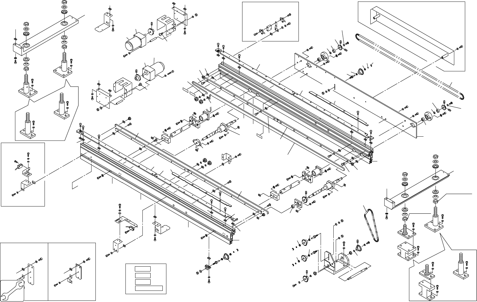
3.1.インコンベア(CSQC) 3.1.In conveyor(CSQC) 番号 図番 & コード番号 個数 品名 規格 備考 材質 No. Drg.No. & Code No. QTY Description Rating Remarks Materials 1 CSQC1042 1 PLATE プレート FE 2 CSQC0041 1 PLATE プレート FE 3 CSQC0051 1 PLATE プレ…

PULLEY ASSY
MQC-1061
PULLEY ASSY
MQC-1290
RUBBER BELT
CSQC-0700
CORROIE DE CAOUTCHOUC
CSQC-0700
B
D
H
F
A
B
C
A
E
C
E
D
H
G
G
Note.1
注.1
Note.1
注.1
3 - 2
3.1.インコンベア(CSQC)
3.1.In conveyor(CSQC)
3.1.インコンベア(CSQC)
3.1.In conveyor(CSQC)
CP-643E PARTS LIST
64.68N・m
64.68N・m
LOCTITE262
LOCTITE262
ThreeBond1373B
ThreeBond1390E
ThreeBond1373B
ThreeBond1390E
1.96N.m
3.9N.m

3.1.インコンベア(CSQC)
3.1.In conveyor(CSQC)
番号 図番 & コード番号 個数 品名 規格 備考
材質
No. Drg.No. & Code No. QTY Description Rating Remarks
Materials
1 CSQC1042 1 PLATE プレート FE
2 CSQC0041 1 PLATE プレート FE
3 CSQC0051 1 PLATE プレート FE
4 CSQC1171 1 BRIDGE ブリッジ FE
7 CSQC0132 1 STOPPER ストッパ FE
8 CSQC0142 1 STOPPER ストッパ FE
9 CSQC0171 1 BKT, SENSOR BKT センサ HELPS X-No.512∼ FE
10 CSQC7431 1 BKT BKT HELPS X-No.512∼ FE
16 CSQC1200 3 BOLT, STUD ボルト スタッド FE
32 CSQC0511 1 COVER, BELT カバー ベルト FE
42 CSQC0660 1 PLATE プレート FE
43 CSQC0670 1 PLATE プレート FE
44 CSQC0680 2 GUIDE, BELT ガイド ベルト AL
45 CSQC0690 2 GUIDE, BELT ガイド ベルト AL
46 CSQC0700 2 BELT ベルト OT
50 CSQC0741 1 NAMEPLATE 銘板 PL
51 CSQC1020 1 PLATE, SIDE プレート サイド AL
52 CSQC1030 1 PLATE, SIDE プレート サイド AL
62 MQC1061 4 PULLEY プーリ OT
63 MQC1073 1 SEAL シール PL
64 MQC1292 4 PULLEY プーリ OT
65 MQC1300 1 SEAL シール PL
66 MQC1430 2 BKT BKT FE
67 MQC3113 2 BALL SCREW ボールネジ OT
68 MQC3293 2 COVER カバー OT
69 MQC3313 1 GUIDE ガイド FE
70 MQC3323 1 GUIDE ガイド FE
71 CSQC1050 2 SHAFT シャフト FE
72 MQC3421 2 BKT BKT FE
74 MQC3451 1 HOLDER ホルダ FE
75 MQC3461 1 SHAFT シャフト FE
76 MQC3501 2 PULLEY プーリ FE
77 MQC3901 8 SPACER スペーサ FE
78 MQC4130 2 SHAFT シャフト FE
79 CLC9051 2 HOLDER ホルダ FE
80 GVC0141 2 COLLAR カラー FE
81 GVC0320 2 COLLAR カラー FE
82 GVC0350 4 COLLAR カラー FE
83 GVC2262 2 SPROCKET スプロケット OT
84 GVC2311 1 SHAFT シャフト FE
85 GVC2320 1 SHAFT シャフト FE
CP-643E PARTS LIST
3 - 3
3.1.インコンベア(CSQC)
3.1.In conveyor(CSQC)

3.1.インコンベア(CSQC)
3.1.In conveyor(CSQC)
番号 図番 & コード番号 個数 品名 規格 備考
材質
No. Drg.No. & Code No. QTY Description Rating Remarks
Materials
86 GVC4070 1 SPACER スペーサ HELPS FE
87 CSQC1071 2 HOLDER ホルダ FE
88 IQC6041 4 RETAINER, BEARING 押え ベアリング FE
89 IQC6062 27 NUT ナット FE
90 IQC6072 64 NUT ナット HELPS(58) FE
91 IQC6291 2 NUT ナット FE
92 JQC3672 14 NUT, SQUARE ナット 四角 FE
93 GVC4112 1 BKT BKT HELPS FE
94 M5017H 2
MOTOR, INDUCTION
モータ インダクション 2IK6RGN-A-K1 OT
95 H4006A 2 HEAD, GEAR ヘッド ギヤ 2GN-7.5K OT
96 H4429M 2
BEARING, BALL
ベアリング ボール LMK20UU FE
97 H4123A 1
BEARING
ベアリング UFL000 FE
98 H4445A 8 BEARING, MINIATURE ベアリング ミニチュア LF-1050ZZ FE
99 H4451A 2 BEARING, MINIATURE ベアリング ミニチュア LF-1680ZZ FE
100 H4440A 5 BEARING, MINIATURE ベアリング ミニチュア L-1910ZZ FE
101 T2030T 1 CHAIN チェーン RS25NP 266リンク OT
102 T2022B 1 CHAIN チェーン RS25NP 68リンク OT
103 S3033A 2 SPROCKET スプロケット RS25-13T 1ガタ OT
104 S3034A 5 SPROCKET スプロケット RS25-13T 2ガタ OT
105 S1022A 4
CIR-CLIP
サークリップ ST-EW-4 FE
106 W10022 2 WASHER ワッシャ TL182(No.2) FE
107 S4040X 2
SENSOR, PHOTO
センサ フォト EE-SPX306-W2A HELPS OT
108 WQC4081 1 BKT BKT FE
109 CSQC1160 1 BRIDGE ブリッジ FE
110 S3141B 1 SW, PHOTOELECTRIC SW 光電 DL-S3R HELPS(2) OT
122 IQC6301 8 NUT ナット FE
123 WQC0111 1 BKT BKT FE
125 W1022A
WASHER, LOCK
ワッシャ スプリング 4M/M FE
126 W1023A
WASHER, LOCK
ワッシャ スプリング 5M/M FE
127 W1024A
WASHER, LOCK
ワッシャ スプリング 6M/M FE
128 W1043A
WASHER, FLAT
ワッシャ 平
4W-4 FE
129 W1044A
WASHER, FLAT
ワッシャ 平
4W-5 FE
130 W1045A
WASHER, FLAT
ワッシャ 平
4W-6 FE
131 W1011A
WASHER, CONICAL
ワッシャ 皿
M-4-L FE
132 W1013A
WASHER, CONICAL
ワッシャ 皿
M-6-H FE
136 N4015A
SCREW, HEX SOCKET SET
ネジ 六角穴止め M4X4L FE
137 N4027A
SCREW, HEX SOCKET SET
ネジ 六角穴止め M4X5L FE
138 N1080A
NUT, HEX
ナット 六角 M4 P=0.7 FE
139 N1082A
NUT, HEX
ナット 六角 M5 P=0.8 FE
140 N1085A
NUT, HEX
ナット 六角 M6 P=1.0 FE
141 CSQC1230 8
NUT, HEX
ナット 六角 FE
CP-643E PARTS LIST
3 - 4
3.1.インコンベア(CSQC)
3.1.In conveyor(CSQC)