NPM-DX Mechanical.pdf - 第106页
22 フィーダーテーブルカバー(17連台車対応):NPM-D X Feeder Table Cover(Feeder C art):NPM -DX パーツレイアウト Kit No. キット 品番 Kit Name キット名称 MTKA002020AA セクションNo. PARTS LAYOUT Section No. - - S79 ( KMTKA002020AA-10 )

Ref
No.
Remarks R
1
Q'ty
21-F
全体カバー:NPM-DX
Whole Cover:NPM-DX
イラスト
No.
Part No.
品 名品 番 数量
R
2
パーツリスト
Kit No.
キット品番
Kit Name
キット名称
MTKA002145AA
Part Name
備 考
セクションNo.
PARTS LIST
Section No.
R
3
BRACKET
2
1 MTPB003016AA
BRACKET
2
2 MTPB003017AB
BRACKET
4
3 MTPB005631AB
BRACKET
2
4 MTPB005239AA
COVER
2
5 MTKP003298AD
COVER
1
6 MTKP001611AD
COVER
1
7 MTKP001168AC
COVER
2
8 MTKP002725AB
COVER
2
9 MTKP003046AC
HINGE
2
10 N510043291AA IT-M70
S78
--
( KMTKA002145AA-12-6 )

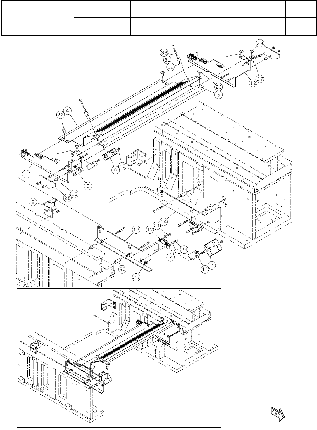
22
フィーダーテーブルカバー(17連台車対応):NPM-DX
Feeder Table Cover(Feeder Cart):NPM-DX
パーツレイアウト
Kit No.
キット品番
Kit Name
キット名称
MTKA002020AA
セクションNo.
PARTS LAYOUT
Section No.
--
S79
( KMTKA002020AA-10 )

Ref
No.
Remarks R
1
Q'ty
22
フィーダーテーブルカバー(17連台車対応):NPM-DX
Feeder Table Cover(Feeder Cart):NPM-DX
イラスト
No.
Part No.
品 名品 番 数量
R
2
パーツリスト
Kit No.
キット品番
Kit Name
キット名称
MTKA002020AA
Part Name
備 考
セクションNo.
PARTS LIST
Section No.
R
3
WASHER
2
2 N210160059AA
COVER
1
4 MTPB001603AF
COVER
1
5 MTPB001604AC
COVER
1
6 MTPB002714AA
COVER
1
7 MTPB002715AB
NUT-PLATE
1
8 MTPB006011AA
BRACKET
2
9 MTPB002716AB
COVER
1
11 MTKP001024AE
COVER
1
12 MTKP001025AF
BRACKET
1
13 MTKP001026AD
BRACKET
1
14 MTKP001027AC
SWITCH
1
15 MTKP001966AA
S
D40A-1C2
BOLT
4
16 N510000423AA SRBS-M4X8
MAGNET
2
17 KXF0CS8AA00 C-54-2-black
SPACER
2
18 N510017097AA CB-405E
SPACER
4
19 N510023663AA CB-410E
SCREW
4
21 N510018256AA
Cross recessed Truss head machine screw M3X8-4.8 A2S (Trivalent)
SCREW
6
22 N510018283AA
Cross recessed Truss head machine screw M4X8-4.8 A2S (Trivalent)
SCREW
5
23 N510018280AA
Cross recessed Truss head machine screw M4X6-4.8 A2S (Trivalent)
SCREW
2
24 N510018266AA
Cross recessed Truss head machine screw M4X16-4.8 A2S (Trivalent)
CABLE-SUPPORT
3
26 N510048517AA FT4
BRACKET
2
27 MTPB006995AB
PLATE
2
28 MTPB011676AA
RUBBER-CUSHION
2
29 N510043348AB C-30-CS-9-EP-UL
SPACER
4
30 MTNK002058AA CB-625E
STOPPER
2
31 N210109236AB
SPACER
2
32 N510021009AA CF-413E
SPACER
2
33 N510044825AA 3382330-40075
S80
--
( KMTKA002020AA-10 )