PTS-JIGFIFEEDER-10.pdf - 第27页
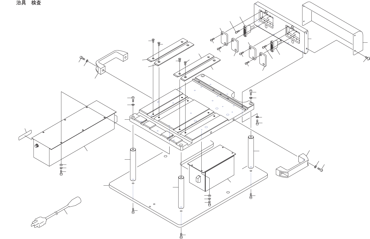
JIG, INSPECTION 治具 検査 AA87523 No. Drg.No. & C od e No. QT Y Description Ra ting Re marks 番号 図番 & コー ド 番号 個数 品名 規格 備考 1 2MDLF W 00 8 7 01 1 PL ATE プレ ート 2 2MDLF W 00 8 8 01 4 SU PPORT COLUM N 支柱 3 H 542 7B 4 BOL…

1
8
9
2
25
26
24
3
3
3
4
5
4
5
6
7
10
11
12
13
14
15
15
17
17
16
16
18
21
21
32
18
32
22
19
12
22
22
22
21
30
31
21
13
14
2
2
25.1
25.2
27
27.1
27.2
35
JIG, INSPECTION
AA87523
26
PTS-JIGFIFEEDER-10

JIG, INSPECTION
治具検査
AA87523
No.
Drg.No. & C
od
e No.
QTY
Description
Rating
Remarks
番号
図番
&
コー
ド
番号
個数
品名
規格
備考
1
2MDLFW
0087
01
1
PLATE
プレ
ート
2
2MDLFW
0088
01
4
SUPPORT COLUMN
支柱
3
H
542
7B
4
BOLT, HEX SOCKET
ボルト六
角穴
M05X
01
2(3
カシロ
)
4
H
542
7E
4
BOLT, HEX SOCKET
ボルト六
角穴
M05X
01
8(3
カ
シロ
)
5
W
101
2A
4
W
AS
HER, CONICAL
ワッシャ
皿
M-5-L
6
2MDLFW
0086
03
1
BA
SE
ベース
7
2MDLFW
0085
01
1
PLATE
プレ
ート
8
H
542
6N
4
BOLT, HEX SOCKET
ボルト六
角穴
M04X
01
5(3
カ
シロ
)
9
W
101
1A
4
W
AS
HER, CONICAL
ワッシャ
皿
M-4-L
10
PB
091
61
1
COVER
カバー
11
K
517
1S
4
S
CR
EW, C/R T
RU
SS
小ネジ十穴ト
ラス
M03X
00
6(3
カ
シロ
)
12
T
500
0S
2
HANDLE
取手
AGS110
13
H
542
41
4
BOLT, HEX SOCKET
ボルト六
角穴
M06X
01
5(3
カシロ
)
14
W
101
3A
4
W
AS
HER, CONICAL
ワッシャ
皿
M- 6-H
15
PM1
49
74
2
PL
AT
E, GUIDE
プレートガ
イド
16
K
535
7L
4
S
CR
EW, HEX SOC
KE
T CO
UN
TE
RSUNK
小ネジ六角
穴皿
M03X
00
6(3
カ
シロ
)
17
PM1
49
84
2
PL
AT
E, GUIDE
プレートガ
イド
18
K
535
7L
4
S
CR
EW, HEX SOC
KE
T CO
UN
TE
RSUNK
小ネジ六角
穴皿
M03X
00
6(3
カ
シロ
)
19
PX
020
52
1
SE
AL,
BA
R CODE
シールバーコ
ード
unit serial number
21
2MDLFW
0046
01
4
COVER
カバー
22
K
517
1T
8
S
CR
EW, C/R T
RU
SS
小ネジ十穴ト
ラス
M02.5X
00
5(3
カ
シロ
)
24
XB
034
64
1
BOX, POWER SUPPLY
BOX
電源
25
H
542
6K
6
BOLT, HEX SOCKET
ボルト六
角穴
M04X
00
8(3
カ
シロ
)
25.1
W
110
6D
6
W
AS
HER, LOCK
ワッシャスプリ
ング
4M/M(3
カ
シロ
)
25.2
W
110
8S
6
W
AS
HER, FLAT
ワッシャ
平
4M/MX0.8X9(1W-4)(3
カシロ
)
26
XB
022
71
1
BOX
BOX
27
H
542
52
4
BOLT, HEX SOCKET
ボルト六
角穴
M03X
00
8(3
カ
シロ
)
27.1
W
110
6C
4
W
AS
HER, LOCK
ワッシャスプリ
ング
3M/M(3
カ
シロ
)
27.2
W
110
8B
4
W
AS
HER, FLAT
ワッシャ
平
3M/MX0.5X7(3
カシロ
)
30
XH
011
11
1
HA
RN
ESS
ハー
ネス
31
XH
010
80
1
HA
RN
ESS
ハー
ネス
32
XP
001
33
4
PIN
ピン
35
RH
196
31
1
HA
RN
ESS
ハー
ネス
27
PTS-JIGFIFEEDER-10

8
9
26
28
28
24
3
3
3
4
5
6
15
15
17
17
16
16
18
18
4
5
19
26.1
7
10
11
21
21
32
32
22
22
22
22
21
30
31
21
12
13
14
1
12
13
14
2
2
2
25
25.1
25.2
27
27.1
27.2
35
JIG, INSPECTION
AA44K20
28
PTS-JIGFIFEEDER-10