TR6DNR_TR6DNV_TR6DNX-Rev05.pdf - 第13页
- 10 - NOTE( 注記 ) #01....FOR E N EN 用 #02....FOR TR6DNX,TR6DXLX , TR 6 DNX,TR 6 DXLX, TR6DNV TR 6 DNV 用 #03....EXCEPT EN EN を除く REF.NO NOTE PART NO D E S C R I P T I O N 品 名 Qty 1 E1524-716- 000 DOOR CUSHION ドアクッション 2 2 …

- 9 -
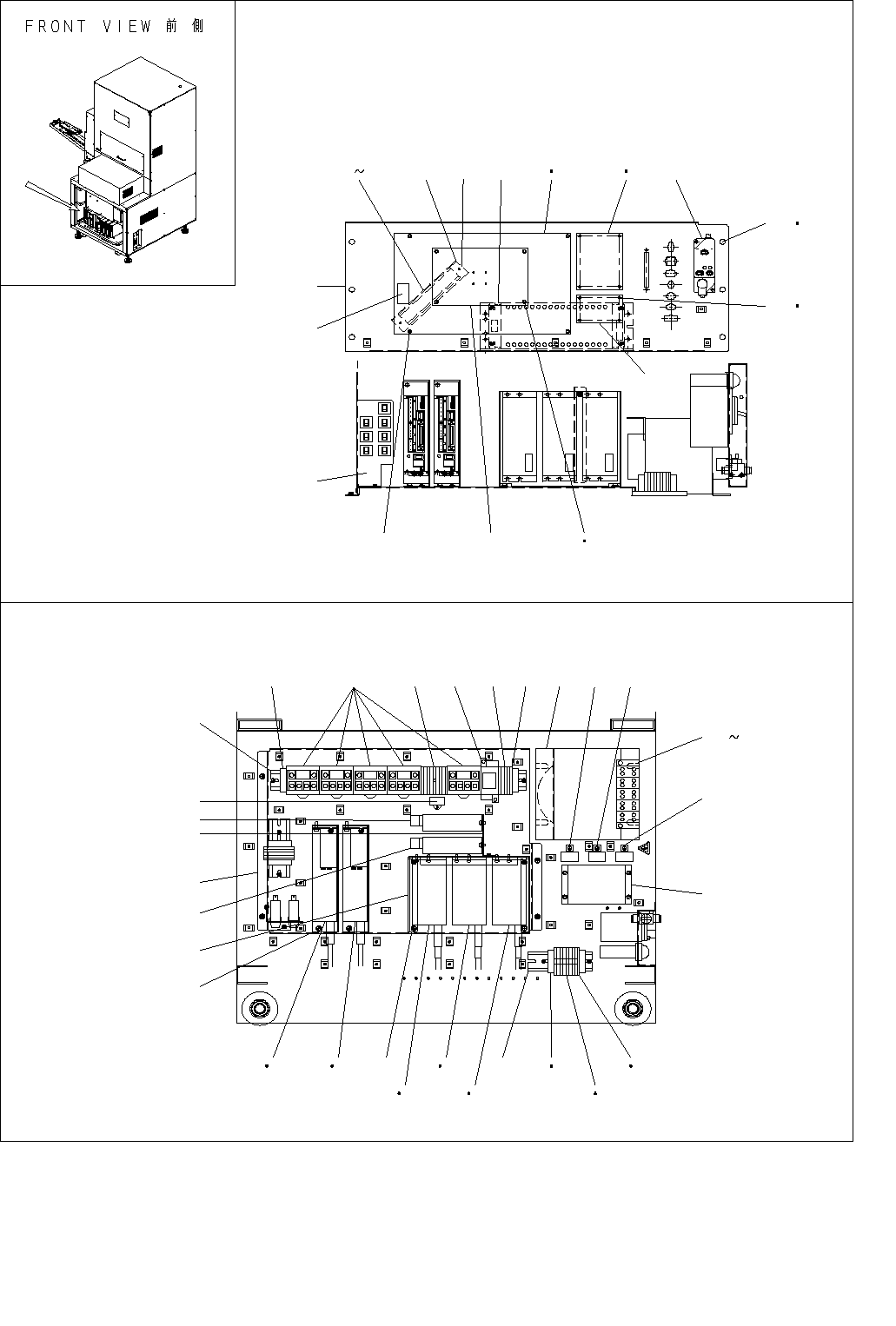
5. ELECTRIC APPARATUS COMPONENTS (1)
電装関係(1)
21 25
26
16
191817
35
54
34
39
32
33
55
38
54
24
23
22
3121
765
4
15
27
1440 41
9
9
11
12
10
13
20
8
M4 * 8
53
42
43
44
46
47
48
49
31
45
50
51
52
28
29
30
36
37
56
57

- 10 -
NOTE( 注記 ) #01....FOR EN EN 用
#02....FOR TR6DNX,TR6DXLX, TR 6 DNX,TR 6 DXLX,
TR6DNV TR 6 DNV 用
#03....EXCEPT EN EN を除く
REF.NO NOTE PART NO D E S C R I P T I O N
品 名
Qty
1 E1524-716-000 DOOR CUSHION
ドアクッション
2
2 400-51573 BALL CATCH
ボールキャッチ
1
3 E1038-871-000 PLATEN LOCK CAM SCREW
プラテン ロックカム スクリュウ
1
4 400-51583 DOOR LOCK BASE
ドアロックベース
1
5 SM-6032002-TN SCREW M3X0.5 L=20
六角穴ボルト M3X0.5 L=20
1
6 NM-6030001-SC NUT M3
六角ナット M3X0.5 1種
1
7 E1055-717-000 DOOR LOCK SP
ドアロックSP
1
8 PJ-3080600-03 Y UNION
ユニオンワイ
3
9 SL-4035091-SC SCREW M3 L=50
座金付きなべ小ねじ M3 L=50
2
10 SL-4030891-SC SCREW M3X8
なべ小ねじセムス M3 L=8
2
11 SL-4030881-SC SCREW M3 L=8
座金付きなべ小ねじ M3 L=8
4
12 SM-6032502-TN SCREW M3 L=25
六角穴ボルト M3 L=25
2
13 SM-0040801-SC SCREW
トラスねじ M4 L=8
2
14 400-48853 E COVER 6D
Eカバー6D
1
15
#01
HK-0498900-00 CONECTOR PARTS
コネクタパーツ
1
16 E4559-717-000 DOOR LOCKLEVER
ドアロックレバー
2
17
#01
HB-0014300-00 SAFETY RELAY UNIT
セーフティリレーユニット
1
18
#01
HB-0013900-00 RELAY
リレー
5
19
#01
E9641-040-000 RELAY MY-2 DC-24V
リレ− MY2 DC24V
4
20
#01
E2411-723-000 BREAKER COVER B
ブレーカカバーB
1
21 400-45100 DOOR S INTERLOCK SORENOID ASM.
ドアSインターロックソレノイド組
1
22 HD-0005700-0A PHOTO SENSOR
フォトセンサ
1
23 400-45102 COVER LOCK SOLENOID ASM.
カバーロックソレノイド組
1
24 400-45095 COVER OPEN SENSOR CABLE ASM.
カバーオープンセンサケーブル組
1
25 400-45098 DOOR M INTERLOCK SORENOID ASM.
ドアMインターロックソレノイド組
1
26 HD-0017100-00 PHOTO SENSOR
フォトインタラプタ
2
27
#01
HK-0498900-0D CONNECTOR PARTS
コネクタパーツ
4
28
#03
400-48718 DOOR SW CV
ドアSW CV
1
29 SL-4040891-SC SCREW M4 L=8
座金付きなべ小ねじ M4 L=8
1
30 HX-0009600-0A EDGING BUSH
エッジングブッシュ
1
31 WS-0310002-KN SPRING WASHER M3
ばね座金 3.1X5.9X0.7
1
32
#01
400-48775 MAIN SW BR (CE)
メインスイッチ BR (CE)
1
33
#02
400-94908 MAIN_SW_BR_6D
メインスイッチブラケット_6D
1
34 HA-0058500-00 CIRCUIT PROTECTOR
サーキットプロテクタ
1
35 400-45008 POWER LAMP ASM
パワーランプ組
1
36 400-45200 I/F CABLE ASM
I/F ケーブル組
1
37
#02
400-94573 I/F CABLE ASM
I/F ケーブル組
1
38 400-44994 AC POWER INPUT CABLE ASM
AC パワー入力ケーブル組
1
39
#01
E2410-723-000 BREAKER COVER A
ブレーカカバーA
1
40
#01
HK-0498500-10 TERMINAL BASE
端子台
10
41
#01
400-50013 CARRIER RAIL
キャリアレール
1
42 SL-4040891-SC SCREW M4 L=8
座金付きなべ小ねじ M4 L=8
2
43 400-48716 X INTERLOCK BR
XインターロックBR
1
44 SL-6030892-TN SCREW
座金付き六角穴ボルト
2
45 SM-6030602-TN HEX SCREW M3 X 6
六角穴ボルト M3X0.5 L=6
1
46 SL-4030691-SC SCREW M3X6
なべ小ねじセムス M3X0.5 L=6
2
47 PS-0200062-KH SPRING PIN 2X6
スプリングピン 2X6
1
48 E2039-723-000 X INTERLOCK LEVER
Xインターロックレバー
1
49 E1038-871-000 PLATEN LOCK CAM SCREW
プラテン ロックカム スクリュウ
1
50 E1055-717-000 DOOR LOCK SP
ドアロックSP
1
51 SL-4031081-SC SCREW M3 X 10
なべねじセムス M3 L=10
1
52 HA-0037900-0A MICRO SW
マイクロSW
1
53 400-48865 X IL BR
XインターロックBR
1
54 400-49165 BREAKER COV
ブレーカCOV
2
55 PV-0100060-00 HAND VALVE
ハンドバルブ
1
56 SL-4030881-SC SCREW M3 L=8
座金付きなべ小ねじ M3 L=8
2
57
#02
SM-4860501-SB SCREW M2.5 L=5
なべねじ M2.6 L=5
2

- 11 -
6. ELECTRIC APPARATUS COMPONENTS (2)
電装関係(2)
9
11
4
3
10
7
59
6
58
5
57
1
54
14
1512 47
8
31 28 2 9
30
13
27
1717 1819
20
50
29
30
21 2 2
23
24
25
26
48
49
51
53
16
32
34
35
36 37
38
39
40
41
42 43
4445
46
56
2
54 55