SP60P-L Parts list(Mechanical)20120628.pdf - 第46页
4-A 基 板 位置 決 めリフト (L) Board Positioning Lif t(L) パーツレイアウト Ki t N o . キット 品番 Kit N am e キット名称 KXFX03BRA00 セクションNo. PARTS LAYOUT Section No. M27

Ref
No.
Remarks
R
1
Q'ty
3
XYテーブル(L)
X-Y Table(L)
イラスト
No.
Part No.
品 名品番 数量
R
2
パーツリスト
Kit N
o
.
キット品
番
Kit Name
キット名称
KXFX03BQA00
Part Name
備 考
セクションNo.
PARTS LIST
Section No.
R
3
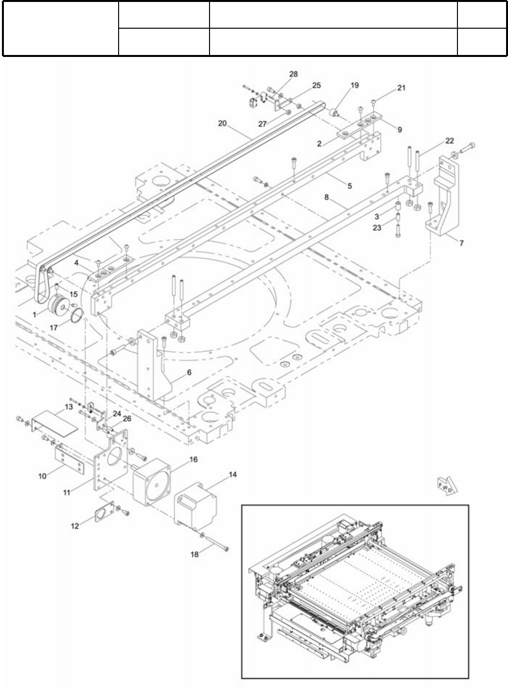
PLATE
1
1 KXFB02Y4A00
COUPLING
1
2 KXFB02W7A00
BASE-PLATE
1
3 KXFB02Y5B02
HOLDER
1
4 KXFB02Y6A01
HOLDER
1
5 KXFB02Y7A00
BUSHING
2
6 KXFB01GBA00
HOLDER
1
7 KXFB039RB00
STOPPER
4
8 KXFB06JGA00
STOPPER
2
9 KXFB08DFA00
DOG
1
10 KXFB02YCB00
BRACKET
1
11 KXFB02WKA00
BRACKET
1
12 N210003277AA
BRACKET
1
13 KXFB02YDB00
BRACKET
1
14 KXFB02YEB02
DOG
1
16 KXFB02YGB00
LINEAR-WAY
1
17 N510019487AA LWHS20C2R490BEC03
MOTOR
1
18 KXF0DZEKA00
S
MSMA022P2A(DDA)
SUPPORT-UNIT
1
19 KXF0BBNAA00 WBK12-01A
BALL-SCREW
1
20 N510019486AA BSF1510EC3T-471E05
GREASE-NIPPLE
3
21 N510019930AA 4011 SUS
JOINT
4
22 KXF02T9AA00 M-5HL-4
SENSOR
3
23 KXF07B3AA00
A
PM-T53B-C1
JOINT
1
24 KXF02AWAA00 KQH04-M5
JOINT
2
25 KXF02BTAA00 KQL04-M5
CABLE-BEAR
1
26 KXF0E0NHA00 TKP0625-2BR125X16 link IB.KB
SEPARATOR
16
27 KXF06PKAA00 TKP0625-2BST
SPACER
2
28 N510019842AA 3382330-50100
SPACER
4
29 N510019848AA 3382330-50190
BRACKET
1
30 KXFB0ASRA00
PULLEY
2
31 N610116865AA
A
WASHER
2
32 KXF0DWTVA00 WSSB8-4-2
LINEAR-WAY
1
33 N510019488AA LWHS20C2R490BEC04
M26
--
( KKXFX03BQA00-06 )

4-A
基
板
位置
決
めリフト(L)
Board Positioning Lift(L)
パーツレイアウト
Ki
t
N
o
.
キット
品番
Kit Name
キット名称
KXFX03BRA00
セクションNo.
PARTS LAYOUT
Section No.
M27

Ref
No.
Remarks
R
1
Q'ty
4-A
基
板
位置
決
めリフト(L)
Board Positioning Lift(L)
イラスト
No.
Part No.
品 名品番 数量
R
2
パーツリスト
Kit N
o
.
キット品
番
Kit Name
キット名称
KXFX03BRA00
Part Name
備 考
セクションNo.
PARTS LIST
Section No.
R
3
PULLEY
2
1 KXFB02QLB00
GUIDE
4
2 KXFB0377A01
STOPPER
1
3 KXFB0AHEA00
GUIDE
1
4 N210028530AA
FRAME
1
5 KXFB037JB00
BRACKET
1
6 KXFB032UA02
BRACKET
1
7 KXFB032VA02
PLATE
1
8 KXFB037KB00
GUIDE
1
9 N210028531AA
GUIDE
2
10 KXFB0336B00
PLATE
2
11 N210013815AB
BRACKET
2
12 KXFB0385A01
COVER
2
13 N210001242AB
MOTOR
2
14 KXF0DX4XA00
S
KO433-M(DDA)
SCREW
2
15 N510018441AA
Hexagon socket set screw Flat point M5X10-45H A2J
GEAR-HEAD
2
16 KXF0DX4YA00 2GN5K-D5(DDA)
RING
2
17 N210088855AA
BOLT
8
18 N510017368AA
Hexagon socket head cap screw M4X45-10.9 A2J (Trivalent)
PULLEY
6
19 N610116865AA
A
BELT
3
20 KXF0E0T9A01
A
XVT-952-1530L(DA KXF0E0T9A01)
BOLT
16
21 N510017536AA
SSS 003 Hexagon socket button head screw M4X8-10.9 A2J (Trivalent)
SCREW-STOPPER
4
22 KXF09YWAA00 ANBN6-40
SPACER
1
23 N510020085AA 3382330-40120
PLATE
1
24 N210013817AB
PLATE
1
25 N210013818AB
SPACER
2
26 N510020066AA 3382330-30120
WASHER
2
27 N560WSSB843 WSSB8-4-3
PIN
4
28 KXF0526AA00 SPP2-8
M28