Dispensing Systems and Conformal Coating Quick Ops_Polish_Rev 01.pdf - 第38页
Skróconainstrukcj aobsługisystemówdozuj ącychipowlekani a ko nformalnego Bezpieczeństwo 34 ©2023NordsonCorporation Numer Opis 1 EtykietaZagrożenieoparzen iem 2 EtykietaRuchomeczęści Rysunek 2-5 Etykietyost…

Skróconainstrukcjaobsługisystemówdozującychipowlekaniakonformalnego Bezpieczeństwo
© 2023 NordsonCorporation 33
Numer Opis
1
Ostrzeżenieelektryczne(zagrożenieporażeniem
prądem)naprzegrodzie
2
Etykietaostrzegawczaprzedpromieniowaniem
laserowym (jeśli występujelaserowyczujnik
wysokościklasy2)
Rysunek2-4 Etykietyostrzegawczedotyczącebezpieczeństwa(głowicaZ)
1
2

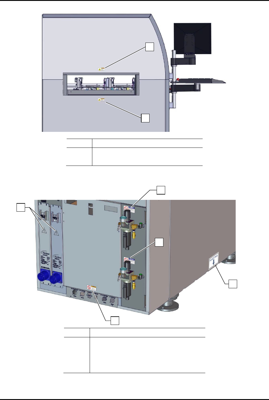
Skróconainstrukcjaobsługisystemówdozującychipowlekania konformalnego Bezpieczeństwo
34 ©2023NordsonCorporation
Numer Opis
1 EtykietaZagrożenieoparzeniem
2 EtykietaRuchomeczęści
Rysunek2-5 Etykietyostrzegawczedotyczącebezpieczeństwa(przenośnik)
Numer Opis
1 Ostrzeżenieoporażeniuprądem
2 Niepodnośtutaj
3 Wymaganeczysteisuchepowietrze
4 Punktwózkawidłowego
Rysunek 2-6 Etykietyostrzegawczedotyczącebezpieczeństwa(tył)
1
2
1
2
3
4
3

Skróconainstrukcjaobsługisystemówdozującychipowlekaniakonformalnego Bezpieczeństwo
© 2023 NordsonCorporation 35
2.7.2 Helios
Numer Opis
1 Ruchomeczęści
2 EtykietaPrzeczytajinstrukcję(przedniaosłona)
Rysunek2-7 Etykietyostrzegawczedotyczącebezpieczeństwa- widokzprzodu
Numer Opis
1
Etykieta ostrzegawczaprzedpromieniowaniem laserowym
(jeśli występujelaserowyczujnikwysokościklasy2)
Rysunek2-8 Etykiety ostrzegawczedotyczącebezpieczeństwa- przednipanelwewnętrzny
2
1
1