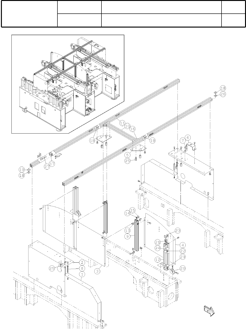
CM402-M Parts list-mechanical20150105.pdf - 第31页
Ref No. Remark s R 1 Q'ty 1-F 本 体部 Main Body イラスト No. Part No. 品 名 品番 数量 R 2 パーツリスト Kit N o . キット品 番 Kit Name キット名称 KXFX0452A00 Part Name 備 考 セクションNo. PARTS LIST Section No. R 3 COVER 2 1 N210018284AA COVER 1 2 N210…

1-F
本
体部
Main Body
パーツレイアウト
Ki
t
N
o
.
キット
品番
Kit Name
キット名称
KXFX0452A00
セクションNo.
PARTS LAYOUT
Section No.
--
M11
( KKXFX0452A00-35-6 )

Ref
No.
Remarks
R
1
Q'ty
1-F
本
体部
Main Body
イラスト
No.
Part No.
品 名品番 数量
R
2
パーツリスト
Kit N
o
.
キット品
番
Kit Name
キット名称
KXFX0452A00
Part Name
備 考
セクションNo.
PARTS LIST
Section No.
R
3
COVER
2
1 N210018284AA
COVER
1
2 N210018285AA
COVER
1
3 N210018322AA
COVER
4
4 N210084098AA
COVER
2
5 N210018323AA
COVER
2
6 N210018324AA
PLATE
8
7 KXFB09VRA00
PW106A1
16
8 KXFB02RKA00
COVER
1
9 KXFB0E7PA00
BRACKET
2
10 N210028766AA
SENSOR
8
11 KXF0DKWAA00
S
EX-21A(DA 0DKWA)
SCREW
32
12 N510018036AA
Cross recessed Pan head machine screw M3X10-4.8 A2J (Trivalent)
SPACER
16
13 N210053167AB
M12
--
( KKXFX0452A00-35-6 )

1-G
本
体部
Main Body
パーツレイアウト
Ki
t
N
o
.
キット
品番
Kit Name
キット名称
KXFX0452A00
セクションNo.
PARTS LAYOUT
Section No.
--
M13
( KKXFX0452A00-35-7 )