文档中心
/
SDRPartsList.pdf
SDRPartsList.pdf - 第13页
在线预览 SDRPartsList.pdf PDF 文档。
目录
100%
显示:宽度
宽度
1 / 21
回到旧版
旧版
?
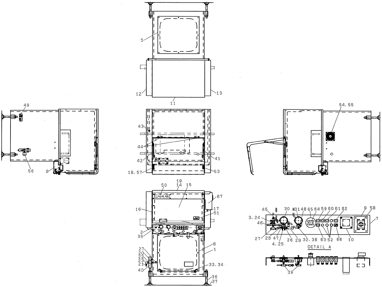
2-3 Conveyor - 2
LG7-0207
3-1 Base
LG7-0207
该页面需要启用 JavaScript 才能进行交互式预览。