KE-3020_KE-3020R-Rev07PDFA.pdf - 第169页
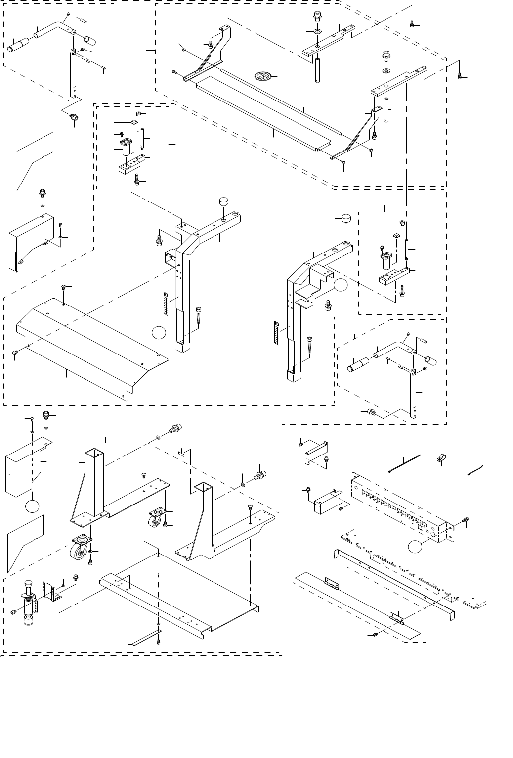
- 162 - NOTE( 注記 ) #01....FOR EN EN 用 REF.NO NOTE PART NO D E S C R I P T I O N 品 名 Qty 1 400-21958 FLOOR TROLLEY SUB UNIT フロアトロリーサブユニット 1 2 400-21959 TROLLEY BOTTOM ASS Y トロリーボトムアセンブリ (1) 3 400-21912 TROLLEY FRAME BL トロ…

- 161 -
81.M REPLACING OVERALL CHANGER TRUCK COMPONENTS(WITH CONNECTOR BRACKET)(1)
メカ一括交換台車関係(コネクタブラケット有り)(1)
3
4
5
6
6
8
9
7
10
11
12
13
15
16
14
23
23
24
24
22
25
26
26
27
27
37
31
39
38
29
44
41
33
44
40
42
32
34
35
43
46
45
46
45
49
51
52
53
53
55
55
54
56
57
57
58
71
72
76
73
75
76
75
62
63
64
21
30
A
A
48
83
81
2
B
B
85
84
86
86
87
87
92
90
89
88
91
17
19
18
28
36
50
50
59
60
59
60
66
68
70
64
63
62
66
68
69
65
74
73
74
77
82
82
61
20
61
1
70
47
67
69
67
69
69
65
80
93
78
79

- 162 -
NOTE( 注記 ) #01....FOR EN EN 用
REF.NO NOTE PART NO D E S C R I P T I O N
品 名
Qty
1 400-21958 FLOOR TROLLEY SUB UNIT
フロアトロリーサブユニット
1
2 400-21959 TROLLEY BOTTOM ASSY
トロリーボトムアセンブリ
(1)
3 400-21912 TROLLEY FRAME BL
トロリーフレームBL
(1)
4 400-21913 TROLLEY FRAME BR
トロリーフレームBR
(1)
5 400-21914 TROLLEY BASE PLATE
トロリーベースプレート
(1)
6 SM-3061252-TN SCREW M6 L=12
丸ねじ M6 L=12
(6)
7 400-21957 TROLLEY CASTER (75)
トロリーキャスタ(75)
(2)
8 WP-0612516-SD WASHER 6.1X15.2X2.5
平座金 6.1X15.2X2.5
(8)
9 SM-6060802-TN BOLT
六角穴ボルト
(8)
10 400-21956 TROLLEY CASTER (50)
トロリーキャスタ(50)
(2)
11 SM-6060802-TN BOLT
六角穴ボルト
(8)
12 E2711-721-000 TROLLEY STOPPER
トロリーストッパー
(2)
13 E2710-721-000 STOPPER ATTACHMENT
ストッパーアタッチメント
(2)
14 SM-6060802-TN BOLT
六角穴ボルト
(8)
15 SL-6061242-TN BOLT
座金付き六角穴ボルト
(4)
16 NM-6060003-SC NUT M6
六角ナット M6
(4)
17 WP-0430801-SC WASHER M4
平座金 M4
(2)
18 400-23476 FG GUM SHEET
FGゴムシート
(1)
19 SM-6040802-TN SCREW
六角穴ボルト M4X0.7 L=8
(1)
20 400-21960 TROLLEY UPPER ASSY
トロリーアッパー組
(1)
21 400-58933 TROLLEY FRAME L
トロリーフレームL
(1)
22 400-58934 TROLLEY FRAME R
トロリーフレームR
(1)
23 SM-6125052-TR SCREW
六角穴ボルト M12 L=50
(2)
24 400-01730 SCALE MARKS SEAL
メモリシール
(2)
25 400-58935 TROLLEY UPPER PLATE
トロリーアッパープレート
(1)
26 SM-3061252-TN SCREW M6 L=12
丸ねじ M6 L=12
(6)
27 400-01731 TROLLEY RUBBER B
トロリーラバーB
(4)
28 400-22464 STOPPER PLATE L ASSY
ストッパープレートL組
(1)
29 400-53180 TROLLEY STOPPER PLATE L
トロリーストッパプレートL
(1)
30 400-01748 TROLLEY SUB GUIDE
トロリーサブガイド
(1)
31 SL-6063092-TN SCREW M6 L=30
座金付き六角穴ボルトM6 L=30
(1)
32 E2703-721-000 TROLLEY SHAFT
トロリーシャフト
(1)
33 S1021-710-000 ST RUBBER FOOT
ST ゴム足
(1)
34 SB-8160005-C0 BEARING
ころがり軸受
(1)
35 SL-6041042-TN BOLT
座金付き六角穴ボルト
(4)
36 400-22465 STOPPER PLATE R ASSY
ストッパープレートR組
(1)
37 400-01735 TROLLEY STOPPER PLATE
トロリーストッパープレート
(1)
38 400-01748 TROLLEY SUB GUIDE
トロリーサブガイド
(1)
39 SL-6063092-TN SCREW M6 L=30
座金付き六角穴ボルトM6 L=30
(1)
40 E2703-721-000 TROLLEY SHAFT
トロリーシャフト
(1)
41 S1021-710-000 ST RUBBER FOOT
ST ゴム足
(1)
42 SB-8160005-C0 BEARING
ころがり軸受
(1)
43 SL-6041042-TN BOLT
座金付き六角穴ボルト
(4)
44 SL-6082092-TN BOLT
座金付き六角穴ボルト
(4)
45 WP-1052001-SC WASHER 10,5X21X2
平座金みがき丸 M10
(4)
46 SL-6102042-TN SCREW
座金付き六角穴ボルト
(4)
47 400-21961 TROLLEY SLIDE ASSY
トロリースライド組
(1)
48 400-21916 BANK PLATE L
バンクプレート L
(1)
49 400-21917 BANK PLATE R
バンクプレート R
(1)
50 400-23221 SUPPORT SHAFT
サポートシャフト
(2)
51 400-01736 FS BRACKET L
FSブラケットL
(1)
52 400-01737 FS BRACKET R
FSブラケットR
(1)
53 SL-6061692-TN BOLT
座金付き六角穴ボルト
(4)
54 400-01739 FS PLATE
FSプレート
(1)
55 SM-3040652-TN SCREW M4 L=6
丸ねじ M4 L=6
(4)
56 400-21918 TAPE GUIDE
テープガイド
(1)
57 400-68308 SET SCREW M4 L=8
化粧ねじ M4×8
(2)
58 E5721-729-000 LABEL
荷重禁止シール
(1)
59 SL-6102042-TN SCREW
座金付き六角穴ボルト
(2)
60 WP-1052001-SC WASHER 10,5X21X2
平座金みがき丸 M10
(2)
61 400-21962 TROLLEY HANDLE ASSY
トロリーハンドル組
(2)
62 400-21920 TROLLEY HANDLE
トロリーハンドル
(1)
63 E2641-729-000 HANDLE CLIP
ハンドルグリップ
(1)
64 E2635-729-000 HANDLE SLIDER
ハンドルスライダ
(1)
65 400-21919 HANDLE SHAFT
ハンドルシャフト
(1)
66 SL-6030642-TN SCREW M3 L=6
座金付き六角穴ボルト
(1)
67 SL-6040642-TN BOLT
座金付き六角穴ボルト
(1)
68 PS-0600182-KP SPRING PIN
スプリングピン 6X18
(1)
69 PS-0400122-KP SPRING PIN
スプリングピン
(2)
70 SL-6082092-TN BOLT
座金付き六角穴ボルト
(4)
71 400-58936 TROLLEY COVER AL
トロリーカバーAL
(1)
72 400-58937 TROLLEY COVER AR
トロリーカバーAR
(1)
73 SM-3040652-TN SCREW M4 L=6
丸ねじ M4 L=6
(4)
74 WP-0430801-SC WASHER M4
平座金 M4
(4)
75 WP-0841601-SC WASHER 8.4X17.4X1.6
平座金みがき丸 M8
(2)
76 SL-6081242-TN BOLT
座金付き六角穴ボルト
(2)
77 E4981-700-000 LABEL
EPR0M用 ブランク ラベル
(1)
78 400-58938 SIDE TAPE L
サイドテープL
(1)
79 400-58939 SIDE TAPE R
サイドテープR
(1)
80 HX-0006500-0B CABLE BAND
束線バンド
6
81 HX-0015000-0K CABLE CLIP
ケーブル クリップ
1
82 400-01734 SCREW
段ねじ
4
83 SL-6051492-TN BOLT
座金付き六角穴ボルト
4
84
#01
E1173-725-000 PLATE STAND COVER L
プレートスタンドカバーL
1
85
#01
E1174-725-000 PLATE STAND COVER R
プレートスタンドカバーR
1
86 SL-6040892-TN BOLT
座金付き六角穴ボルト
2
87 SL-6051092-TN BOLT
座金付き六角穴ボルト
2
88
#01
400-01749 BANK FLAP ASSY
バンクフラップ組
1
89 400-18388 BUTT HINGE
平型蝶番
(2)
90 400-18389 BANK FLAP
バンクフラップ
(1)
91
#01
400-01750 BANK COVER
バンクカバー
1
92
#01
SL-6040892-TN BOLT
座金付き六角穴ボルト
4
93 HX-0067400-00 CABLE BAND
ケーブルバンド
4

- 163 -
82.M REPLACING OVERALL CHANGER TRUCK COMPONENTS(WITH CONNECTOR BRACKET)(2)
メカ一括交換台車関係(コネクタブラケット有り)(2)
24
18
16
23
17
4
3
5
6
7
9
10
11
12
13
14
15
8
9
8
1
2
22
19
20
21