JM-100-Rev07PDFA.pdf - 第107页
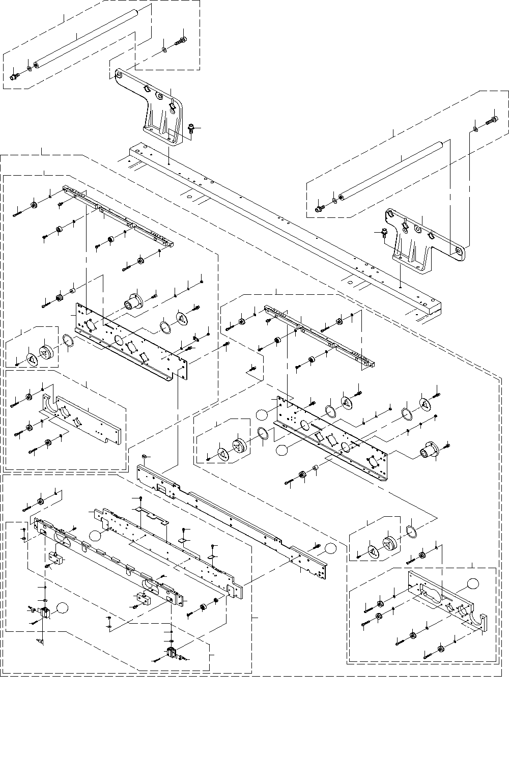
- 102 - REF.NO NOTE PART NO D E S C R I P T I O N 品 名 Qty 1 402-13916 CONVEYOR_RAIL_F _ASM コンベアレールF組 1 2 SL-6041092-TN SCREW M4 L=10 座金付き六角穴ボルト M4 L=10 (4) 3 SL-6041492-TN SCREW M4 L=14 座金付き六角穴ボルト M4 L=14 (4) 4 SL-605109…

- 101 -
51.CLINCH UNIT COMPONENTS (6) (CONVEYOR)
クリンチユニット関係(6)(搬送)
35
11
50
5
50
D
C
B
A
5
5
10
5
1
102
104
90
C
87
47
42
45
91
38
39
40
41
41
40
101
105
107
107
D
B
A
106
109
100
101
105
46
47
42
44
43
43
42
44
42
108
11 0
88
8
7
6
8
6
7
72
70
86
71
70
86
71
81
77
83
81
77
83
52
68
53
59
53
68
52
65
59
63
54
74
66
60
67
66
60
21
20
23
20
18
18
22
21
14
20
16
20
18
31
32
33
31
32
33
19
34
34
25
31
18
22
20
20
31
31
29
30
29
27
28
29
17
30
29
31
23
19
24
13
4
55
58
64
57
56
61
58
64
57
67
2
62
58
64
57
58
64
57
65
63
73
79
76
82
75
78
85
84
4
2
84
80
78
76
82
75
76
82
75
76
82
75
85
51
69
15
26
47
46
47
46
47
46
48
49
37
36
103
104
89
96
98
93
96
97
95
94
96
98
93
96
97
92
94
95
99
3
12
9

- 102 -
REF.NO NOTE PART NO D E S C R I P T I O N
品 名
Qty
1 402-13916 CONVEYOR_RAIL_F_ASM
コンベアレールF組
1
2 SL-6041092-TN SCREW M4 L=10
座金付き六角穴ボルト M4 L=10
(4)
3 SL-6041492-TN SCREW M4 L=14
座金付き六角穴ボルト M4 L=14
(4)
4 SL-6051092-TN SCREW M5 L=10
座金付き六角穴ボルト M5 L=10
(8)
5 SL-6052092-TN SCREW M5 L=20
座金付き六角穴ボルト M5 L=20
(8)
6 SM-4040855-SC SCREW
なべ小ねじ M4 L=8
(2)
7 WP-0430800-SC WASHER M4
平座金小形丸 M4
(2)
8 E2111-715-0A0 CONVEYOR PULLEY ASM.
搬送プーリ(組)
(2)
9 SL-4040691-SC SCREW M4 L=6
座金付きなべ小ねじ M4 L=6
(1)
10 402-13856 RAIL_STAND_CR
レールスタンドCR
(1)
11 402-13857 RAIL_STAND_CL
レールスタンドCL
(1)
12 HX-0034400-00 FIXED BASE
束線パーツ
(1)
13 402-13917 PULLEY_BRAKET_L_ASM
プーリブラケットL組
(1)
14 402-13791 BELT_TENSION_BRACKET_L
ベルトテンションブラケットL
(1)
15 SL-6051292-TN SCREW M5 L=12
座金付き六角穴ボルト M5 L=12
(2)
16 E2157-721-000 PULLEY B
プーリ B
(1)
17 E2016-715-000 IDLER PULLEY
アイドラプーリ
(1)
18 E2017-715-000 M LINER BUSH
M ライナブッシュ
(4)
19 E2018-715-000 PULLEY SLEEVE
プーリ スリーブ
(2)
20 WP-0531001-SC WASHER M5
平座金みがき丸 M5
(6)
21 WS-0510002-KN SPRING WASHER M5
ばね座金 M5
(2)
22 NM-6050001-SC NUT M5X0.8 TYPE1
六角ナット M5X0.8 1種
(2)
23 SM-6052502-TN SCREW
六角穴ボルト
(2)
24 402-13918 PULLEY_BRAKET_R_ASM
プーリブラケットR組
(1)
25 402-13790 BELT_TENSION_BRACKET_R
ベルトテンションブラケットR
(1)
26 SL-6051292-TN SCREW M5 L=12
座金付き六角穴ボルト M5 L=12
(2)
27 E2157-721-000 PULLEY B
プーリ B
(1)
28 E2016-715-000 IDLER PULLEY
アイドラプーリ
(1)
29 E2017-715-000 M LINER BUSH
M ライナブッシュ
(4)
30 E2018-715-000 PULLEY SLEEVE
プーリ スリーブ
(2)
31 WP-0531001-SC WASHER M5
平座金みがき丸 M5
(6)
32 WS-0510002-KN SPRING WASHER M5
ばね座金 M5
(2)
33 NM-6050001-SC NUT M5X0.8 TYPE1
六角ナット M5X0.8 1種
(2)
34 SM-6052502-TN SCREW
六角穴ボルト
(2)
35 402-13919 BASE BAR ASM
ベースバー組
(1)
36 SL-6040892-TN SCREW M4 L=8
座金付き六角穴ボルト M4 L=8
(2)
37 HX-0070600-00 MOUNT BASE
マウントベース
(4)
38 400-01038 BASE BAR R(L)
ベースバーR(L)
(1)
39 402-13789 BASE_BAR_F_L
ベースバーF_L
(1)
40 400-70087 BASE BAR S(L)
ベースバーS(L)
(2)
41 400-00996 BASE BAR SS(L)
ベースバーSS(L)
(2)
42 SL-6084092-TN SCREW M8 L=40
座金付き六角穴ボルト M8 L=40
(8)
43 SL-6063592-TN SCREW M6 L=35
座金付き六角穴ボルト M6 L=35
(4)
44 SL-6062592-TN SCREW M6 L=25
座金付き六角穴ボルト M6 L=25
(4)
45 HX-0029400-00 FIXED BASE
固定ベース
(4)
46 HX-0034400-00 FIXED BASE
束線パーツ
(4)
47 SM-4040601-SC SCREW M4X0.7 L=6
なべ小ねじ M4X0.7 L=6
(8)
48 402-13799 C_SUPPORT_R
CサポートR
(1)
49 SL-6051092-TN SCREW M5 L=10
座金付き六角穴ボルト M5 L=10
(2)
50 400-46032 RAIL STAND F(L)
レールスタンドF(L)
(2)
51 402-13920 RAIL_PLATE_FL_ASM
レールプレートFL組
(1)
52 SM-4041201-SC SCREW M4X0.7 L=12
なべ小ねじ M4X0.7 L=12
(2)
53 WP-0430800-SC WASHER M4
平座金小形丸 M4
(2)
54 402-13842 CONVEYOR_RAIL_CL
コンベアレールCL
(1)
55 401-36811 RAIL_PLATE_FL
レールプレートFL
(1)
56 E2012-721-000 ADJUST PLATE
アジャストプレート
(1)
57 E2055-721-000 PULLEY SPACER
プーリスペーサ
(4)
58 E2089-721-0A0 CONVEYOR PULLEY B ASM.
搬送プーリB組
(4)
59 E2111-715-0A0 CONVEYOR PULLEY ASM.
搬送プーリ(組)
(2)
60 NM-6040001-SC NUT M4X0.7 TYPE1
六角ナット M4X×0.7 1種
(4)
61 SL-6030692-TN SCREW M3 L=6
座金付き六角穴ボルト M3 L=6
(2)
62 SL-6031492-TN SCREW M3 L=14
座金付き六角穴ボルト M3 L=14
(4)
63 SM-4040855-SC SCREW
なべ小ねじ M4 L=8
(2)
64 SM-4042501-SC SCREW M4X0.7 L=25
なべ小ねじ M4X0.7 L=25
(4)
65 WP-0430800-SC WASHER M4
平座金小形丸 M4
(2)
66 WP-0430801-SC WASHER M4
平座金 M4
(4)
67 WS-0410002-KN SPRING WASHER M4
ばね座金 M4
(4)
68 401-38303 RESIST_LIGHTEN_ROLLER_ASM
レイジストライテンローラ組
(2)
69 402-13946 RAIL_PLATE_FR_ASM
レールプレートFR組
(1)
70 SM-4041201-SC SCREW M4X0.7 L=12
なべ小ねじ M4X0.7 L=12
(2)
71 WP-0430800-SC WASHER M4
平座金小形丸 M4
(2)
72 402-13842 CONVEYOR_RAIL_CL
コンベアレールCL
(1)
73 401-36812 RAIL_PLATE_FR
レールプレートFR
(1)
74 E2012-721-000 ADJUST PLATE
アジャストプレート
(1)
75 E2055-721-000 PULLEY SPACER
プーリスペーサ
(6)
76 E2089-721-0A0 CONVEYOR PULLEY B ASM.
搬送プーリB組
(6)
77 E2111-715-0A0 CONVEYOR PULLEY ASM.
搬送プーリ(組)
(2)
78 NM-6040001-SC NUT M4X0.7 TYPE1
六角ナット M4X×0.7 1種
(6)
79 SL-6030692-TN SCREW M3 L=6
座金付き六角穴ボルト M3 L=6
(2)
80 SL-6031492-TN SCREW M3 L=14
座金付き六角穴ボルト M3 L=14
(4)
81 SM-4040855-SC SCREW
なべ小ねじ M4 L=8
(2)
82 SM-4042501-SC SCREW M4X0.7 L=25
なべ小ねじ M4X0.7 L=25
(6)
83 WP-0430800-SC WASHER M4
平座金小形丸 M4
(2)
84 WP-0430801-SC WASHER M4
平座金 M4
(6)
85 WS-0410002-KN SPRING WASHER M4
ばね座金 M4
(6)
86 401-38303 RESIST_LIGHTEN_ROLLER_ASM
レイジストライテンローラ組
(2)
87 402-13921 CONVEYOR_RAIL_FC_ASM
コンベアレールFC組
(1)
88 SM-4041601-SC SCREW M4X0.7 L=16
なべ小ねじ M4X0.7 L=16
(2)
89 HX-0070600-00 MOUNT BASE
マウントベース
(6)
90 402-13787 RAIL_GUIDE_F_CL
レールガイドF_CL
(1)
91 402-13844 CONVEYOR_RAIL_FC_CL
コンベアレールFC_CL
(1)
92 402-13922 CLAMP_CYLINDER_ASM
クランプシリンダ組
(1)
93 402-13777 CLAMP_CYLINDER
クランプシリンダ
(2)
94 402-13872 SCREW
皿小ネジ
(4)
95 401-64345 SPEED_CONTROLLER_ELB
スピードコントローラELB
(4)
96 WP-0320516-KP WASHER 3.2X10X0.5
平座金 3.2X10X0.5
(4)
97 402-13846 JOINT_COLLAR_30_50
ジョイントカラー_30_50
(2)
98 402-13843 SCREW_M3_L6
スクリュー_M3_L6
(2)
99 402-13481 PCB CLAMP DOWN SENS R ASM
基板クランプダウンセンサR組
(1)
100 E2111-715-0A0 CONVEYOR PULLEY ASM.
搬送プーリ(組)
(4)
101 E4105-729-0A0 SHAFT SUPPORT B ASM.
シャフトサポート組
(2)
102 E2123-721-000 PWB GUIDE PLATE F
PWBガイドプレートF
(3)
103 E2124-721-000 PWB GUIDE PLATE RA
PWBガイドプレートRA
(1)
104 SL-6030892-TN SCREW M3 L=8
座金付き六角穴ボルト M3 L=8
(10)
105 SL-6041092-TN SCREW M4 L=10
座金付き六角穴ボルト M4 L=10
(4)
106 SM-4040855-SC SCREW
なべ小ねじ M4 L=8
(4)
107 SM-8030302-TP SCREW M3X3
止めねじ M3X3
(2)
108 401-38182 ROLLER_SPACER
ローラスペーサ
(2)
109 WP-0430800-SC WASHER M4
平座金小形丸 M4
(4)
110 401-38303 RESIST_LIGHTEN_ROLLER_ASM
レイジストライテンローラ組
(2)

- 103 -
52.CLINCH UNIT COMPONENTS (7) (CONVEYOR)
クリンチユニット関係(7)(搬送)
38
41
42
42
41
40
39
30
6
23
27
7
21
1
B
24
17
3
25
22
23
8
25
22
34
56
55
56
52
49
57
48
35
46
50
47
53
53
45
51
32
33
47
37
36
43
54
40
42
41
40
44
58
21
59
61
60
59
61
45
28
26
29
64
65
94
96
98
95
97
98
99
85
66
87
79
90
87
79
90
95
97
101
102
96
98
98
99
100
100
94
93
65
93
73
84
80
81
81
82
92
2
81
71
70
69
68
81
75
74
76
75
74
76
74
76
75
76
88
72
68
89
91
92
82
79
75
67
4
83
84
80
69
70
71
91
78
77
88
90
74
86
A
B
A
4
5
16
12
14
13
10
15
13
15
13
12
14
10
13
9
11
11
C
C
20
19
21
18
60
62
63
31